У 20 разів більше оголошень від власників

Збираємо оголошення з найбільших порталів

За номером телефону відрізняємо ріелтора від власника

Показуємо, як змінювалася ціна

Видаляємо дублі оголошень

Увага! Даний телефон занесений в чорний список. Додаткову інформацію ви знайдете в коментарях користувачів.

Продам фасад 60 м2 с землею перетин Копилівська та Теліги

Київська область, Київ, Подільський
  • Об'єкт UA-1359583915
  • доданий:
фото - Продам фасад 60 м2 с землею перетин Копилівська та Теліги
  • В повний розмір
  • Шукати схожі
фото - Продам фасад 60 м2 с землею перетин Копилівська та Теліги

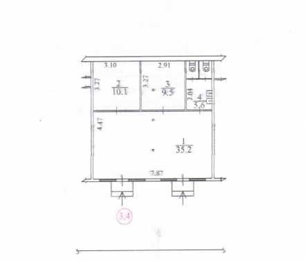
Продам фасад 60 м2 зі своєю землею перетин Копилівська та Теліги Фасадне приміщення з власним входом, загальна площа 60.4 м2 - електрика (15 кВт з можливістю збільшення) - водопостачання / водовідведення, окремий санвузол. Приміщення має дві окремі вхідні групи з двома окремим "мокрими" точками. Наявна можливість збільшити площу приміщень за рахунок площі земельної ділянки. Об'єкт продажу реалізується разом з земельною ділянкою площею 0.0116 га, КН **********: 85:256:0007 - цільове призначення земельної ділянки : для будівництва і обслуговування будівель торгівлі.

Місцезнаходження на карті

Новобудови поруч

Дом на Вавиловых
Додати в обране Дом на Вавиловых ул. Вавиловых, 9-11
  • 574 600 ₴
ЖК Кирилловский Гай
Додати в обране ЖК Кирилловский Гай ул. Багговутовская, 1а
  • 90 000 ₴
Додати в обране просп. Правды просп. Правды
  • 377 200 ₴
ЖК Сырецкие сады
Додати в обране ЖК Сырецкие сады ул. Ивана Выговского (Маршала Гречко), 10б
  • 2 470 600 ₴

Об'єкти поруч

Київська область, Київ, Подільський
додати в вибране Нежиле 61 м. кв ФАСАД Виговського, 10-Ж Сирецькі Сади ВІТРИННІ ВІКНА
  • 76 990 $
  • 61 м²
Київська область, Київ, Подільський
Київська область, Київ, Подільський
додати в вибране Продажа офиса, с арендаторами, в центре Киева! Подол! Без комиссии
  • 82 650 $
  • 87 м²
Київська область, Київ, Подільський
Київська область, Київ, Подільський
додати в вибране Продажа офиса с арендаторами в центре Киева! Юрковская 34а
  • 68 400 $
  • 72 м²
Київська область, Київ, Подільський
Київська область, Київ, Подільський
додати в вибране Фасадне приміщення 130 м², Гамаліївська 34, Подільський район
  • 71 800 $
  • 130 м²
Київська область, Київ, Подільський