У 20 разів більше оголошень від власників

Збираємо оголошення з найбільших порталів

За номером телефону відрізняємо ріелтора від власника

Показуємо, як змінювалася ціна

Видаляємо дублі оголошень

Увага! Даний телефон занесений в чорний список. Додаткову інформацію ви знайдете в коментарях користувачів.

Продам Фасад 80м2 Осокорки Дніпровська Наб. 26 орендар Аптека. Добр. Дня

Київська область, Київ, Дарницький
  • Об'єкт UA-1357550650
  • доданий:
фото - Продам Фасад 80м2 Осокорки Дніпровська Наб. 26 орендар Аптека. Добр. Дня
  • В повний розмір
  • Шукати схожі
фото - Продам Фасад 80м2 Осокорки Дніпровська Наб. 26 орендар Аптека. Добр. Дня

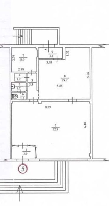
Продам комерційне приміщення 80 м2 на Фасаді, Червона Лінія, з окремим фасадним входом та потужним орендарем Аптекою в густонаселеному Великому ЖК, 8 Свічок по 33 поверха, та НОВУСом в 50 метрах Дніпровська Набережна 26 Всі комунікації налагоджені Вхід на тому ж рівні, що і тротуар Нові житлові комплекси навколо Свіжий будинок, якісний ремонт Ціна: 195 тис. у. о Контракт на 3 роки Оплата невелика Потенціал місця до 65.75 тис грн Планування дозволяє робити додатковий вхід, що дасть можливість половину приміщення здати від 1250 грн за метр Що дасть окупність 7.8 років Поруч знаходиться скупчення будинків 2005 року і молодше збудованих Автопарковка та стоянка для авто Новус в 50 метрах 09******50 Анатолій Дзвоніть ! Завжди є прохідні та цікаві локації Оренда, Купівля Ми завжди готові підказати і допомогти Продати / здати в оренду ! З радістю ! Телефонуйте !

Місцезнаходження на карті

Новобудови поруч

ЖК Чаривне Мисто
  • 360o
Додати в обране ЖК Чаривне Мисто ул. Бориспольская, 18-26
  • 326 200 ₴
ЖК Olympic Park
  • 360o
Додати в обране ЖК Olympic Park Харьковское шоссе, 210
  • 1 496 250 ₴
ЖК Метрополия-2
Додати в обране ЖК Метрополия-2 ул. Армянская, 8/127
  • 101 700 ₴
ЖК O2 Residence
Додати в обране ЖК O2 Residence Бориспольское шоссе
  • 1 350 000 ₴

Об'єкти поруч

Київська область, Київ, Дарницький
додати в вибране Продаж! Торгове приміщення вул. Мишуги м. Позняки 178кв. м.
  • 170 000 $
  • 178 м²
Київська область, Київ, Дарницький
Київська область, Київ, Дарницький
додати в вибране Продаж окремої будівлі вул Драгоманова 38 Г, під магазин - 72 м²
  • 210 000 $
  • 72 м²
Київська область, Київ, Дарницький
Київська область, Київ, Дарницький
додати в вибране Пряма пропозиція! Продаж 75 м2. Готовий орендний бізнес !
  • 195 000 $
  • 75 м²
Київська область, Київ, Дарницький
Миколи Бажана проспект, Київ, метро Бориспільська, просп. Миколи Бажана 17Б, площа 120.07 кв. м • ID 33713824
додати в вибране Продаж спеціального приміщення на просп. Миколи Бажана 17Б, площа 120.07 кв. м • ID 33713824
  • 212 138 $
  • 120 м²
Миколи Бажана проспект, Київ, метро Бориспільська, просп. Миколи Бажана 17Б, площа 120.07 кв. м • ID 33713824