У 20 разів більше оголошень від власників

Збираємо оголошення з найбільших порталів

За номером телефону відрізняємо ріелтора від власника

Показуємо, як змінювалася ціна

Видаляємо дублі оголошень

Продаж комерційного приміщення вул. Коноплянська 22

Київська область, Київ, Оболонський
фото - Продаж комерційного приміщення вул. Коноплянська 22 фото - Продаж комерційного приміщення вул. Коноплянська 22
  • В повний розмір
  • Шукати схожі
фото - Продаж комерційного приміщення вул. Коноплянська 22 фото - Продаж комерційного приміщення вул. Коноплянська 22

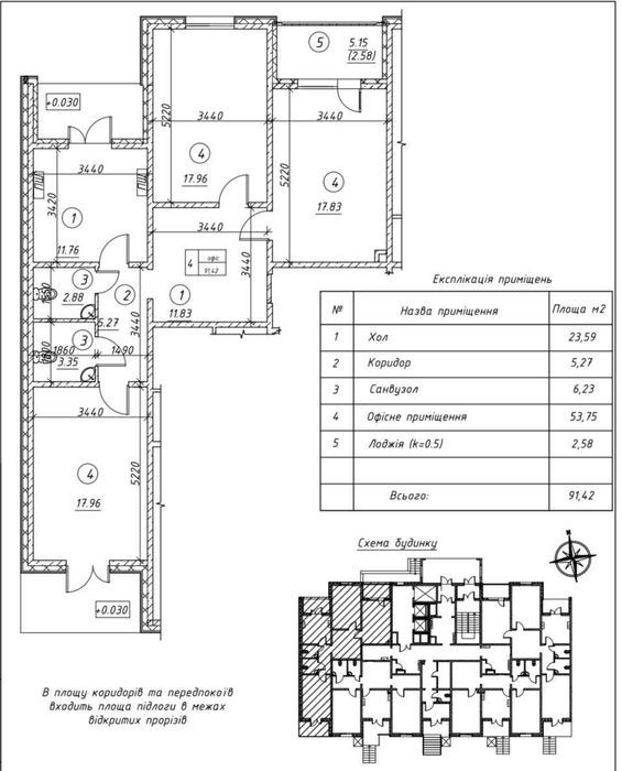
Продаж комерційного приміщення в Києві • ЖК «Навігатор-2» вул. Коноплянська 22 • 91420$ • Площа 91.42 м² • 1 поверх Приміщення під будь-який формат бізнесу або орендну інвестицію. Характеристики будівлі: • Залізобетонні зовнішні та внутрішні стіни (160 мм) з утепленням • Перегородки - залізобетон • Металопластикові вікна, металеві двері • Висота стелі - 2.8 м Комунікації та інженерія: • Водяна двотрубна система опалення з радіаторами • Центральні стояки каналізації + розводка холодної води • Підведені електролінії до ВРП • Загальні лічильники тепла та води Благоустрій: • Асфальтовані дороги й тротуари • Зовнішнє освітлення • Облаштовані входи та відмостки Формат «під ремонт» - інвестор завершує внутрішні роботи під свій бізнес чи орендаря. Ідеально для: офісів, салонів, медицини, освітніх центрів, інвестиції під оренду. Телефонуйте!

Місцезнаходження на карті, корисні місця і маршрути

Новобудови поруч

просп. Оболонский, 18
Додати в обране просп. Оболонский, 18 просп. Оболонский, 18
  • 3 750 250 ₴
ЖК Паркове місто
  • 360o
  • Акція
Додати в обране ЖК Паркове місто ул. Вышгородская, 45
  • 106 350 ₴
ЖК LAKE HOUSE
Додати в обране ЖК LAKE HOUSE ул. Маршала Малиновского, 2а
  • 544 700 ₴
POLARIS Home&Plaza
Додати в обране POLARIS Home&Plaza ул. Семьи Кульженков (Петра Дегтяренко), 22
  • 104 000 ₴

Об'єкти поруч

Київ, Оболонський, вулиця Коноплянська 22а
додати в вибране Продаж комерційного приміщення ЖК Навігатор-2, Оболонський р-н, Київ
  • 88 000 $
  • 59 м²
Київ, Оболонський, вулиця Коноплянська 22а
Київська область, Київ, Оболонський
додати в вибране Комерційне приміщення 76 м по вул Коноплянська, 22 ЖК Навігатор-2
  • 3 141 500 ₴
  • 74 м²
Київська область, Київ, Оболонський