У 20 разів більше оголошень від власників

Збираємо оголошення з найбільших порталів

За номером телефону відрізняємо ріелтора від власника

Показуємо, як змінювалася ціна

Видаляємо дублі оголошень

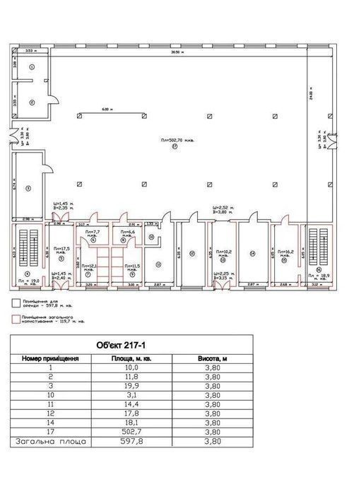
Оренда виробничого/складського приміщення в Мукачеві 630 м2

Закарпатська область, Мукачево
  • Об'єкт UA-1346975138
  • доданий:
  • оновлено:
фото - Оренда виробничого/складського приміщення в Мукачеві 630 м2 фото - Оренда виробничого/складського приміщення в Мукачеві 630 м2
  • В повний розмір
  • Шукати схожі
фото - Оренда виробничого/складського приміщення в Мукачеві 630 м2 фото - Оренда виробничого/складського приміщення в Мукачеві 630 м2

Пропонуємо під оренду приміщення, площею 630 м2 в Мукачеві по вул. Свалявська. В придатному стані на першому поверсі. Є широкі ворота, прямий підїзд до приміщення. В приміщені є підсобні приміщення та санвузли. Підійде як під склад так і під виробництво. Огороджена територія під охороною Додатково в наявності є офісні, складські приміщення від 50-1000 м2. Оренда напряму від власника. Без комісії. За детальною інформацією, телефонуйте

Місцезнаходження на карті, корисні місця і маршрути

Новобудови поруч

ЖК 9 Район
Додати в обране ЖК 9 Район ул. Коцака Арсения
  • 46 500 ₴
ЖК Мечта
  • все продано
Додати в обране ЖК Мечта ул. Ивана Франко, 146

Об'єкти поруч

Закарпатська область, Мукачево
додати в вибране Оренда виробничого/складського приміщення м. Мукачево
  • 2 838 €
  • 946 м²
Закарпатська область, Мукачево
Закарпатська область, Мукачево
додати в вибране Оренда комерційного приміщення під магазин, салон, тощо
  • 225 €
  • 75 м²
Закарпатська область, Мукачево
Закарпатська область, Мукачево
додати в вибране Виробниче, складське приміщення з крановим мостом 5 тон
  • 3 €
  • 600 м²
Закарпатська область, Мукачево
Закарпатська область, Мукачево
додати в вибране Оренда приміщення 240 м2 в Мукачеві
  • 2 €
  • 240 м²
Закарпатська область, Мукачево