У 20 разів більше оголошень від власників

Збираємо оголошення з найбільших порталів

За номером телефону відрізняємо ріелтора від власника

Показуємо, як змінювалася ціна

Видаляємо дублі оголошень

Центр, продаж приміщення

Черкаси, Благовісна 184
фото - Центр, продаж приміщення фото - Центр, продаж приміщення
  • В повний розмір
  • Шукати схожі
фото - Центр, продаж приміщення фото - Центр, продаж приміщення

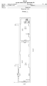
Продається частка фасадного приміщення площею 12.33 м2 у приміщенні загальною площею 74 м, поверх 1. Приміщення з ремонтом, підключені всі комунікації, є орендарі. Відмінна локація в центрі міста з високим пішохідним та автомобільним трафіком. Адреса: Благовісна, 184. Вартість $2500 за м2. Деталі за телефоном.

Місцезнаходження на карті, корисні місця і маршрути

Виберіть маршрут

Новобудови поруч

ЖК Олимп
Додати в обране ЖК Олимп ул. Сумгаитская, 15/5
  • 740 000 ₴
ЖК Графский
Додати в обране ЖК Графский ул. Байды Вишневецкого, 68
  • 1 598 000 ₴
ул. Сержанта Жужомы, 1
Додати в обране ул. Сержанта Жужомы, 1 ул. Сержанта Жужомы, 1
  • 360 000 ₴
ЖК City Park
Додати в обране ЖК City Park ул. Казацкая / ул. Героев Днепра
  • 635 250 ₴

Об'єкти поруч

Черкаська область, Черкаси
додати в вибране Продам приміщення центр вул Благовісна - Грушевського
  • 150 000 $
  • 200 м²
Черкаська область, Черкаси
Черкаська область, Черкаси
додати в вибране Торгове приміщення 48 м2 в прохідному місці
  • 20 000 ₴
  • 48 м²
Черкаська область, Черкаси