У 20 разів більше оголошень від власників

Збираємо оголошення з найбільших порталів

За номером телефону відрізняємо ріелтора від власника

Показуємо, як змінювалася ціна

Видаляємо дублі оголошень

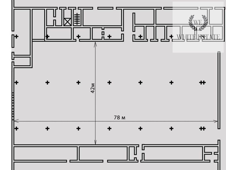
Склад по вул. Текстильна

Тернопільська область, Тернопіль
  • Об'єкт UA-1340232044
  • доданий:
  • оновлено:
фото - Склад по вул. Текстильна фото - Склад по вул. Текстильна фото - Склад по вул. Текстильна
  • В повний розмір
  • Шукати схожі
фото - Склад по вул. Текстильна фото - Склад по вул. Текстильна фото - Склад по вул. Текстильна

ID: 172 090 Пропонується в оренду складське приміщення загальною площею 3200 кв. м. Ворота зроблять, під заїзд фури. Високі стелі. Дах власники зроблять, протікати не буде. Підлога бетонна. Поприбирають. Проведена електрика. В наявності комунікації с/в, вода. Заїзд на територію складів через КПП. По питиметру огороджено парканом. На загальній території будуть сусіди орендарі. Поруч в наявності прилегла територія. Номер оголошення на сайті компанії: RC-172-090-LX.

Місцезнаходження на карті, корисні місця і маршрути

Новобудови поруч

просп. Злуки, За, 5а
Додати в обране просп. Злуки, За, 5а просп. Злуки, За, 5а
  • 46 400 ₴
ул. Глубокая, 19
Додати в обране ул. Глубокая, 19 ул. Глубокая, 19
  • 900 000 ₴
ЖК Atlanta Tower
Додати в обране ЖК Atlanta Tower ул. Нечая, 25
  • 3 280 000 ₴
ЖК Доминиканский
Додати в обране ЖК Доминиканский ул. Юлиана Опольского
  • 3 347 500 ₴

Об'єкти поруч

Тернопільська область, Тернопіль
додати в вибране Оренда Склада вул. Текстильна
  • 80 000 ₴
  • 1000 м²
Тернопільська область, Тернопіль
Тернопільська область, Тернопіль
додати в вибране Оренда складу вул. Текстильна
  • 120 000 ₴
  • 1500 м²
Тернопільська область, Тернопіль
м. Тернопіль, р-н Бам, вул. Текстильна
додати в вибране м. Тернопіль, р-н Бам, вул. Текстильна
  • 1 500 ₴
  • 13 м²
м. Тернопіль, р-н Бам, вул. Текстильна
Тернопільська область, Тернопіль
додати в вибране ОРЕНДА комерційного приміщення, вул. Текстильна
  • 10 000 ₴
  • 36 м²
Тернопільська область, Тернопіль