У 20 разів більше оголошень від власників

Збираємо оголошення з найбільших порталів

За номером телефону відрізняємо ріелтора від власника

Показуємо, як змінювалася ціна

Видаляємо дублі оголошень

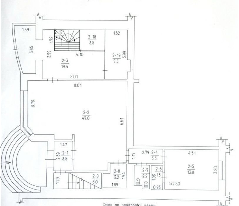
Офіс зі складом та укриттям

Черкаська область, Черкаси
  • Об'єкт UA-1323760987
  • доданий:
  • оновлено:
фото - Офіс зі складом та укриттям фото - Офіс зі складом та укриттям фото - Офіс зі складом та укриттям фото - Офіс зі складом та укриттям фото - Офіс зі складом та укриттям фото - Офіс зі складом та укриттям фото - Офіс зі складом та укриттям фото - Офіс зі складом та укриттям
  • В повний розмір
  • Шукати схожі
фото - Офіс зі складом та укриттям фото - Офіс зі складом та укриттям фото - Офіс зі складом та укриттям фото - Офіс зі складом та укриттям фото - Офіс зі складом та укриттям фото - Офіс зі складом та укриттям фото - Офіс зі складом та укриттям фото - Офіс зі складом та укриттям

Здається в оренду офісне приміщення по вул Грушевського та Благовісна Біля магазину АТБ на першому поверсі зі складським приміщенням яке ж може використовуватися і як укриття. Площа офіса 103 м кв та 60 м складу. В офісі окремий кабінет та просторий та світлий зал. Окремий сан вузол та невелика кухня. Є ще кімната вільного призначення. Встановлений лічильник на тепло що дозволяє заощаджувати на комунальних. Кондиціонери у всіх кімнатах, ролети на вікнах та сигналізація. Дзвоніть! Ціна за м2 - 312 грн

Місцезнаходження на карті, корисні місця і маршрути

Новобудови поруч

ЖК Олимп
Додати в обране ЖК Олимп ул. Сумгаитская, 15/5
  • 740 000 ₴
ЖК Графский
Додати в обране ЖК Графский ул. Байды Вишневецкого, 68
  • 1 598 000 ₴
ул. Сержанта Жужомы, 1
Додати в обране ул. Сержанта Жужомы, 1 ул. Сержанта Жужомы, 1
  • 360 000 ₴
ЖК Парковый квартал
Додати в обране ЖК Парковый квартал ул. Генерала Путейко, 59
  • 27 000 ₴

Об'єкти поруч

Черкаська область, Черкаси
додати в вибране Здається офіс оренда Центр вул Грушевського Благовісна
  • 90 000 ₴
  • 75 м²
Черкаська область, Черкаси
Черкаська область, Черкаси
додати в вибране Приміщення на зупинці по вул. Грушевського
  • 15 000 ₴
  • 22 м²
Черкаська область, Черкаси
Черкаська область, Черкаси
додати в вибране Приміщення з окремим входом, тихий центр, вул. Шулежко, 67
  • 20 520 ₴
  • 114 м²
Черкаська область, Черкаси