Продаж комерційного приміщення на вул. Михайла Максимовича 26В, площа 39.4 кв. м • ID 33045227
Продаж комерційного приміщення на вул. Михайла Максимовича 26В, площа 39.4 кв. м • ID 33045227 вулиця Михайла Максимовича, мікрорайон Голосіїв, район Голосіївський, Київ, метро Васильківська, вул. Михайла Максимовича 26В, площа 39.4 кв. м • ID 33045227
75 600 $
1 938 $ за м²
39 м²

Продаж комерційного приміщення в ЖК "Нова Англія", будинок "Брайтон" Пропонується до продажу комерційне приміщення площею 39, 4 м², розташоване в будинку "Брайтон" житлового комплексу "Нова Англія". Приміщення з якісним ремонтом, обладнане санвузлом. Підходить для офісу, салону краси, магазину, кавярні або іншого виду діяльності. ЖК "Нова Англія" має розвинену інфраструктуру, зручне розташування поруч із громадським транспортом і метро. Територія охороняється, облаштована системою відеоспостереження. Додаткова інформація та перегляд за домовленістю. #RR.10.312

Продаж фасадного приміщення 82м2 з орендарем
Продаж фасадного приміщення 82м2 з орендарем "Бадьорий" Київська область, Київ, Святошинський
168 400 $
2 054 $ за м²
82 м² 1/2 п

Продаж фасадного приміщення з мережевим орендарем, вулиця Валерія Лобановського, 35. Фасад, 1-й поверх, окремий вхід. • загальна площа: 82,6 м². • стан: косметичний. • комунікації в наявності. Приміщення здано в оренду мережевому супермаркету “Бадьорий” Загальний дохід від оренди: 1401,41 $/міс. Окупність: 10 років. За більш детальною інформацією, звертайтесь за телефоном.

Продаж спеціального приміщення на вул. Михайла Максимовича 3Г, площа 229 кв. м • ID 33252597
Продаж спеціального приміщення на вул. Михайла Максимовича 3Г, площа 229 кв. м • ID 33252597 вулиця Михайла Максимовича, Київ, вул. Михайла Максимовича 3Г, площа 229 кв. м • ID 33252597
215 000 $
939 $ за м²
229 м²

Без комісії. Продаж приміщення біля метро Васильківська 256 м² Ідеально під офіс, шоурум, медцентр, студію, спортзал, коворкінг тощо Характеристики: Загальна площа: 256 м² ️ 1 поверх 27 м² ️ 2 поверх 229 м² 2 окремих входи, один біля шлагбаума Після будівельників простір під ваші потреби Висота стелі в підвалі: 3, 44 м Є вентиляційний канал, встановлено пандус Потужність-40 кВт Локація: 7 хв до метро Васильківська Поруч ЖК, офіси, університети Зручна транспортна розвязка Телефонуйте для деталей та перегляду! Гнучкий простір під будь-який бізнес.

Продаж комерційного приміщення Дмітрія Луценко 6
Продаж комерційного приміщення Дмітрія Луценко 6 Київська область, Київ, Солом'янський
120 000 $
2 400 $ за м²
50 м² 1/5 п

Продаж комерційного приміщення в ЖК Британський квартал. 49 кВ м. Окремий вхід, тераса. Зараз працює кафе. Можливий продаж готового бізнесу. Є ванна кімната, окремо кухня, газова плита. Та велика зала для клиентів. Деталі

Продаж комерційного приміщення на вул. Федора Ернста 16Б, площа 48 кв. м • ID 33443892
Продаж комерційного приміщення на вул. Федора Ернста 16Б, площа 48 кв. м • ID 33443892 Федора Ернста вулиця, мікрорайон Турецьке містечко, район Солом'янський, Київ, метро Деміївська, вул. Федора Ернста 16Б, площа 48 кв. м • ID 33443892
50 000 $
1 042 $ за м²
48 м² 2/16 п

Продаж приміщення в ЖК Перлина Кадетського Гаю Київ, вул. Ернста Федора Площа: 48.2 м² Другий комерційний поверх Основні переваги: Формат вільного призначення під офіс, салон, магазин, студію чи інший бізнес Сучасний житловий комплекс з активним трафіком мешканців Зручне планування, що дозволяє облаштувати простір під власні потреби Вигідний варіант для інвестиції чи ведення власної справи. Дзвоніть для уточнення деталей та організації перегляду! Номер оголошення на сайті компанії: SC-213-953-DR.

Продаж офісу, приміщення під ательє, галерею, салон краси
Продаж офісу, приміщення під ательє, галерею, салон краси Київ, Солом'янський, вулиця Василя Липківського 37в
81 000 $
1 688 $ за м²
48 м² 25/25 п

Приміщення у ЖК на Митрополита Василя Липківського 37В, Київ - ідеально під офіс, студію, галерею Площа: 48,7 м² | Поверх: 25 | Стелі: 4 м Два балкони Облаштований санвузол Високі дзеркала - більше світла та простору Ліфт на поверх, генератор для опалення, води та ліфта Гостьовий та підземний паркінг Ідеально для офісу, студії, ательє чи творчого простору. ЖК з усією інфраструктурою, близько до центру Києва, розвинений район. Ціна: 81 000 $ без комісії Адреса: Митрополита Василя Липківського 37В, Київ

ФАСАД Продам помещение в ЖК Медовий Кадетский Гай 8, Радченко
ФАСАД Продам помещение в ЖК Медовий Кадетский Гай 8, Радченко Київська область, Київ, Солом'янський
110 000 $
1 429 $ за м²
77 м² 1/26 п

Продам коммерческое помещение в ЖК Медовый по ул. Кадетский Гай 8. Площадь 77 кв. м. Расположено на 1 этаже 26 этажного дома. Помещение правильной формы, что даст вам возможность максимально полезно использовать всю площадь. Высота потолков 3.3. м., входная дверь, большие панорамные окна, цементно-песочная стяжка, медная разводка, радиаторы отопления, пожарная сигнализация, счетчики на этаже. Комплекс рассчитан на 5000 - 6000 жителей, рядом проездная дорога, что привлечет много клиентов к вашему фасадному офису. Территория охраняется 24/7, оборудована видеонаблюдением, гостевой и подземный паркинг. Удобная транспортная развязка позволит к вам легко добраться как на машине так и пешком, дом находится возле Севастопольской площади, просп. Валерия Лобановского, рядом остановка общественного транспорта. Очень развита инфраструктура района, в пешей доступности: школы, садики, аптеки, банки, магазины и рестораны, прекрасный парк с озером и зоной отдыха. ЖК Медовый введен в эксплуатацию и заселен на 75% Цена актуальная-БЕЗ КОМИСИИ ! Набирайте договоримся о просмотре

Продається приміщення вул. Гетьмана, 5 хв. до метро Шулявка Без комісії
Продається приміщення вул. Гетьмана, 5 хв. до метро Шулявка Без комісії Київська область, Київ, Солом'янський
160 000 $
1 290 $ за м²
124 м² 2/2 п

Продається нежитлове приміщення! 5 хвилин легкої ходи до метро Шулявка! Без комісії! Приміщення площею 124 м2 вільного призначення (офіс, торгівля, різні види послуг, творча майстерня, склад тощо). Солом'янський район, масив Шулявка, вулиця Гетьмана Вадима (Індустріальна), 1, ЖК Місце мрії (зданий). Приміщегння знаходиться на 2 поверсі. У перспективі є можливість використання ліфту. Вхід до приміщення з двору ЖК. Приміщення з ремонтом, але потребує не значних оздоблювальних робіт. Санвузол загальний, знаходиться у коридорі. У приміщенні є можливість монтажу індивідуального санвузла, підведене водопостачання. Приміщення має великі вікна, гарне денне освітлення. Опалення за допомогою електрики (радиатори, кондиціонери). Район з чудово розвиненою інфраструктурою та зручним транспортним сполученням. Ціна приміщення 160000 у.е. Без комісії для покупця!

Нежитлове приміщення радіобазар Ушинського, 4 нижня парковка
Нежитлове приміщення радіобазар Ушинського, 4 нижня парковка Київська область, Київ, Солом'янський
34 900 $
227 $ за м²
154 м² 1/2 п

Продається нежитлове приміщення вільного призначення розташоване на нижній парковці радіобазару за адресою вул. Ушинського, 4. Примещення розташоване в першій будівлі біля шлагбауму. Складається з двох поверхів. Перший поверх складаїться з двох незалежних приміщень, які при необхідності можливо об'єднати. Площа першого поверху 31,5 м. кв+31,5 м. кв. З лицьової сторони першого повершого поверху двері металопластик. Друге приміщення першого поверху має широкі металеві двері 1,5 м. Висота першого поверху 3,07 м. Приміщення другого поверху має по висоті форму трапеції (мансарда) з висотою стелі від 3 до 5,5 метрів. На вищій половині другого поверху зроблена надстройка, що збільшує корисну площу приміщення. Тобто площа другого поверху складає 63+28 м. кв. 5 років тому назад був зроблений капітальній ремонт. Замінена вся проводка, укладена плитка керамограніт, стіни та стеля утеплені 100 мм мінватою.

Админ здание склады 3000м 500 квт большая парковка рядом медгородок
Админ здание склады 3000м 500 квт большая парковка рядом медгородок Київська область, Київ, Солом'янський
1 350 000 $
450 $ за м²
3000 м² 1/4 п

Админ здание, ул Борщаговская, рядом Медгородок Потолок на первом этаже 4+ Есть арендаторы (котроткие договора) Большая своя парковка Остановка транспорту у Бц Можно адаптировать под швейных цех и тд Без комиссии

Продажа здания Святошино Академгородок
Продажа здания Святошино Академгородок Київська область, Київ, Святошинський
550 000 $
549 $ за м²
1002 м²

Продаж будівлі Запрошуємо вас розглянути унікальну можливість придбати цілу будівлю, яка стоїть на вулиці Робоча, у кроковій доступності від станції метро "Академмістечко". Це ідеальний варіант для тих, хто шукає простір для бізнесу чи інвестицій. Загальна площа - 1002 кв. м Поверховість - 3 Будівля складається з трьох поверхів та підвалу, кожен з яких має площу 250 м2. Це дає вам безліч можливостей для розміщення офісних приміщень, торгових площ або будь-якого іншого застосування. Однією із переваг цієї будівлі є заведення 100 кіловат електропостачання та наявність власного твердопаливного котла, що забезпечує надійне та ефективне опалення протягом усього року. Матеріал стін - цегла, що гарантує довговічність та надійність будівлі протягом багатьох років. Ця будівля - чудова інвестиція, яка може стати основою для вашого успішного бізнесу чи приносити стабільний дохід від оренди. Не пропустіть свою можливість - зв'яжіться з нами, щоб домовитися про перегляд та отримати додаткову інформацію. A668

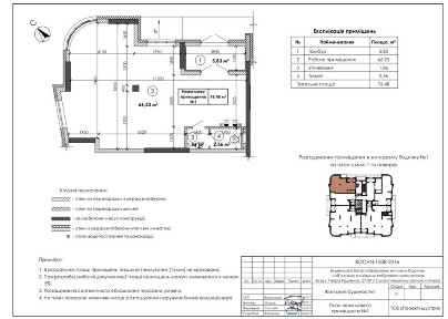
Приміщення 47,7 кв. м, Нова Англія, Ньюкасл, вул. Максимовича
Приміщення 47,7 кв. м, Нова Англія, Ньюкасл, вул. Максимовича Київська область, Київ, Голосіївський
90 000 $
4 500 $ за м²
20 м² 1/21 п

-Краща ціна ! Прямий проїзд з центрального заїзду, Легко знаходити клієнтам ! -Приміщення 47,7 кв. м, окремий вхід, 1-й поверх, місце під вивіску, нежитловий фонд, висота стелі Н=3,5 метри, стартові 12 кВт, каналізація, лічильники на тепло, воду, та електрику ( в будинку автономна газова котельня). -Для гостей та клієнтів безперешкодний доступ на територію, в телеграм каналі онлайн робиться заявка, отримується номер для гостя. -Сучасний ЖК Нова Англія це місто в місті, 14 великих будинків, це 4600 квартир. Алея фонтанів, велика школа, дитячий садок, спорт-клуб, спорт майданчик на відкритому повітрі, розвинена інфраструктура. Метро Васильківська 10-15 хвилин пішки.

Продаж приміщення С. Колоса Лікоград Перфектаун Скайленд ВДНГ Іподром
Продаж приміщення С. Колоса Лікоград Перфектаун Скайленд ВДНГ Іподром Київська область, Київ, Солом'янський
60 000 $
1 538 $ за м²
39 м² 1/7 п

Комерційне приміщення на фасаді вул. Сергія Колоса | Від власника | Без комісії Продам тепле та повністю автономне комерційне приміщення на першій лінії, фасад вул. Сергія Колоса - одна з найжвавіших вулиць району з великим пішохідним та автомобільним трафіком. Ідеально під: крамницю, кав'ярню, салон краси, офіс, майстерню або пункт видачі. Переваги приміщення: Фасадне розташування - максимальна видимість та потік клієнтів. Панорамні вікна з додатковим віконцем для видачі замовлень/оплати без відкриття дверей. Окремий санвузол та комора. Тепла підлога по всій площі - комфорт у будь-яку пору року. Опалення від власної незалежної котельні - стабільне тепло, мінімальні витрати. Є генератор - безперебійна робота бізнесу. Міські тарифи, встановлені лічильники на всі комунікації. Локація: Поруч великі ЖК: Skyland, Perfect Town, Лікоград, Власна Квартира, Квартал Успішний - постійний потік мешканців і потенційних клієнтів.

Продаж нежитлового приміщення в Соломʼянському районі
Продаж нежитлового приміщення в Соломʼянському районі Київ, Солом'янський, вулиця Уманська 49
55 000 $
1 078 $ за м²
51 м² 1/5 п

Продається нежитлове, підвальне приміщення 51 м2, яке знаходиться в Соломʼянському районі столиці, за адресою: Київ, вулиця Уманська 49, біля Караваєві Дачі, радіоринок. Рядом зупинка. Міська електричка, паркова зона, банки, магазини. В приміщенні - рецепція, велика кімната, маленька кімната, санвузол, невелика кухня. Повністю функціонує, є кондиціонери, всі необхідні комунікації, завжи в наявності паркомісце у дворі. Під косметичний ремонт. Окремий вхід. Зручна локація, яка дозволяє швидко і без перешкод діставатись до будь-якої точки міста. Чудово підходить під склад, офіс, виробництво, тощо. Документи готові! Є торг! терміново!

Продам Фасад 156 м2 перетин Антонова\Ушинськго біля NOVUS/Радіоринок
Продам Фасад 156 м2 перетин Антонова\Ушинськго біля NOVUS/Радіоринок Київська область, Київ, Солом'янський
199 000 $
1 276 $ за м²
156 м² 1/5 п

Продам Коммерческое помещение 156 м2 на перекрестке улиц Антонова ( дом 20 ) и Ушинского перед NOVUSом и BOXом и началом РАДИОрынка Соломенский район, Правый Берег -нежилой фонд -фасадный отдельный вход -РЕМОНТ -все комуникации заведены цена 205 000 у.е. Рядом парк, две аптеки, много коммерческих фасадных сагазинов, НОВУС, БОКС, аллея прогулочная, перекресток, пешеходные переходы Густонаселенный район, новые ЖК 09******50 Анатолий Набирайте в любое удобное для вас время ! Всегда есть проходные локации- арендовать или купить выгодно, с хорошей окупаемостью, для ВАС ! Мы также будем рады помочь быстро и выгодно - вам продать/сдать в аренду ВАШЕ помещение ! Звоните !

Кладовка ЖК «Ok Land”
Кладовка ЖК «Ok Land” Київська область, Київ, Солом'янський
15 660 $
1 958 $ за м²
8 м²

Кладовка правильной квадратной формы 8,7 квм. Свет, вентиляция. Охрана. Жк “Ok Land” дом 2 секция 2 этаж -1. Є в наявності і в першій черзі.

КПІ, Шулявська, приміщення 93м2, 1 поверх, вул. Янгеля
КПІ, Шулявська, приміщення 93м2, 1 поверх, вул. Янгеля Київська область, Київ, Шевченківський
140 000 $
1 505 $ за м²
93 м² 1 п

Продаж приміщення в житловому фонді на першому поверсі, вул. Янгеля, 4. Планування: • дві окремі кімнати • простора кухня-студія (можна перепланувати) • два санвузли • кімната для прання та зберігання • гардеробна зона Об'єкт розташований між станціями метро Політехнічний інститут та Шулявська. Зручна транспортна доступність, активний пішохідний та автомобільний трафік. Характеристика: Приміщення у житловому фонді, з функціоналом, який підходить як для комерційного використання (офіс, нотаріат, салон, консультаційний центр тощо), так і для проживання. Зроблено повний якісний ремонт - можна одразу користуватись без додаткових витрат. Передбачена можливість облаштування двох окремих входів, що робить об'єкт зручним для поділу або різних напрямів діяльності.

БЕЗ % Продажа ОСЗ (дитячий садок ) Соломянський район
БЕЗ % Продажа ОСЗ (дитячий садок ) Соломянський район Київська область, Київ, Солом'янський
520 000 $
1 253 $ за м²
415 м² 1/3 п

Без комісії. Світле просторе окреме приміщення площею 415 м. кв. 3 поверхи. У власності фізичної особи. Введений в експлуатацію. Земля 4 сотки у власності. У приміщенні розміщується діючий дитячий садок місткістю 50 дітей. Можливий продаж нерухомості разом із успішним бізнесом. *1 поверх (площа 1762, =3): 2 зони рецепції (2 рецепції, 3 вбиральні, 2 санвузли), 2 зали - 652 та 512. Висота стелі - 3.00. *2 поверх (площа 1412, = 3.05): хол, 4 ігрові кімнати по 302, 2 санвузли. Висота стелі - 3.05. поверх (площа 982, = 2.82): художня майстерня 162, лабораторія 192, 2 кабінети, вчительська кімната 72, кухня 132, їдальня 222, санвузол. Висота стелі - 2.82. будівництво 2017 року. Фундамент на палях (22, -6.5). Зовнішні стіни (ширина 41) - газоблок, утеплений зовні пінополістеролом, облицьований фасадною штукатуркою та керамогранітом, стіни утеплені та шумоізольовані. • Покрівля-метало черепиця. • 5-камерні енергозберігаючі склопакети з аргоном, зовні декоровані «під дерево». Комунікації. • електрика 34; водопостачання та каналізація централізовані, міські; • опалення електричний котел, тепла підлога 1 поверх та зона санвузлів, комбіновані - водяні та електричні; • нагрівання води - 2 бойлери по 80; охоронна та пожежна сигналізації; • відеоспостереження всередині та зовні будівлі; • оптоволоконний інтернет, за приміщеннями - Wi-Fi; • розведення під кондиціонери. Ремонт та меблювання приміщення - кінець 2018 року. 4 сотки огороджено, дитячий майданчик, газони, тротуарна плитка. Густонаселений житловий район. Тиха вулиця у приватному секторі Солом'янського району з розвиненою міською інфраструктурою

Продаж будівлі під реконструкцію, 1000 м2, Київ
Продаж будівлі під реконструкцію, 1000 м2, Київ Київська область, Київ, Солом'янський
950 $
950 $ за м²
1070 м²

Пропонуємо продаж нежитлової будівлі під реконструкцію в Києві. Локація: просп. Відрадний, Солом'янський район. Площа: 1070 м2. Перша фасадна лінія. 2-поверхова будівля з кабінетним плануванням. Стан: під реконструкцію. Отримано Містобудівні умови для відновлення будівлі! Будівля знаходиться на земельній ділянці ~2 га. Підписано довготривалий договір оренди. Комунікації: централізоване водопостачання, газ, електроенергія. Ідеально підійде для облаштування: - офісного центру; - медичної клініки; - приватного освітнього закладу; - гуртожитку та ін. проєктів. Вартість продажу - 950 $ /кв. м.

Продаж підвального комерційного приміщення жк Паркленд м. Васильківська
Продаж підвального комерційного приміщення жк Паркленд м. Васильківська Київська область, Київ, Солом'янський
550 $
550 $ за м²
311 м²

Продається 2 комерційних нежитлових підвальних приміщення в жк Паркленд, метро Васильківська Площа: 311м² Ціна: 550$/м² Потужність електрики: до 50кВт Вода, каналізація. Підійде під будь який вид діяльності: салон краси, магазин, спорт зал, хостел, смартквартири, банк, офіс, відділення пошти чи навіть церкву. Є багато приміщень по місту по всім питанням телефонуйте.

Відкрити карту Карта