У 20 разів більше оголошень від власників

Збираємо оголошення з найбільших порталів

За номером телефону відрізняємо ріелтора від власника

Показуємо, як змінювалася ціна

Видаляємо дублі оголошень

Двокімнатна квартира під “єОселя” у Синергія Київ. Лівий берег

Київська область, Київ, Дарницький
  • Об'єкт UA-1357353096
  • доданий:
фото - Двокімнатна квартира під “єОселя” у Синергія Київ. Лівий берег фото - Двокімнатна квартира під “єОселя” у Синергія Київ. Лівий берег фото - Двокімнатна квартира під “єОселя” у Синергія Київ. Лівий берег фото - Двокімнатна квартира під “єОселя” у Синергія Київ. Лівий берег
  • В повний розмір
  • Шукати схожі
фото - Двокімнатна квартира під “єОселя” у Синергія Київ. Лівий берег фото - Двокімнатна квартира під “єОселя” у Синергія Київ. Лівий берег фото - Двокімнатна квартира під “єОселя” у Синергія Київ. Лівий берег фото - Двокімнатна квартира під “єОселя” у Синергія Київ. Лівий берег

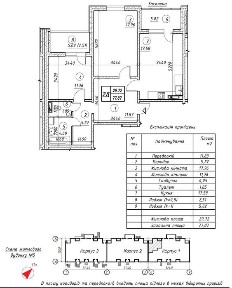
Двокімнатна квартира під “єОселя” у Синергія Київ | Лівий берег | Від забудовника Будинок 2 Площа - 58.98 м² Ціна - 3 715 740 грн або 63 000 грн/м² Простора та світла 2-кімнатна квартира, яка повністю підходить під програму єОселя - 3% для пільгових категорій та 7% для всіх громадян. Об'єкт акредитований банками, що гарантує швидкий та безпечний процес оформлення. Квартира від надійного забудовника "Синергія", з сучасним плануванням та продуманою ергономікою. Лівий берег - комфортна локація з відмінною транспортною розв'язкою та близькістю до метро. ЖК оснащений власною котельнею, якісним наповненням і відмінною внутрішньою інфраструктурою: магазини, паркінг, укриття, дитячі та спортивні зони. Будинок у високому ступені готовності - швидкий старт ремонту після отримання ключів. Ідеальний варіант для сім'ї або першого власного житла з мінімальним щомісячним платежем за програмою державної іпотеки. Дзвоніть **********

Місцезнаходження на карті

Новобудови поруч

ЖК O2 Residence
Додати в обране ЖК O2 Residence Бориспольское шоссе
  • 1 350 000 ₴
ЖК Чаривне Мисто
  • 360o
Додати в обране ЖК Чаривне Мисто ул. Бориспольская, 18-26
  • 326 200 ₴
ЖК Вудстория
  • 360o
Додати в обране ЖК Вудстория ул. Полесская, 4
  • 2 750 000 ₴
ЖК Olympic Park
  • 360o
Додати в обране ЖК Olympic Park Харьковское шоссе, 210
  • 1 496 250 ₴

Об'єкти поруч

Київська область, Київ, Дарницький
додати в вибране 1к Осокорська, 2а ЖК Зарічний Дарницький Осокорки
  • 79 800 $
  • 32 м²
Київська область, Київ, Дарницький
Київська область, Київ, Дарницький
додати в вибране Без комісіі! Позняки, Драгоманова 2, продаж затишноі євродвушки!
  • 84 000 $
  • 50 м²
Київська область, Київ, Дарницький
Київська область, Київ, Дарницький
додати в вибране Чудова 2к з ремонтом (кухня 18), парк Партизанської слави та метро.
  • 78 900 $
  • 78 м²
Київська область, Київ, Дарницький