У 20 разів більше оголошень від власників

Збираємо оголошення з найбільших порталів

За номером телефону відрізняємо ріелтора від власника

Показуємо, як змінювалася ціна

Видаляємо дублі оголошень

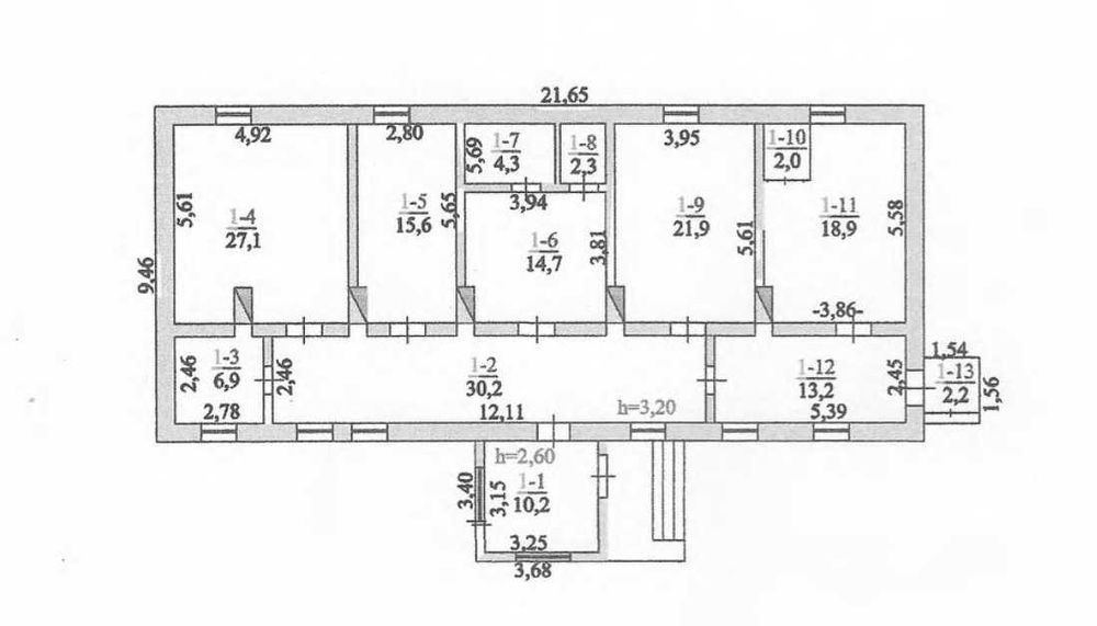
Нежитлова будівля, 169,6 м2, Коростишів, вул. Київська, 159

Житомирська область, Коростишів
  • Об'єкт UA-1355124338
  • доданий:
  • оновлено:
фото - Нежитлова будівля, 169,6 м2, Коростишів, вул. Київська, 159
  • В повний розмір
  • Шукати схожі
фото - Нежитлова будівля, 169,6 м2, Коростишів, вул. Київська, 159

Будівля, протитуберкульозного кабінету, що розташована за адресою: вул. Київська, 159, м. Коростишів, Житомирський район, Житомирська область, загальною площею - 169,6 м2. Об"єкт приватизації являє собою одноповерхову цегляну будівлю. Технічний стан об"єкта - незадовільний. Поточне використання - не використовується Аукціон в електронній торговій системі «Prozorro.Продажі» Посилання на аукціон: sale.uub.com.ua/auction/SPE001UA **********?promocode=0034 Дата проведення аукціону 08.12.2025 Початкова ціна продажу лоту 288 150 грн Допомога в участі в аукціоні Контактна особа Віктор, відповіді на всі питання по телефону УКРАЇНСЬКА УНІВЕРСАЛЬНА БІРЖА

Місцезнаходження на карті

Об'єкти поруч

Житомирська область, Коростишів
додати в вибране Продається комерційна нерухомість
  • 46 999 $
  • 48 м²
Житомирська область, Коростишів
Житомирська область, Коростишів
додати в вибране Продаж комерційного приміщення
  • 180 000 $
  • 310 м²
Житомирська область, Коростишів
Житомирська область, Коростишів
додати в вибране Власник! Продам майновий комплекс
  • 290 000 $
  • 2500 м²
Житомирська область, Коростишів
Житомирська область, Коростишів
додати в вибране Майновий комплекс котельні, 666,9 м2, вул. Київська, 125
  • 2 082 729 ₴
  • 666 м²
Житомирська область, Коростишів