У 20 разів більше оголошень від власників

Збираємо оголошення з найбільших порталів

За номером телефону відрізняємо ріелтора від власника

Показуємо, як змінювалася ціна

Видаляємо дублі оголошень

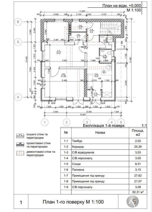
Оренда приміщення під стоматологію Миколаїв

Львівська область, Миколаїв
  • Об'єкт UA-1342092524
  • доданий:
  • оновлено:
фото - Оренда приміщення під стоматологію Миколаїв
  • В повний розмір
  • Шукати схожі
фото - Оренда приміщення під стоматологію Миколаїв

Здаємо в оренду приміщення: - 165 м2- м. Миколаїв вул. Львівська Львівська обл. Ідеально підійде під стоматологію, зроблені всі комунікації: до крісел підведено вода холодна, гаряча, повітря, кисень, індивідуальне опалення, сигналізація хорони, сигналізація протипожежна, відео спостереження, інтернет, паркомісця, світло три фази потужністю 45 кВт Приміщення стоматології складається: рецепції, два санвузла для персоналу та відвідувачів, котельня, ренген кабінет, кімната керування, стерилізаційна, два кабінети стоматолога на чотири крісла компресорна, кімната персоналу

Місцезнаходження на карті, корисні місця і маршрути

Об'єкти поруч