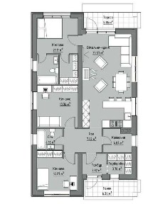
Будинок 120 кв. м з газом, с. Шевченкове
Будинок 120 кв. м з газом, с. Шевченкове Київська область, Шевченкове
95 000 $
792 $ за м²
4-кімн 120 м²

Продаж газифікованого будинку загальною площею 120 кв. м на ділянці 4,5 сотки в с. Шевченкове. Будинок збудований з газоблоку та утеплений пінопластом 100мм. Вікна Rehau. Має комфортне планування: простора кухня-вітальня, 4 кімнати та 2 санвузли. Комунікації: Газ, світло 15 кВт, свердловина та септик з переливом. Встановлені відкатні ворота. Сучасний та комфортний будинок. Продаж без комісії! Перегляд в зручний для Вас час!

продаж будинку 225,6 м кв в село Шевченкове, ексклюзив
продаж будинку 225,6 м кв в село Шевченкове, ексклюзив Київська область, Шевченкове
130 000 $
578 $ за м²
5-кімн 225 м²

Шикарна та унікальна пропозиція в с. Шевченкове, Бучанського району. 5 окремих кімнат - ідеально для сім'ї, хто любить окремий простір. Перший поверх: гараж на 2 авто з технічною кімнатою, простора кухня вітальня з виходом на терасу 25 м кв, кімната, санвузол. Другий поверх: 4 кімнати, 2 санвузли, пральна кімната, гардеробна 8 м кв. На вулиці тераса та зона для спорту, де можна розмістити тренажер та закріпити спортивні приладдя. Заведено 3 фази, 40кВт, зроблена якісна розводка по всьому будинку, 24 інтернет точки під робочі зони, камери,Wi-Fi, телевізори, оптоволоконний інтернет від Corbina. Свердловина 17м. Подвійний септик. Двошарова бітумна черепиця. Вікна з бронеплівкою. Є газ по вулиці. Закладено можливість підключеня генератора та сонячних панелей. Рівна ділянка 10 сот., можна побудувати басейн та патіо. Будинок одночасно схований від шумних вулиць, але магазини, Нова Пошта, кафе все в 5 хвилинах їзди на авто. До метро Житомирська 13 хвилин на авто. Можемо передати прораба, який працював над будівництвом та може продовжити ремонтні роботи, який проживає поруч. Будинок введений в експлуатацію 2024 році. Ціна 130000$ продаж по найкращій пропозиції

Дуплекс! Білогородка! Газ! Залишився один в продажу!
Дуплекс! Білогородка! Газ! Залишився один в продажу! Київська область, Шевченкове
128 000 $
1 016 $ за м²
4-кімн 126 м²

Пропонуємо до продажу просторий та сучасний дуплекс 126 м² у затишній та перспективній Білогородці - ідеальний варіант для комфортного життя за містом, поруч із усією необхідною інфраструктурою. Основні характеристики: Площа будинку: 126 м² Ділянка: 3.5 соток - достатньо місця для тераси, зони барбекю чи дитячого майданчика Комунікації: Газ Власна скважина Септик з переливом Стан готовності: під чистове оздоблення - можна одразу розпочинати ремонт під свій стиль Виконані роботи: Водяна тепла підлога по всьому першому поверху Повністю розведена електрика Розведена сантехніка Зроблена чорнова штукатурка стін Виконана стяжка підлоги Встановлене газове опалення Дуплекс має продумане планування, енергоефективні рішення та розташований у районі з зручним доїздом до Києва. Це чудовий варіант для родини, яка цінує простір, комфорт і якісне будівництво. Готовий до перегляду - телефонуйте!

Будинок в с. Шевченкове з гаражем та мансардою 5 соток БЕЗ КОМІСІЇ
Будинок в с. Шевченкове з гаражем та мансардою 5 соток БЕЗ КОМІСІЇ Київська область, Шевченкове
115 000 $
657 $ за м²
2-кімн 175 м²

Продаж гарного будинку в с. Шевченкове на межі з Білогородкою! СУПЕР ПРОПОЗИЦІЯ. ЗНИЖКА! Ділянка 5 соток Загальна площа: Перший поверх: 120 м² Мансардний поверх: 55 м² Гараж: 32 м² Велика кухня-вітальня, 2 кімнати, санвузол, мансарда, тераса. Додаткові споруди та зручності: Навіс для авто Простора тераса Погріб Свердловина глибиною 47 м Септик з переливом 12 м3 Підключена електрика 16 кВт Локація: село Шевченкове - тихе, затишне місце, зручний доїзд, свіже повітря та мальовнича природа. Поруч дитячий майданчик, супермаркет, зупитки транспорту! ДИТЯЧИЙ САДОК Допоможу з оформленням по державній програмі, ЄОселі та ін. Повністю координую на всіх етапах. Дзвоніть, з радістю вам підберу житло по Вашому запиту: тг: О7З О54 89 ЗЗ

Будинок 125м2/6 соток/газ /без комісії
Будинок 125м2/6 соток/газ /без комісії Київська область, Шевченкове
180 000 $
1 440 $ за м²
3-кімн 125 м²

Продаж одноповерхового будинку в сосновій частині Білогородки (Шевченково) Територія огороджена парканом, гарні сусіди поруч, сосновий ліс- спокій та чисте повітря. Будинок побудований з якісних та екологічних матеріалів - Керамоблок та перліт, клінкерна цегла - забезпечує гарний вигляд та довговічність! Загальна площа 125м2 У будинку продумане планування : - кухня -вітальня - 3 кімнати - котельня - 2 санвузли - крита тераса В будинку вже все готове до чистового ремонту, вже зроблена : - стяжка - штукатурка - електрика розведена - сантехніка розведена - тепла підлога - радіатори Будинок поєднує якість та комфорт! Якщо зацікавив будинок : пишіть або телефонуйте для перегляду, Євгенія

Шевченкове! Газ! Продаж готового будинку 182 м2 та 9 соток землі!
Шевченкове! Газ! Продаж готового будинку 182 м2 та 9 соток землі! Київська область, Шевченкове
258 000 $
1 418 $ за м²
4-кімн 182 м²

Пропонуємо до продажу сучасний двоповерховий будинок з клінкерної цегли, створений для комфортного, безпечного та довговічного проживання. Основні характеристики: Площа будинку: 182 м² Тераса: 30 м² - ідеальне місце для відпочинку та сімейних вечорів Автонавіс на два авто Ділянка: 9 соток з облаштованим газоном та автоматичним поливом Комунікації та технічні переваги: Газ + газовий котел Електрика 17 кВт, три фази, лічильник день/ніч Свердловина з насосом та автоматикою Загільзована шахта під камін - можливість облаштувати затишний сімейний вогнище Міжповерхові перекриття: перший-другий поверх - залізобетонна плита, другий поверх-горище - моноліт Виконані роботи всередині: опалення повністю розведена електрика слаботочка (інтернет, сигналізація) штукатурка стяжка Усе під чистове оздоблення, що дозволяє реалізувати будь-який дизайн. Переваги будинку: Клінкерна цегла - преміальний, довговічний та енергоефективний матеріал Велика тераса та простора ділянка Якісна інженерія Можливість швидко розпочати чистові роботи та облаштувати інтер'єр під свій стиль Вартість: 258 000 $ Цей будинок - ідеальний варіант для тих, хто шукає якісне, продумане й готове до фінального оздоблення житло у комфортній локації. Готовий до перегляду!

Дуплекс, 2 пов. Євроремонт. с. Шевченкове, Бучанський район
Дуплекс, 2 пов. Євроремонт. с. Шевченкове, Бучанський район Київська область, Шевченкове
127 000 $
977 $ за м²
4-кімн 130 м²

Сучасний дуплекс біля Києва - якість, комфорт і тиша! Пропонується до продажу сучасний дуплекс із ремонтом за адресою: вулиця Горобинова, 14а/2 у селі Шевченкове, всього за 10 хвилин їзди від столиці. Це ідеальний варіант для тих, хто мріє про власний будинок у спокійному місці, але водночас хоче залишатися поруч із містом. Будинок зведений у 2022 році за новою німецькою технологією, яка вже зарекомендувала себе в Європі. Панелі утеплені на 25 см, по всьому будинку облаштована водяна тепла підлога. Електрика трифазна, потужністю 16 кВт, опалення забезпечу.е. ектрокотел. Є власна свердловина та септик, що робить житло максимально автономним. Планування продумане для комфортного життя: на першому поверсі розташовані кабінет, гостьовий санвузол та простора кухня-вітальня з виходом на терасу. На другому - три окремі кімнати та ще один санвузол. Загальна земельна ділянка становить 5 соток, є власна парковка на чотири автомобілі. Територія закрита, під'їзд асфальтований, навколо - тиша та спокій. До найближчого метро лише 15 км, що дозволяє швидко дістатися до Києва. Для зручності покупців можливе розтермінування до 5 років. Цей дуплекс - поєднання сучасних технологій, затишку та вигідної локації. Тут легко уявити сімейні вечори на терасі, прогулянки у тиші та комфортне життя поруч зі столицею. Можливий обмін на вашу нерухомість. Усі подробиці про помешкання та про його придбання за телефоном. Телефонуйте у будь-який час! Ми завжди раді вам допомогти! Надаємо повний спектр послуг з купівлі та продажу квартир та будинків. Великий досвід допомоги по купівлі квартир за державними програмами: 1) Є-оселя 2) Житло для ВПО та військових (постанова 280) 3) Сертифікат на зруйноване житло З нами безпечно, якісно, вигідно!

Будинок 180 м² 9 соток під чистове оздоблення, вихід до річки
Будинок 180 м² 9 соток під чистове оздоблення, вихід до річки Київська область, Шевченкове
258 000 $
1 433 $ за м²
4-кімн 180 м²

Готовий двоповерховий будинок 180 м² | 9 соток | Тиха вулиця | 10 хв до Києва Цегляний будинок з клінкерним фасадом у зручній і спокійній локації. Поруч магазини, кав'ярні, Нова пошта та громадський транспорт - усього 5 хвилин пішки. До Києва 10 хвилин на автомобілі. Основні параметри: • Площа будинку: 180 м² • Площа ділянки: 9 соток • Тераса 32 м² • Навіс на два авто • Електрика 17 кВт, три фази • Газ і газовий котел • Свердловина з насосом і автоматикою У будинку виконано: • Опалення • Електрика та слаботочка • Штукатурка • Стяжка під чистове оздоблення • Монолітна плита між другим поверхом і горищем Перевага: у кінці ділянки є вихід до річечки, яку можна розчистити та облаштувати як власну зону відпочинку. Продаж без комісії. Телефонуйте - перегляди щодня.

Продаж Будинку 132м2 в с. Шевченкове! БЕЗ КОМІСІЇ
Продаж Будинку 132м2 в с. Шевченкове! БЕЗ КОМІСІЇ Київська область, Шевченкове
195 000 $
1 477 $ за м²
3-кімн 132 м²

БЕЗ КОМІСІЇ! Продаж Будинку 132м2 в с. Шевченкове! Будинок в один поверх! Локація: - Шевченково - Вул. Дачна, 5 - Ділянка 5,37 сот. - Будинок 132 м2 атонавіс на два авто - Тераса 11 м2 Технічна характеристика: - Одноповерхові будинки з клінкерної цегли - Свердловина із насосом і автоматикою) - Газ газовий котел - Електрика 17 кВт три фази, лічильник день/ніч - У будинку зроблено опалення, електрика, слаботочка, штукатурка, стяжка усе під чистове оздоблення - Між першим і горищем заллита монолітна плита - Автоматичний полив і рулонний газон. За більш детальну інформацію телефонуйте!

Будинок Шевченкове з підвалом
Будинок Шевченкове з підвалом Київська область, Шевченкове
115 000 $
732 $ за м²
4-кімн 157 м²

Продаю хороший будинок з підвалом в селі Шевченкове. Хороший двоповерховий будинок, з автонавісом, гаражем та підвалом. Площа будинку : 157 м2 Площа ділянки : 5 соток Площа підвалу : 10 м2. Будівництво : - стрічковий фундамент; - стіни газоблок; - утеплення пінопласт; - оздоблення барашек; - перекриття подвійне деревʼяне; - дах утеплений ватою; - покрівля металочерепиця. Комунікації : - електрика 16 кВт; - свердловина 45 м; - септик з переливом. Є можливість підвести газ. Планування : 1 поверх : - вхідна група; - котельня; - санвузол; - кухня вітальня; - 3 кімнати. 2 поверх : Вільне планування. Особливий будинок в тихому місці з найкращими сусідами. По локації все що потрібно поруч. Не баріться, пишіть, дзвоніть, я чекаю ! Ціна : 115 000 $ БЕЗ КОМІСІЇ ДЛЯ ПОКУПЦЯ

Стильний будинок з газовим опаленням
Стильний будинок з газовим опаленням Київська область, Шевченкове
160 000 $
800 $ за м²
4-кімн 200 м²

Будинок у с. Шевченкове - простір, якість та продумане планування Основні характеристики: • Площа будинку: 200 м² • Ділянка: 6,5 соток • Матеріал стін: газоблок • Поверховість: 1 поверх + мансардний поверх • Гараж у будинку • Велика крита тераса для відпочинку в будь-яку погоду Комунікації та інфраструктура: • Газ • Септик • Свердловина • Асфальтований під'їзд • Виконане озеленення, облаштований газон Планування: • 1 поверх: гараж, передпокій, простора кухня-вітальня, 2 спальні • Мансардний поверх: вільного планування - можливість створити додаткові кімнати або велику студію

Продам будинок с. Шевченкове (Білогородка)
Продам будинок с. Шевченкове (Білогородка) Київська область, Шевченкове
300 000 $
1 875 $ за м²
3-кімн 160 м²

с. Шевченкове (Білогородська громада), р-н Сонячний 1. До м. Житомирська 15 хв. Ділянка 12 соток. Будинок одноповерховий, 160 кв. м., будувався для себе. СТІНИ з червоної цегли 380мм (1,5 цегли), ППС плитами 150мм. СТЕЛЯ - монолітне перекриття, утеплене мінватою. ДАХ покритий бітумною черепицею Іко Саmbridge. ВІКНА Rehay. КОМУНІКАЦІЇ: підключений газ, підведена електрика (15кВт) та розведена електропроводка у будинку, власна каналізація та окремо система відведення надлишкової води, зроблені всі закладні під кондиціонери, прокладені теплі поли та встановлені радіатори для обігріву. Територія навколо знаходиться під цілодобовим відеонаглядом. ІНШІ СПОРУДИ: ГАРАЖ побудовані з червоної цегли на три машини, з генераторною. БУДИНОК ОХОРОНИ з маленькою кухнею, душем та санвузлом. ПОГРІБ виконаний повністю з моноліту, за бажанням, може бути переобладнаний під бомбосховище. ДІЛЯНКА розпланована, залитий бетон під укладку фемки. Фасадна частина території обнесена парканом з цегли. ТАКОЖ встановлені інсталяції під сантехнічні прилади, виконані усі чорнові роботи під чистове оздоблення. Є дизайнерське рішення по інтерєру будинку. Всі споруди введені в експлуатацію, наявна вся документація про право власності на будинки та ділянку.

Продаж будинку з газом, село Шевченкове, Білогородка 120м. кв.
Продаж будинку з газом, село Шевченкове, Білогородка 120м. кв. Київська область, Шевченкове
92 000 $
767 $ за м²
4-кімн 120 м²

Продаж окремого будинку 120 м. кв. в с. Шевченкове, Білогородська ОТГ, вул. Миколаївська Будинок розміщений на земельній ділянці 3 сотки. Має чотири окремі кімнати, дві ванні кімнати та велику залу. Фундамент монолітно-стрічковий, стіни газобетонний блок, утеплювач 100 мм. Вікна REHAU 70 мм. Покрівля металочерепиця. Електрика 13 кВт, є власна свердловина та септик. В будинок заведено газ. Під'їзд до будинку асфальт. Розвинута інфраструктура: зупинка громадського транспорту, 15 хвилин до метро Житомирська (автобус, маршрутне таксі, автомобіль), магазин, поштове відділення, школа, садочок. Ціна: 92000 у. о. Код об'єкта: #22317

Будинок під чистову/132м2/5соток/Без комісії
Будинок під чистову/132м2/5соток/Без комісії Київська область, Шевченкове
195 000 $
1 477 $ за м²
3-кімн 132 м²

Комфортний будинок в передмісті столиці з чистовим наповненням Штукатурка стін Розведена електрика Розведена сантехніка Тепла підлога Встановлений двоконтурний газовий котел В будинку три спальні Два сан вузли Технічне приміщення Та простора кухня вітальня з виходом на терасу Монолітне перекриття, що є необхідним в наш час Ділянка 5 соток з озелененням та авто поливом Авто навіс на два авто Є відео огляд Без комісії для покупця

Продам новий будинок Білогородка, Шевченкове 145 м2
Продам новий будинок Білогородка, Шевченкове 145 м2 Київська область, Шевченкове
109 000 $
752 $ за м²
5-кімн 145 м²

Продам новий будинок в Бучанському районі Київської області, с Білогородка. Чудова локація До метро Житомирська 8 км. Будинок знаходиться в котеджному містечку Зелений бульвар. по вул Стрітенська. Статус земельної ділянки під забудову. Площа будинку 145 кв. м. Вміщує в собі чотири просторі кімнати, кухню студіо 26кв. м. з виходом на задній двір. Також є окрема кімната для гостей з окремим входом. Гараж та велика тераса. Спокійне затишне місце, Своя скважина, електрика 15 кВт, антисептик 7кубів. Дороги в містечку заасфальтовані. тротуари викладені бруківкою, є зона відпочинку та дитячі майданчики. Дизайн проєкт у подарунок. Запрошуемо на перегляд.

Шевченкове. Будинок з газом.
Шевченкове. Будинок з газом. Київська область, Шевченкове
99 000 $
990 $ за м²
3-кімн 100 м²

Вартість 99000 долл (Без комісії для покупця) Продам цегляний одноповерховий будинок з газом! Будинок розташований в одній з анайкращих локацій Білогородки (Шевченково). Асфальтований заїзд, поруч кілька продуктових магазинів, швидкий виїзд на Житомирську трасу. В будинку 3 кімнати, 2 санвузли, котельня. Опалення газове Комунікації: газ, електрика 7кВт, свердловина, септик. Будинок розташований на ділянці 5 соток. Прибудинкова територія огороджена, відмостка і місце для парковки залито бетоном і підготовлено під укладку тротуарної плитки. Будинок майже готовий. Номер оголошення на сайті компанії: SH-215-928-LX.

Будинок 180м2 ‼️ Ремонт під чистову ‼️ 9 соток | Білогородка | Без%
Будинок 180м2 ‼️ Ремонт під чистову ‼️ 9 соток | Білогородка | Без% Київська область, Шевченкове
257 999 $
1 433 $ за м²
4-кімн 180 м²

Без Комісії ! ‼️ Будинок з РЕМОНТОМ під чистову обробку, с. Білогородка, Київ 15 хв. ‼️ Є ВІДЕООГЛЯД ‼️ Тиха і асфальтована вулиця Площа - 180 м2 Ділянка - 9 соток Тераса - 32 м2 Комунікації: - ГАЗ (газовий котел) - 17 кВт 3 фази - свердловина з насосом - септик ‼️ Всі комунікації розведені по будинку Будівництво: - побудований з керамоблоку - утеплення стін - перліт - утеплення даху - мінвата - газон з автополивом ‼️ Між другим поверхом та дахом монолітне перекриття ‼️ За більш детальною інформацією, телефонуйте

Продам новий будинок, Білогородка, 165 м2, Газоблок, Ціна Забудовника!
Продам новий будинок, Білогородка, 165 м2, Газоблок, Ціна Забудовника! Київська область, Шевченкове
131 000 $
794 $ за м²
5-кімн 165 м²

Продам новий, двоповерховий будинок загальною площею 165 м2 + тераса 16 м2 у с. Шевченкове (4 км. від КП на житомирській трасі у бік Білогородки). Котеджне містечко «Європа», забудовник - Євродім. Рік побудови - 2022 Газоблок + утеплення пінопластом. Одна з найкращих (а можливо найкраща) ділянка в котеджному містечку. Максимально можливе віддалення від сусідніх будинків, висока ділянка правильної форми. Площа ділянки - 7,26 сотки. В будинку: 4 окремі спальні: • 11,63 м2 • 17.34 м2 • 14,45 м2 • 14,45 м2 2 санвузли: • 5,32 м2 • 7,96 м2 Велика кухня-студія площею 42,93 м2., тераса 16.3 м2 та котельня-госпблок 15,05 м2. (Детальніше планування з усіма розмірами дивіться на фото). Комунікації: • Електрика 7 кВт. ПРЯМИЙ ДОГОВІР із ДТЕК - є можливість докупити потужність. • Є можливість підключення ГАЗУ ! • Каналізація - септик із можливістю підключення міської каналізації. • Вода - централізовано від котеджного містечка. Ціна - 131 000 $

Продаж Сучасного Будинку Якісна Побудова Кращий Масив Шевченкове
Продаж Сучасного Будинку Якісна Побудова Кращий Масив Шевченкове Київська область, Шевченкове
185 000 $
1 156 $ за м²
4-кімн 160 м²

Надійний будинок в найкращому масиві, обжита та забудована вулиця. Будинки розташовані на височині з гарним видом на Шевченкове. Продуманий проєкт з практичним плануванням. Вулиця тиха, з помірним трафіком. В декількох хвилинах необхідна інфраструктура, сосновий ліс. Встигніть придбати будинок до здорожчання! В продажі три будинки Площа будинків - 160м2 та 170м2 Ділянка - 6,5 соток Майстер спальня зі своїм гардеробом та санвузлом 2 спальні Кабінет/додаткова спальня 2 санвузли Кухня-вітальня Технічне приміщення Фундамент - Монолітно-стрічковий з армованою плитою В25 Стіни - Керамоблок 250мм Кератерм Перестінки - Керамоблок 100мм Кератерм Перекриття - Монолітне 180мм Дах - дерев'яні балки Покрівля - Металочерепиця 0.5мм Словаччина Утеплення покрівлі - МінВата 200мм + гідробарєр (мембрана)\паробарєр (мембрана) Утеплення стін - МінВата 100мм Сходинковий марш - Монолітний армований Вікна - WDS 7-ї серії 2-х камерні склопакети з енергозбереженням Комунікації: Cвітло - 17кВт Септик переливний - 10 м3 Індивідуальна свердловина - 78м ГАЗ Територія: Огорожа - паркан із блоків та профнастилу, відкатні ворота Під'їзд до ділянки - асфальт На ділянці - відмостка та парковка на 2 авто - бруківка, крита тераса Ціна - 185 000$ Телефонуйте для уточнення деталей та запису на перегляд. Фахівець з нерухомості компанії «BRICK» Олег.

Будинок 250 м2 газ цоколь басейн с. Шевченкове Білогородка поруч Київ
Будинок 250 м2 газ цоколь басейн с. Шевченкове Білогородка поруч Київ Київська область, Шевченкове
295 000 $
1 180 $ за м²
6-кімн 250 м²

с. Шевченкове, межує Білогородка, поруч Чайки, Стоянка. 12хв метро Житомирська. 5 км до траси Житомирської. Межа Києва 4.5 км. Будинок 250 м2, додатково цоколь, закритий басейн, тераса Ділянка 10 соток землі, по факту відчувається більше. Сусідські будинки не вікна в вікна. На ділянці є барбекю. Паркомісця на 4 авто. Тераса велика. Всі комунікації заведені в будинок. Світло. Газ. Септик. Свердловина. Газон. Озеленення. Автополив. Сад. Планування: 1 поверх: тамбур, передпокій з шафою, кухня, вітальня з каміном, їдальня, велика тераса, 2 санвузла, котельня, закритий басейн +30 завжди. 2 поверх 4 спальні, санвузол, 2 балкона, велика тераса, сан вузол. Цоколь: кімната тренажерний зал, котельня, 2 шт кімнати, погреб, 2 вихода. Ділянка 10 соток. Відчувається більше. 5 паркомісць. Барбекю. Басейн закритий. Садові дерева. Огород. Газон автополив. Ціна 295000дол. Без комісії від власника. На телефоні є всі меседжери. Маємо великий вибір будинків. Телефонуйте, будемо раді бачити

Відкрити карту Карта