продаємо таунхаус|Пустомити|120кв. м 5сот
продаємо таунхаус|Пустомити|120кв. м 5сот Львівська область, Пустомити
105 000 $
875 $ за м²
4-кімн 120 м²

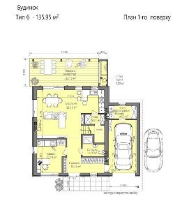
Нова пропозиція на ринку! продаємо таунхаус Пустомити 120кв. м загальної площі 5сот площа земельної ділянки утепленний фасад Усі комунікації 2-ох рівневий, висота 3м 0-ий цикл, вільного планування, монолітне перекриття Є декілька варіантів внутрішнього планування Якісні вікна Steko (двокамерний склопакет) Якісні та сучасні вхідні двері, фасад утеплений пінопластом товщиною 12см Підведений газ, електрика 5квт, з можливістю збільшення потужності, центальне водопостачання, каналізація септик Практичне подвір'я з продуманим простором - ідеальне для втілення ваших ландшафтних чи дизайнерських рішень. Є зручне паркування на два автомобілі Також планується облаштування прибудинкової території, з бруківкою та парканом Є бригади майстрів, готові професійно доопрацювати та завершити ремонтні роботи. Перевагою є розвинута та обжита локація, з брукованим заїздом Розвинута інфраструктура, поруч є все необхідне для комфортного проживання Геолокацію надішлю за запитом огляди, у будь який, зручний для Вас час за додатковою інформацією телефонуйте або ж пишіть у зручний для Вас месенджер запрошую до співпраці, власників нерухомості повний спектр послуг на ринку купівля продаж оренда юридичний супровід

Терміново! Пустомити, особняк 20сот. З озером.
Терміново! Пустомити, особняк 20сот. З озером. Львівська область, Пустомити
120 000 $
1 081 $ за м²
4-кімн 111 м²

Нова пропозиція на ринку! ПРОДАЖ будинку ( особняк) +ділянка 20 сот (10 житло +10 сг ) з озером в Пустомитах ! Вул М Рильського/ тиха та спокійна локація. Площа будинку - 107метрів лише 1 поверх + є 2 поверх без ремонту (вхід окремо ) Гарний житловий стан. Залишається все що є Великий підвал, гараж, допоміжні будівлі, літня кухня Є газ, вода, каналізація Світло Твердопаливний котел Телефонуйте, можна оглянути в будь який час

ПРОДАЖ Будинку Пустомити 3 кім 20 сот землі + 2 поверх
ПРОДАЖ Будинку Пустомити 3 кім 20 сот землі + 2 поверх Львівська область, Пустомити
120 000 $
1 081 $ за м²
3-кімн 111 м²

ПРОДАЖ будинок +ділянка 20 сот (10 житло +10 сг ) з озером в Пустомитах ! Вул М Рильського Площа будинку 107метрів лише 1 поверх + є 2 поверх без ремонту (вхід окремо ) Великий підвал, гараж, допоміжні будівлі, літня кухня Є газ, вода, каналізація Світло Твердопаливний котел Телефонуйте, можна оглянути Ціна 120.000 дол

продаж збудованого котеджу в Наварії
продаж збудованого котеджу в Наварії Львівська область, Наварія
125 000 $
899 $ за м²
3-кімн 139 м²

Продається сучасний котедж у близькому передмісті Львова, в Наварії, поруч біля озера, школи, торгового центру. Дуже зручне розташування, вся інфраструктура поруч Гарний варіант для сімейного життя, або ж вигідна інвестиція для здачі котеджів в оренду Будинок побудований з енергоефективних матеріалів, має продумане планування, затишний двір, ландшафтний дизайн та зелену зону для відпочинку. на першому поверсі: простора кухня-вітальня, гараж, санвузол на другому поверсі: три спальні та вихід на відкритий балкон з кожної кімнати санвузол Висока якість будівництва -закрита територія -зручна інфраструктура -центральні комунікації -індивідуальне газове опалення -розведена тепла підлога Матеріли, використані у будівництві : -керамічна цегла -фундамент залізобетон -перекриття залізобетонне -вентканали виконані з повнотілої цегли з гільзуванням із нержавійки -дах ПВХ мембранна -вікна енергозберігаючі з 7-ми камерним профілем та 2-ох камерним склопакетом " REHAU" -броньовані вхідні двері -утеплення стін пінопластом -бруківка -огорожа залізобетонна з вставками ранчо Будинки збудовані, проводиться накриття, здача планується у 1 кварталі 2026 року запрошую на огляд пропозиція дуже достойна

Продаж окремого будинку 135 м2, 6 сот, с. Наварія, (4 хв до Сокільники)
Продаж окремого будинку 135 м2, 6 сот, с. Наварія, (4 хв до Сокільники) Львівська область, Наварія
163 140 $
1 208 $ за м²
4-кімн 135 м²

Будинок у закритому містечку Narville, с. Наварія (10 хв від Львова) Будинки на ділянках 6-8 соток біля озера і парку. Безвідсоткове розтермінування до 2 років! Ідеальна локація: поруч школа, супермаркет, аптека. 10 хв до ТРЦ Victoria Gardens. Інфраструктура містечка - Простора територія містечка 12 га - Територія містечка закрита, з охороною 24/7 - Парк всередині містечка де вже ростуть понад 200 вікових дерев - Містечко межує з парком площею 21 га біля озера Наварія - Сучасні дитячі майданчики - СПА комплекс з саунами - Ігрова для дітей для дозвілля дітей у будь-яку погоду - Безпечні кімнати у кожному будинку - Міні маркет - Вихід через парк до озера У вартість входить: - Опалення (котел Viessmann) - Усі комунікації - Панорамні вікна - Фальцева покрівля - Утеплення даху - Керамічна цегла 380 мм - Залізобетонне перекриття 1 та 2 поверху - Понолітні сходи - Вентканал під камін Проект від забудовника «Місто Комфорту».

Продаж будинку Пустомити
Продаж будинку Пустомити Львівська область, Пустомити
55 000 $
183 $ за м²
6-кімн 300 м²

Продаж будинку в Пустомитах, пл. 300 кв. м., 2/2 цегла, Хороше планування. 1пов. (кухня+три кімнати+санвузол) 2пов. (три кімнати +кухня+санвузол), у цоколі можна облаштувати сауну, пральню, котельню, є гараж. Комунікації на ділянці. Гарне розташування. Район новобудов, поруч зупинки транспорту. 10 сот. землі.

Продаж будинку з ремонтом Пустомити
Продаж будинку з ремонтом Пустомити Львівська область, Пустомити
158 000 $
658 $ за м²
5-кімн 240 м²

Продаж двоповерхового будинку околиця м. Пустомити Містки Площа 240м Ділянка 22 сот Господарські будівлі та 2 гаражі - 110 м2 Додатково ще є горище та підвальне приміщення Опалення: двоконтурний газовий котел На 1 поверсі: простора вітальня, кухня, санвузол, технічна кімната та передпокій На 2 поверсі: 3 ізольовані та спальні та гостьова кімната, гардероб. Доїзд асфальтований, поруч вся необхідна інфраструктура, озеро, ліс. Тихе та безпечне місце для проживання великої сімʼї. Розглянуть під єВідновлення. Вартість 158 000$ (торг присутній)

Продаж Будинку ( Пустомити)
Продаж Будинку ( Пустомити) Львівська область, Пустомити
130 000 $
867 $ за м²
3-кімн 150 м²

Продаж будинку у Пустомитах Площа 8 сотих 150 м2 по будинку Хороший доїзд Вулиця житлова Світло 11 кіловат Вода центральна Каналізація септик Ціна даного будинку 130 000$ Всі деталі за номером телефона

Продаж будинку в с Семенівка 89000$ ділянка 37сот
Продаж будинку в с Семенівка 89000$ ділянка 37сот Львівська область, Семенівка
89 000 $
659 $ за м²
4-кімн 135 м²

Пропонуємо на продаж будинок в с. Семенівка (2 км від Пустомит, 23км відстань від Львова). площа 135м прверхи 2 4 спальні, кухня, два санвузли, веранда, вікна МП, житловий стан. Площа ділянки 47сот, квадратної форми, на території є озеро. Є літня кухня з гаражем. Світло, газ, вода. Гарний доїзд. Продаж без комісії для покупця. пропозиція від Ан Проспект.

Продаж котеджу у м. Пустомити 120 м2 від власника 850$/м2
Продаж котеджу у м. Пустомити 120 м2 від власника 850$/м2 Львівська область, Пустомити
105 000 $
875 $ за м²
4-кімн 120 м²

Продаж котеджу у м. Пустомити вул. Пасічна Площа котеджу 120 кв. м Площа ділянки 5 сот Двох поверхова спарка Зручний доїзд і близкість до громадського транспорту, бруківка до котеджу. Будівництво з якісних матеріалів : керамоблоку, перекриття залізобетон, утеплення пінопласт 12 см, вікна з двокамерним склопакетом з енергозберігаючим напиленням, компанії Steko. Вхідні сучасні броньовані двері з мдф накладкою з внутрішньої сторони. До котеджу підведений газ, централізоване водопостачання, світло 5 квт, септик Вільне планування всередині. З трьох сторін біля котеджу буде паркан, збоку будинку є місце для паркування, велике зручне подвір'я. Якщо паркан не робити, ціна буде дешевша, деталі по телефону. Залишилось доробити сходи, бруківку і паркан. Ціна -105000$

Продаж будинку, м. Пустомити
Продаж будинку, м. Пустомити Львівська область, Пустомити
95 000 $
1 118 $ за м²
2-кімн 85 м²

Продаж стильного 2-кімнатного дуплексу з терасою у м. Пустомити, Львівська область! Сучасний формат житла для тих, хто цінує комфорт, простір і приватність. Площа - 85 м² + 30 м² тераса для відпочинку просто неба. Якісний ремонт виконаний на 99% - залишилося лише встановити двері та меблі під свій смак. Індивідуальне опалення, двоконтурний котел, власне подвір'я з місцем для двох авто. Тихий район, поруч уся інфраструктура, до Львова - кілька хвилин їзди. Додаткова інформація за номером телефона. Ідеальний варіант для життя за містом із комфортом міської квартири! Код об'єкта 16082

Продаж будинку з підведеними комунікаціями с. Наварія. Без комісії!
Продаж будинку з підведеними комунікаціями с. Наварія. Без комісії! Львівська область, Наварія
105 000 $
750 $ за м²
4-кімн 140 м²

Пропонується до продажу будинок в Наварії. Площа будинку -140 м. кв, земельна ділянка - 5 сот. 2 поверхи. Комунікації - світло заведене, каналізація -септик, вода - скважина, є можливість газифікації. Правильне планування з максимальним залученням площі. Перший поверх - кухня, вітальня з виходом на задній двір, санвузол. Другий поверх - три спальні, санвузол. Інфраструктура: нова школа поруч, магазини, до Львова машиною (8 км. ), близько до відпочинкових зон (ліс, озеро, ресторани та ін. ) Додатково можемо запропонувати і інші варіанти котеджів та будинків.

Будинок для себе Пустомити
Будинок для себе Пустомити Львівська область, Пустомити
59 900 $
243 $ за м²
5-кімн 246 м²

Продам 5 кімнатний будинок 246 кв. м: Ціна: 2 191 000 грн Ціна $: 59 900$ Кімнат: 5 Загальна площа: 246 кв. м Площа ділянки: 5 соток

Родинний будинок для комфортного життя в м. Пустомити 9 км від Львова
Родинний будинок для комфортного життя в м. Пустомити 9 км від Львова Львівська область, Пустомити
300 000 $
1 000 $ за м²
8-кімн 300 м²

Будинок 300 кв. м.з ділянкою 10 сотих у м. Пустомити (9 км від Львова), у межах пішохідної доступності дві школи, дитячі садочки, будинок культури з гуртками для дітей та дорослих, стадіон, торгові центри, парк, поліклініка, лікарня, ресторани, кафе, відпочинковий комплекс "Озерний край". Усе це важливо для комфортного проживання. Крім чудових асфальтних доріг для доїзду авто, з Пустомит можна добратися до Львова і навпаки електричкою а також численними маршрутними таксі. Доїзд до Львова можливий трьома альтернативними автошляхами - до магістральних вулиць Кульпарківська, Стрийська, Городоцька. На території будинку є велика альтанка, міні озерце з рибками, фруктовий сад, багато хвойних, окрасою є великі голубі ялини, тюльпанове дерево. Вулиці у темну пору освітлюються. Будинок завершений у 2010 році. В цокольному поверсі гараж, технічні приміщення, кладова і дві кімнати вільного використання (спортзал, більярдна тощо). Мансардний поверх вільного планування і не врахований у загальній площі. На першому поверсі прихожа, кухня, кімната-кабінет, вітальня з кімнатою де є камін, санвузол. На другому поверсі дві дитячі кімнати і спальня для батьків з балконом, санвузол, з другого поверху є вихід на криту терасу. Комунікації - центральне водопостачання, каналізація-септик, двохфазне електропостачання, газопостачання, міський телефон та інтернет, опалення від газового котла. Будинок продається з усіма меблями і технікою. Готовий для проживання. Формат оголошення не дає можливості додати більше фото, тож при потребі вишлю чи проведу відеопоказ. Оголошення від власника, комісійна винагорода для ріелтора за домовленістю оплачує ВласниК.

Продаж 2 поверхового будинку з верандою і ділянкою на 5 соток, 71.2 кв. м, 2 кімнати, на СТ Адоніс • ID 33553888
Продаж 2 поверхового будинку з верандою і ділянкою на 5 соток, 71.2 кв. м, 2 кімнати, на СТ Адоніс • ID 33553888 Наварія, СТ Адоніс • ID 33553888
90 000 $
1 268 $ за м²
2-кімн 71 м² 2 п

Продається двоповерховий цегляний будинок у затишному куточку с. Наварія (дачний кооператив), всього 8 км від Львова ідеальний варіант для тих, хто шукає комфорт, простір і тишу. Площа 100 м² + функціональне подвіря: Перший поверх: ️ Простора кухня-вітальня 20 м² з каміном ️ Санвузол, тепла підлога в зонах з плиткою ️ Окремий вхід з пандусом зручно для дітей, старших людей або потреб мобільності Другий поверх: ️ Три світлі кімнати, санвузол, балкон Підвальні приміщення: ️ Один вхід з дому, інший з вулиці Інженерія та оснащення: ️ Нова електропроводка, автономна каналізація ️ Великий навіс для авто, металева огорожа Ділянка з комфортом для відпочинку: ️ Альтанка, мангал, плодові дерева ️ Окреме господарське приміщення Будинок продається з меблями та побутовою технікою заїжджай і живи! Поряд школа, супермаркет, громадський транспорт, чудове сполучення зі Львовом Телефонуйте вже це ідеальний дім для сімї, яка шукає комфорт та затишок біля міста! Код об'єкту - 15463

Продаж будинку, Наварія
Продаж будинку, Наварія Львівська область, Наварія
235 000 $
3-кімн

Продаж. Будинок - три поверхи, с. Наварія вулиця Петлюри, Пустомитівського району, Львівської області. Загальна площа будинку 350 кв. м. Житлова 63 кв. м. Кухня 27 кв. м. Земельна ділянка 0.1617 га. На першому поверсі, гараж - 36 кв. м., технічні приміщення - котельня, кладова; сауна (електрика) з басейном, санвузол, відпочинкова кімната-хол з каміном. На другому поверсі кухня, спальна кімната, зал з каміном, гостьовий санвузол. На третьому поверсі дві веранди, санвузол з ванною, дві спальні, гардеробна, велике технічне приміщення для зберігання яке можна переробити, за необхідності, для іншого призначення. Опалення індивідуальне - газовий двофункційний котел, гаряча вода - газова колонка на воду. Вода - водонапірна вежа і є бак запасу. Каналізація - септик. Електрика день-ніч. На ділянці біля будинку є озерце, фруктові дерева, декоративні рослини, ялинка. Зручний доїзд - асфальтована дорога. До Львова 10 кілометрів. Код 12472.

Продається будинок і з/ ділянка поруч Львова у м. Пустомити-30000$
Продається будинок і з/ ділянка поруч Львова у м. Пустомити-30000$ Львівська область, Пустомити
30 000 $
1 000 $ за м²
2-кімн 30 м²

Продається старий будинок і земельна ділянка 16 сот поруч Львова у м. Пуcтомити ( 9 км від Львова, швидкий та зручний доїзд 15-20 хв, багато різного транспорту, інтервал руху маршруток до Львова 5-10 хв). У будинку, що по часу підлягає демонтажу, є 2 кімнати, кухня та коридор. Світло та газ у будинку з відповідними лічильниками. Вода-є можливість підключення до центрального водопроводу, наразі у користуванні спільно з сусідом є криниця. Велика, рівна ділянка, поділена на цільові призначення : 10 сот -для будівництва і обслуговування житлового будинку, господарських будівель та 6 сот-для ведення особистого селянського господарства. Хороша локація ділянки з усіма необхідними комунікаціями, давно обжитим районом та спокійним і тихим місцем для зведення нового затишного будинку. Даний старий будинок може слугувати для тимчасового перебування під час зведення нового будинку, а також перенесенням відповідних комунікацій. Усе необхідне для комфортного проживання є поруч, до зупинки транспорту до 10 хв пішки. У місті добре розвинута інфраструктура, є школи, садочки, медзаклади, супермаркети та багато різних магазинів.

Продаж будинку 145 м кв Пустомити + 7 сот землі ціна 170 тис
Продаж будинку 145 м кв Пустомити + 7 сот землі ціна 170 тис Львівська область, Пустомити
170 000 $
1 172 $ за м²
5-кімн 145 м²

Продаж будинку в Пустомити, площа 145 м кв, Будівля дуже якісно, Стіни у дві цегли, монооітне перекриття, цегла найвищого гатунку Дах- німецька металочерепиця Вікна металопластик- 7 пофіль Дуже високої якості Розташовпний у м. Пустрмити по вул. Хвильового. Спальний район Поруч 300 метрів від центру Є все Школи Дитсатки Лікарня Зілізниця Маршрутки Ьанки Супермаркети Ринок Все що завгодно. АСФАЛЬТована дорога 8 км до Львова 7 сотих під будівництво Будинок 2 прверхи 145 м. кв Тераса 20 м. кв Паркомісце навіс на 2 авто 40 м. кв Газ Світло три фази 15 кв Центральна вода Центральна каналізація ЦІНА 170 000 доларів телефон 06********50

Продаж будинок Пустомити за супер ціною-236 доларів за метр
Продаж будинок Пустомити за супер ціною-236 доларів за метр Львівська область, Пустомити
78 000 $
236 $ за м²
10-кімн 330 м²

Продаж будинок у м. Пустомити, площею 330 метрів-ціна 78000 доларів, цоколь, два поверхи і горище. Між поверхами бетонне перекриття, тому цокольне приміщення можна використовувати як укриття, будова з якісної червоної цегли, будувався для себе, вистояний і сухий в середині, в цоколі є гараж з ямою, заведені газ і світло три фази, розташований на рівній ділянці площею 8 соток- 20 на 40,добрий доїзд. Поруч квартал малоповерхової забудови -ЖК Комфортне місто. Також пасує під комерційні цілі-як клініка ( вет, чи стоматологія), центр реабілітації, приватну школу чи дит. садочок. абож інше.

Продаж котеджу, м. Пустомити
Продаж котеджу, м. Пустомити Львівська область, Пустомити
240 000 $
1 463 $ за м²
3-кімн 164 м²

Продається сучасний котедж із дизайнерським ремонтом у місті Пустомити, Львівська область, неподалік Львова. Загальна площа 164м. кВ, з яких 55 м² - житлова площа, а кухня-вітальня займає простору зону в 38м². Ремонт виконаний у 2024 році, з використанням найсучасніших дизайнерських рішень. Будинок побудований з цегли, розташований на ділянці 6 соток. Система опалення газова, з встановленим котлом Vaillant, а на першому і другому поверхах змонтовані теплі підлоги з окремими терморегуляторами для кожної кімнати. У будинку передбачено сучасну систему електропостачання: встановлено індукційну варильну плиту та гібридний сонячний інвертор Deye на 8 кВт. Акумуляторна система Pylontech US5000 на 5 кВт забезпечує безперебійну роботу до 6 годин під час відключення електроенергії, після чого заряджається протягом 2 годин. Є можливість встановлення сонячних панелей, що зробить будинок повністю енергонезалежним. Для додаткового комфорту в будинку є подвійний септик з переливом, окремий колодязь для лівньовки, автоматична система поливу, а також центральне водопостачання. Інфраструктура району добре розвинена: до школи та стадіону - всього 200 метрів, до центру Пустомит - 1,5 км, а до Львова - 12 км. Цей котедж ідеально підходить для тих, хто шукає сучасний будинок з усіма зручностями та дизайнерським інтер'єром у затишному передмісті Львова. Код об'єкта 14234

Відкрити карту Карта