Продається Таунхаус в Котеджному містечку Family Plaza
Продається Таунхаус в Котеджному містечку Family Plaza Івано-Франківська область, Крихівці
145 000 $
1 098 $ за м²
3-кімн 132 м²

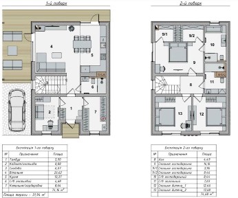
Продається сучасний таунхаус у комплексі Family Town (Крихівці). Будинок зведений з якісних матеріалів і має продумане планування, що забезпечує комфортне проживання для сім'ї. На першому поверсі розташовані передпокій із місцем під шафи для зберігання речей, вихід у гараж, простора кухня-студія з виходом на терасу, гостьовий санвузол та інвентарна кімната. На другому поверсі - три комфортні спальні, кожна з виходом на відкритий балкон, а також простора ванна кімната з можливістю встановлення ванни та душової кабіни. Територія та додаткові переваги: - Закрита та доглянута територія комплексу - Ландшафтне озеленення - Гараж і власне паркомісце - Задній двір для відпочинку - Балкони та тераса з кожної кімнати - Усі міські комунікації: газ, вода, каналізація, електрика - Встановлені лічильники - Проведена електророзводка, встановлений котел, підключений газ - Встановлений якісний електрощиток - Готовий дизайн-проєкт для внутрішнього ремонту Стан та комплектація: Ремонт у будинку не виконаний, що дозволяє власникам реалізувати інтер'єр під власний стиль. Водночас вже розроблений готовий дизайнерський проєкт, який включає повне планування оздоблення, підбір матеріалів та стильові рішення. Матеріали та будівництво: - Стрічковий фундамент з арматурним каркасом (бетон М-300), глибина - 1 м - Коломийська цегла з антисейсмічною сіткою - Металочерепиця ThyssenKrupp (Німеччина) з гарантією 25 років - Преміум-вікна Rehau Synego (Німеччина) : 7-камерний профіль, 2-камерний - енергоефективний склопакет - Фасад з клінкерної плитки Paradyz (Польща) - Гаражні ворота Hörmann (Німеччина) - Утеплення стін - 12 см - Бетонні сходи на другий поверх - Покращена внутрішня штукатурка під маяки Таунхаус розташований у тихому, зеленому та екологічному районі міста - ідеальний вибір для сімей, які цінують комфорт, природу та безпеку.

Продаж будинку готвого до проживання в селі Угорники
Продаж будинку готвого до проживання в селі Угорники Івано-Франківська область, Угорники
150 000 $
387 $ за м²
7-кімн 388 м²

Продається житловий будинок, який можна розділити на два окремих входи в передмісті Івано-Франківська в селі Угорники. Затишна локація. Зручний під'їзд. Індивідуальне опалення, газовий та твердопаливний котли (5 видів твердого палива). Бойлер на 150 л. Дві кухні, два санвузла і дві ванні кімнати. На першому поверсі розміщено: кухня, санвузол обладнаний сушкою, пральною машиною та душовою, кімната та великий гараж. Другий поверх: кухня, гостинна з каміном, санвузол, кімната, великий хол та окремий вхід з вулиці. Третій поверх: хол та 4 окремі кімнати. Заведено 10 кВт світла. Шість кондиціонерів. Підлога - дубовий паркет. Вікна - металопластикові. Дах - оцинкована бляха, утеплений піною. Будинок цегляний, цегла півторачка, ззовні утеплений. Дубові сходи - великий гараж з заходом в будинок. Всі меблі та техніка залишаються. Кований паркан. Прибудинкова територія - бруківка. Облагороджена територія (ростуть туї, коніки, ялина). Вольєр для собаки. На вулиці криниця та альтанка із зоною барбекю, сходи на дворі з крошки. Поруч річка Бистриця. Зупинки громадського транспорту. Асфальтована дорога. Відео будинку: youtu.be/dKorPGROifM

Унікальний напівособняк поблизу центру міста
Унікальний напівособняк поблизу центру міста Івано-Франківська область, Івано-Франківськ
290 000 $
1 667 $ за м²
3-кімн 174 м²

Комфорт, якість, зручність і неповторність, саме такі відчуття викликає цей об'єкт креативу та затишку. Зручне розташування та максимальний комфорт гарантує високу якість проживання з акцентом на відпочинку та щоденних гастрономічних пригодах завдяки професійній гастрозоні. Висилаю відеоогляд будинку.

Продаю готовий таунхаус у Вочинцях!
Продаю готовий таунхаус у Вочинцях! Івано-Франківська область, Вовчинець
107 000 $
618 $ за м²
4-кімн 173 м²

Продаю готовий таунхаус у Вочинцях! Сучасний таунхаус у Вовчинцях - комфорт, якість, вигідна ціна! Пропонуємо вам ідеальний варіант для життя Bодному 3 найкращих районів Івано-Франківська с. Вовчинець, вул. Патріарха Володимира. Загальна площа: 173 м. Площа ділянки: 1.84 сотих Кількість поверхів: 2 Міськікомунікації: - електроенергія, - каналізація - вода, - газ, Особливості таунхаусу: Великий гараж - ваш автомобіль завжди в безпеці Простора тераса + окремий балкон для відпочинку Сучасне планування: три спальні, велика кухня-вітальня, два санвузли, гардеробна Високоякісне будівництво та сучасні матеріали Ціна - унікальна пропозиція! Лише 107 000$ за цей просторий таунхаус у престижному місці! Телефонуйте вже домовитися про перегляд!

Будинок з землею 23 сот. Березівка (Центр)
Будинок з землею 23 сот. Березівка (Центр) Івано-Франківська область, Березівка
35 000 $
700 $ за м²
2-кімн 50 м²

Пропоную будинок площею 50 м. кв. з землею 23 сот (під будівництво) + 1 сота с/г. Розташований в центрі Березівки. Транспортне сполучення ідеальне. Дуже часто їздить громадський транспорт. Якщо власним авто, то до 15 хвилин ви вже поруч Велмарту на вул. Коновальця. Ділянка виходить до траси Івано-Франківськ- Надвірна, гарної прямокутної форми. Будинок з дуба + цегла. Придатний для проживання. Все що є на фото, залишається. Продаж без комісії Можливий обмін на квартиру.

ЕКСКЛЮЗИВ! 1поверховий БУДИНОК МРІЇ в Чукалівці (Івано-Франківськ)
ЕКСКЛЮЗИВ! 1поверховий БУДИНОК МРІЇ в Чукалівці (Івано-Франківськ) Івано-Франківська область, Чукалівка
110 000 $
1 000 $ за м²
4-кімн 110 м²

Основні фішки, від яких зносить дах: Топова Площа: Загальна площа - 110 м². Достатньо місця для кайфу і не так багато, щоб здуріти від прибирання! Золота середина, я вам кажу! Кухня-Студія - 27 м²: Оце так шик! Тут можна і кулінарні шедеври творити, і гостей приймати, і на дивані валятися, не відриваючись від серіалу. Світло, просторо, затишно! (На плані видно, що це просто королівські покої! ). Три Окремі Спальні: Нарешті, у кожного свій куток! Ніяких сварок за територію. Ідеально для сім'ї з дітьми або під кабінет-гардероб-спальню для тещі (як вам завгодно! ). Два Санвузли: Це ж просто манна небесна! Забудете про ранкові черги і стукіт у двері. Комфорт найвищого ґатунку! Гардеробна Кімната: Більше ніякого хаосу! Всі ваші речі, косметика і заначки будуть мати своє місце. Це вже не дім, це організований рай! Тепло і Надійно: Будинок утеплений пінопластом. Це значить: взимку - тепло, як у матері за пазухою, а влітку - прохолода і свіжість. Економія на комуналці гарантована! Всі Комунікації Заведен. Все є, підключено і працює, як годинник! Чому варто поквапитись? Це рідкісний птах на ринку Івано-Франківська! Одноповерховий, гарний, сучасний (дивіться рендери, він просто бомба-ракета! ) і в кращому районі. Це варіант, який не залежиться! Не тягніть кота за хвіст! Телефонуйте негайно і приїжджайте дивитися. Хто перший, того й тапки (тобто, ключі від будинку! ). *Доречі колірну схему фасаду модна вибрати. * Телефонуйте/пишіть зараз на месенджери, щоб забронювати перегляд!

Будинок в Угорниках
Будинок в Угорниках Івано-Франківська область, Угорники
115 000 $
479 $ за м²
4-кімн 240 м²

Продаж будинку в Угорниках. м.Івано-Франківськ. В будинку заведено 3 фази світла. Є виводи на сауну, гараж в якому поміщається 2 машини Комунікації всі міські. Будинок площею 240м2 Цоколь- сауна, душова, гараж з технічним приміщенням, та кімната для відпочинку. Перший і другий поверх налічує 4 кімнати, кухню та 2 санвузли. Господарська спальня з великим балконом. Також є горище. Загалом 3 поверхи В господарській спальні потрібен ремонт, перед продажем власники винесли всі старі меблі, оновили ремонт в санвузлах та кухні. Земельна ділянка 6 сот

Будинок в самому цетрі Івано-Франківська
Будинок в самому цетрі Івано-Франківська Івано-Франківська область, Івано-Франківськ
360 000 $
1 572 $ за м²
4-кімн 229 м²

Продаж двоповерхового будинку в самому центрі Івано-Франківська Пропонується до продажу просторий та стильний будинок площею 229 м², розташований у центральній частині міста. Це ідеальний варіант для тих, хто шукає комфорт, приватність та якісне житло в одному з найбільш престижних районів Івано-Франківська. Будинок розміщений на доглянутій ділянці площею 2 сотки, що забезпечує баланс між компактністю та функціональністю. У будинку виконано сучасний ремонт із високоякісних матеріалів, завдяки чому житло не потребує жодних додаткових вкладень. Просторі кімнати, продумане планування та велика кількість світла створюють атмосферу затишку та справжнього сімейного комфорту. Основні характеристики та переваги будинку: 2 поверхи -власний гараж, зручний для авто та місця зберігання -простора кухня-вітальня - ідеальний простір для великих сімейних вечорів та прийому гостей -діючий камін, що додає інтер'єру тепла та особливого настрою -власна сауна - чудове місце для відпочинку та релаксу -інвентарна кімната / кладова, де зручно розмістити всі необхідні речі -2 великих санвузли, оформлені у сучасному стилі -індивідуальне газове опалення - економічне та ефективне -встановлений підігрів підлоги для максимального комфорту в холодну пору -продумане планування, багато природного освітлення -акуратний внутрішній двір із можливістю облаштування зони відпочинку -будинок повністю готовий до заселення Будинок чудово підходить як для сімейного проживання, так і для поєднання житла з власним кабінетом чи невеликим домашнім офісом. Саме розташування - одна з ключових переваг: центр міста, поруч магазини, ресторани, школи, садочки, зупинки громадського транспорту та всі необхідні об'єкти міської інфраструктури. Це рідкісна можливість придбати комплексний, якісний та повністю готовий до життя будинок у серці Івано-Франківська.

Продається новобудова у Крихівцях!
Продається новобудова у Крихівцях! Івано-Франківська область, Крихівці
105 000 $
568 $ за м²
5-кімн 185 м²

Затишний будинок у чудовій локації, ідеальний для сімейного життя. Основні характеристики: Площа: 180 м² Поверховість: 1,5 Кімнат: 5 Стан: сирець - можливість зробити ремонт під себе Гараж у будинку Земельна ділянка: 5 сотих Обжита, тиха та дружня вулиця Асфальтований під'їзд Лише 10 хв до зупинки громадського транспорту Міські комунікації Ідеальний варіант для тих, хто хоче жити в місті, але в приватному будинку з комфортними умовами. Код- #36699409

Продаж Таунхаус 145м². Ділянка 2сот. Готовий до ремонту. Комунікації
Продаж Таунхаус 145м². Ділянка 2сот. Готовий до ремонту. Комунікації Івано-Франківська область, Угорники
88 700 $
612 $ за м²
3-кімн 145 м²

Терміновий продаж! Продається таунхаус площею 145м², повністю готовий до ремонтних робіт. Угорники, містечко Затишне, поруч зупинка міського транспорту. Планування: 1 поверх: -прихожа, гаардеробна; -гараж; -санвузол гостьовий; -кухня-вітальня; -Гостьова кімната; -коридор. 2 поверх: -спальня (балкон) -спальня (гардероб) -спальня+кабінет+гардероб (з балконом); -санвузол. Таунхаус знаходиться на земельній ділянці площею 2сот. Є всі міські комунікації. Знаходиться в дуже зручному і затишному місці, 10 хв до центру міста автомобілем, також поруч знаходиться зупинка міського транспорту. Також є відеоогляд, за потреби відправлю. За додатковою інформацією телефонуйте, буду рада вам допомогти)

Будинок за доспупні кошти
Будинок за доспупні кошти Івано-Франківська область, Крихівці
75 000 $
652 $ за м²
4-кімн 115 м²

Продаж таунхауса Пропонується сучасний таунхаус площею 115 м² із власною ділянкою 1,5 сотки у затишному місці неподалік Калинової Слободи. Всього за кілька хвилин - річка, міське озеро та парк. Переваги: • Розташування в приватному секторі на тихій вулиці • Закрита територія з відеоспостереженням • Сучасний дизайн фасаду • Панорамні вікна • Всі міські комунікації: газ, електрика 10 кВт (три фази), централізоване водопостачання та каналізація Що входить у вартість: - Штукатурка стін під маяки - Броньовані вхідні двері - П'ятикамерні металопластикові вікна - Дах із металочерепиці - Перекриття між поверхами - Дерев'яне перекриття між другим поверхом і дахом - Утеплення фасаду пінопластом - Благоустрій території (бруківка) - Відкатні ворота - Паркан між сусідами - Озеленення території туями Деталі: • Здача: кінець 2025 року • Можливе розтермінування • Прямий продаж від забудовника - без комісій та додаткових витрат Деталі та огляд - за телефоном.

Продаю затишний двоповерховий будинок - околиця Івано-Франківська
Продаю затишний двоповерховий будинок - околиця Івано-Франківська Івано-Франківська область, Черніїв
85 000 $
599 $ за м²
5-кімн 142 м²

Площа будинку - 142 м² | Ділянка - 18,5 соток Якщо ви мрієте про власний будинок з дерева, де пахне затишком і спокоєм - це саме він! Будинок повністю збудований із якісного зруба - природні матеріали створюють ідеальний мікроклімат у будь-яку пору року. Встановлені сучасні металопластикові вікна, що доповнюють загальну естетику дому. Переваги: 2 повноцінні поверхи Велика земельна ділянка 18,5 соток - є місце для саду, зони відпочинку, басейну чи ще одного будівництва Затишне розташування на околиці Івано-Франківська - свіже повітря, тиша та водночас зручний доїзд до міста Дуже красивий та доглянутий будинок - чудовий варіант як для проживання, так і під заміський маєток Цей будинок варто побачити на власні очі! Телефонуйте, щоб домовитись про перегляд.

Ексклюзивні ЗДАНІ будинки
Ексклюзивні ЗДАНІ будинки Івано-Франківська область, Чукалівка
145 000 $
967 $ за м²
4-кімн 150 м²

Сучасні будинки у клубному містечку Qvartet Завершене будівництво! Виготовляються документи на право власності. Ми відкриті до продажу під державні програми Це не просто житло - це простір для життя у гармонії з комфортом і природою. Кожен із 4 будинків має окрему ділянку 3-4 сотих, а ще 3 сотих виділено під спільну зону - для дитячих ігор, барбекю чи вечірніх посиденьок із сусідами. Основні переваги: - Продумане планування і три санвузли - Цегляне будівництво + утеплення 10 см - Підключені всі міські комунікації (вода, каналізація, світло, газ) - Додаткова свердловина з насосом у кожному будинку - Розведення електрики, води, каналізації - Стіни поштукатурені, чистова стяжка підлоги - Опалення від двоконтурного котла Baxi - Закрита територія з автоматичними воротами та відеоспостереженням - Територія впорядковується, облаштовується благоустрій Умови продажу: - При 100% оплаті - можливий торг - Можливе розтермінування за фіксованою ціною Деталі за телефоном

Продається будинок в Івано- франківську з рмонтом
Продається будинок в Івано- франківську з рмонтом Івано-Франківська область, Івано-Франківськ
140 000 $
1 556 $ за м²
3-кімн 90 м²

Продам будинок в місті (вул. Гната-Хоткевича) | Півособняк з ділянкою Одноповерховий півособняк з окремим входом та власною загородженою територією. Загальна площа ділянки - 4,2 сотих по документах (по факту більше) Будинок розташований у затишному місці - тупикова бічна вулиця, приватний сектор. На подвір'ї: Гараж Теплиця Вольєр для собаки Комора Квітник та сад із сортовими фруктами (яблуні, виноград, кизил, ківі, персики, вишні, груші, шовковиця) Власна свердловина з якісною водою, заведена в будинок У будинку: Кухня-студія 11+10 м² 3 кімнати Санвузол суміжний Комора Підвал Переваги та особливості: Унікальна сучасна дров'яна піч із рідкісного кахелю (робоча) Дві робочі зони на кухні: газова й електрична Вбудована духова шафа (незалежне регулювання верхньої/нижньої камер) Вбудовані пароварка та мікрохвильова піч Кухонні меблі з індивідуальним дизайном Підготовлений до автономного опалення та готування під час вимкнень електроенергії Ідеальний варіант для тих, хто шукає комфорт, затишок і незалежність у межах міста. Телефонуйте для перегляду.

Той самий спокій, якого всі шукають у Карпатах
Той самий спокій, якого всі шукають у Карпатах Івано-Франківська область, Івано-Франківськ
199 000 $
2 095 $ за м²
3-кімн 95 м²

Преміальна частина будинка в самому серці Яремче вул. Руднєва, 2 • 150 м до головної дороги • асфальтований заїзд Подача рівня “зайшов - побачив - захотів”. Тут зібрано те, чого так не вистачає на ринку Яремче Сучасний каркас, якісні матеріали “для себе”, тиха вулиця в центрі, панорамні вікна, три рівні продуманого простору - ідеальний баланс для життя, релаксу або інвестиції в подобову оренду. ⸻ Основне про будинок • Орієнтовна площа - 95 м², 3 поверхи • 2 сотки землі у приватному користуванні • Гараж на 2 авто (входить у вартість) - велика рідкість для центру Яремче • Повноцінний підвал по всій площі будинку (висота 1.10) - під комору / технічне приміщення / зберігання • Стіни - газоблок + утеплення 5 см мінвати • Покрівля - гідробар'єр + паробар'єр + мінвата 10-15 см у два шари • Панорамні 3-камерні вікна з великою кількістю світла • Балкони з двох сторін будинку • Світлі приміщення, правильне планування без втрати площі • Асфальтований під'їзд - заїзд без проблем у будь-яку погоду ⸻ Локація, яку вибирають роками Центральна частина Яремче. 150 метрів - і ви на головній дорозі, з усією інфраструктурою: магазини, кафе, річка, пішохідні маршрути, місця відпочинку. Тиха вулиця, мінімальний рух авто, але при цьому - реально центр. ⸻ Для кого цей об'єкт • Для сімей, які хочуть житло в Яремче без будівництва “з нуля” • Для тих, хто шукає повноцінний будинок у центрі, а не по горах • Для інвесторів - ідеальний варіант під подобову оренду (3 рівні = супер планування під апартаменти) • Для тих, хто цінує якісні матеріали та сучасний підхід до будівництва Давай покажу цей варіант наживо - ту.е. ергія будинку відчувається одразу. Пиши чи дзвони - підберу час для перегляду і дам повний супровід. Анастасія | Ваш рієлтор у Яремче та Прикарпатті 07*********47 06*********04

Продається будинок в Івано -Франківчьку 118 м 2
Продається будинок в Івано -Франківчьку 118 м 2 Івано-Франківська область, Івано-Франківськ
205 000 $
1 737 $ за м²
3-кімн 118 м²

Продається будинк в Івано-Франківську. Площа будинку 118м2. Розташування: перша лінія на березі річки Бистриця Надвірнянська (ресторан Легенда. ) Фундамент бетонний з монолітною плитою, залита поверху утеплена стяжка! Сам будинок побудований по каркасній технології! Утеплення зовнішні стіни 200 ми, стеля 300 мм, утеплення мінеральна вата Фасад зроблено з фальцевого металу з комбінацією деревяного планкену Комунікації: централізоване водопостачання, власний септик. Особливості будинку та території: Технічне приміщення, дровітня, просторий вольєр для улюбленця. Забрукована зона для паркування, автоматичні електричні відкатні ворота. Затишна тераса 23 м² із зоною барбекю для незабутніх вечорів. Літня кухня та вуличний душ комфорт у будь-яку пору року! Озеленена територія: Плодові дерева та кущі, грядки для садівництва. Система автоматичного поливу. Будинок знаходиться в мальовничому місці з краєвидом на річку. Ідеальний вибір для тих, хто цінує комфорт, природу та якісне життя. Продається з меблями та технікою заселяйтесь одразу! Телефонуйте зараз, щоб домовитися про перегляд! 05******83, можливий торг Опалення дерев'яний камін і електроконвектора.

Продаж 5-кімнатного будинку у Крихівцях, ділянка 10 сотих.
Продаж 5-кімнатного будинку у Крихівцях, ділянка 10 сотих. Івано-Франківська область, Крихівці
175 000 $
1 094 $ за м²
5-кімн 160 м²

Продаж будинку в Крихівцях, 5 кімнат, без ремонту Просторий будинок на п'ять кімнат, розташований у тихій та заселеній частині Крихівців. Будинок без ремонту - чудова можливість облаштувати простір повністю під свої побажання та стиль. Продумане планування, світлі приміщення та хороший потенціал для майбутнього дизайну. Ділянка охайна, під'їзд зручний, поруч - житлова забудова та необхідна інфраструктура. Звертайтеся обов'язково надам всі деталі

Продаж 2 поверхового таунхауса з ділянкою на 1.5 сотки, 120 кв. м, 3 кімнати, на вул. Бузкова • ID 33702761
Продаж 2 поверхового таунхауса з ділянкою на 1.5 сотки, 120 кв. м, 3 кімнати, на вул. Бузкова • ID 33702761 Бузкова вулиця, Крихівці (Івано-Франківськ), вул. Бузкова • ID 33702761
85 000 $
708 $ за м²
3-кімн 120 м² 2 п

Продається таунхаус ЗДАНИЙ з гаражем в с. Крихівці. Характеристики: - Площа будинку 120 м2. - Земельна ділянка 1, 5сот. - Паркування - власний гараж - Закрита територія, бруківка. - Тип стін цегла. - Утеплення фасаду пінопласт 100мм. - Енергозберігаючі панорамні вікна, протизламна фурнітура. - Вхідні броньовані двері. Інтер'єр: - Штукатурка стін. - Чорнова стяжка підлоги. - Сходи армований бетон. - 3 кімнати + гараж. - Ванна кімната. - Окремий санвузол. - Утеплений дах. Комунікації - Всі комунікації міські (ГАЗ, світло, міська каналізація та міське водопостачання)

Розкішний будинок в Підлужжі!
Розкішний будинок в Підлужжі! Івано-Франківська область, Підлужжя
250 000 $
1 250 $ за м²
3-кімн 200 м²

Продам будинок у Підлужжі - повністю готовий для комфортного проживання! Просторий будинок площею 200 м² розташований на доглянутій ділянці 11 соток. Планування: 2 поверхи На другому поверсі - 3 окремі кімнати На першому - велика вітальня, простора кухня Два гаражі Будинок повністю умебльований та оснащений побутовою технікою - заїжджай і живи! Чудовий варіант для сім'ї, яка цінує простір, затишок та зручну локацію. Телефонуйте для перегляду!

Продаж півособняка по вул. Обʼїздова
Продаж півособняка по вул. Обʼїздова Івано-Франківська область, Івано-Франківськ
40 000 $
1 250 $ за м²
1-кімн 32 м²

Продається невеличкий деревʼяний будинок заг. пл. 32.2 м. кв. житловий стан будинку із земельною ділянкою 4,3 сотих. Підведенні комунікації : світло, газ та вода. Ширина ділянки : 14,78 м Довжина : 18.79 м. Ділянка квадратної форми і призначена для будівництва. Більше інформації по телефону або при зустрічі.

Відкрити карту Карта