Продаж 2 поверхового таунхауса з ділянкою на 1.65 сотки, 131.7 кв. м, 5 кімнат, на вул. Павла Глазового 31 • ID 33000380
Продаж 2 поверхового таунхауса з ділянкою на 1.65 сотки, 131.7 кв. м, 5 кімнат, на вул. Павла Глазового 31 • ID 33000380 вулиця Павла Глазового, Ірпінь, вул. Павла Глазового 31 • ID 33000380
115 000 $
878 $ за м²
5-кімн 131 м² 2 п

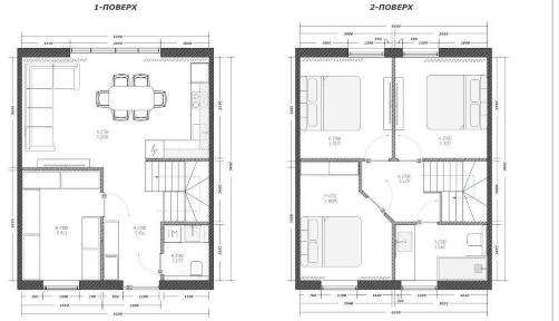
Продаж сучасного таунхаусу у мальовничому котеджному містечку Стоянка-2 комфорт і природа в одному місці! Характеристики об'єкта: Розташування: Бучанський район, закрите котеджне містечко "Стоянка-2" Загальна площа: 133 м Житлова площа: 55 м Площа кухні: 20 м Площа ділянки: 1, 65 сотки Стан: чорновий (black box), можливий продаж з ремонтом під ключ Поверховість: 3 поверхи Просторий таунхаус у тихому районі, виконаний з високоякісних матеріалів: стіни з цегляного керамоблоку товщиною 380 мм, утеплені мінеральною ватою та облицьовані клінкерною плиткою. Дах з металочерепиці з утепленням. Основні переваги: - Замкнута територія: безпечна та облаштована вулиця, оточена природою. - Власні паркувальні місця: 2 паркувальних місця перед будинком. - Тераса та задній двір: простір для відпочинку та можливість створити свій сад. - Гнучке планування: 1-й поверх кухня з вітальнею та вихід на терасу; 2-й поверх дві просторі спальні; 3-й мансардний поверх з вільним плануванням. Інфраструктура: Територія містечка активно розвивається, неподалік знаходяться всі необхідні зручності. Жвава атмосфера, зручний доступ до основних комунікацій: електрика 10 кВт, вода зі свердловини, септик на 6 кубів. Не упустіть шанс стати власником цього прекрасного таунхаусу вже сьогодні! Для отримання додаткової інформації або організації перегляду зв'яжіться з нами. Ваш новий дім чекає на вас!

Продаж 2 поверхового таунхауса з ділянкою на 1.24 сотки, 93.2 кв. м, 2 кімнати, на вул. Северинівська 122Д/2 • ID 33199307
Продаж 2 поверхового таунхауса з ділянкою на 1.24 сотки, 93.2 кв. м, 2 кімнати, на вул. Северинівська 122Д/2 • ID 33199307 Северинівська вулиця, Ірпінь, вул. Северинівська 122Д/2 • ID 33199307
90 000 $
968 $ за м²
2-кімн 93 м² 2 п

Можна в іпотеку, постанови, сертифікат. Продаж таунхауса площею 95м2 в комплексі Family town Ірпінь вул Северинівська 122. Наповнення: чистова гіпсова штукатурка стін, котел. Зданий в експлуатацію з усіма центральними комунікаціями (газ, електроенергія, вода, каналізація). Електроенергія - 6, 5кВт, прямі договори, нормальний тариф (день і ніч). Побудований із керамоблоку (Кератерм), утеплений мінеральною ватою. Вільне планування Землі 1, 24сотки. Перегляд в зручний для Вас час.

Продаж 2 поверхового таунхауса 102 кв. м, 4 кімнати, на вул. Богдана Хмельницького 26 • ID 32315346
Продаж 2 поверхового таунхауса 102 кв. м, 4 кімнати, на вул. Богдана Хмельницького 26 • ID 32315346 Богдана Хмельницького вулиця, Ірпінь, вул. Богдана Хмельницького 26 • ID 32315346
70 000 $
686 $ за м²
4-кімн 102 м² 2 п

Найкраща реальна пропозиція по такій ціні лише 1 варіант. Якісні таунхауси від надійного забудовника. Величезна ділянка, та гарне планування Телефонуйте буду радий показати Вам дану пропозицію!

Продаж 2 поверхового таунхауса з ділянкою на 1.5 сотки, 108.5 кв. м, 4 кімнати, на вул. Тиха • ID 32600714
Продаж 2 поверхового таунхауса з ділянкою на 1.5 сотки, 108.5 кв. м, 4 кімнати, на вул. Тиха • ID 32600714 вул. Тиха, Ірпінь, вул. Тиха • ID 32600714
148 000 $
1 370 $ за м²
4-кімн 108 м² 2 п

Продаж стильного таунхауса в м. Ірпінь! Будинок з якісним ремонтом, каміном та готовою кухнею з вмонтованою технікою. Планування: 1-й поверх: кабінет або спальня, санвузол із душовою, кухня-вітальня з каміном. 2-й поверх: 2 спальні, велика спальня з гардеробом, санвузол із ванною. Зовнішні переваги: Парковка на 2 авто. Просторий задній дворик для відпочинку. Будівельні характеристики: Матеріал керамоблок, утеплений базальтовою ватою. Фасад із пофарбуванням та облицювальною плиткою. Індивідуальне газове опалення: тепла підлога на 1 поверсі, радіатори на 2 поверсі. Чудова локація зручність, комфорт і стиль в одному будинку! Телефонуйте для перегляду XXXXXXXXXX

Продам таунхаус в центрі Ірпеня. Центральна 37
Продам таунхаус в центрі Ірпеня. Центральна 37 Київська область, Ірпінь
95 000 $
704 $ за м²
5-кімн 135 м²

Продам Таунхаус в Центрі Ірпеня. Вул. Центральна 37. 135м2, два повноцінних поверхи и третій мансардний, перший поверх: передпокій, гостьова кімната, або кабінет, санвузол і велика кухня вітальня з панорамним вікном і виходом на зону тераси, площа тераси дозволяє облаштувати зону BBQ та відпочинку. Другий поверх: Три спальні, санвузол. Третій поверх: приміщення світле ( два мансардних вікна) має вільне планування, є технічна можливість облаштування санвузла. Будинок збудовано з енергоефективного керамічного блоку, зовнішнє утеплення і штукатурка, перекриття залізобетонні, газ, електрика 10 кіловат, міська каналізація і водопостачання. Розташування: центр міста, поруч центральна площа, супермаркети і торгові центри, транспорт. Ціна: 95000$

Газифікований таунхаус у лісовому Ірпені.
Газифікований таунхаус у лісовому Ірпені. Київська область, Ірпінь
75 000 $
728 $ за м²
4-кімн 103 м²

Таунхауси у Ірпені Практичні таунхауси з газом та хорошими ділянками - зручний формат для сімейного життя. Площа - 103 м² Ділянки - від 1,2 до 2,8 сотки Ціна - від 75 000 $ (залежить від площі ділянки) Матеріали будівництва: • Стіни - газоблок • Утеплення стін - базальтова вата 50 мм (щільність 135) • Дах - металочерепиця • Утеплення даху - базальтова вата 100 мм Комунікації: • Септик 6 м³ з переливом • Газ • Електрика - 2 фази по 5 кВт • Свердловина 30 м (2-й горизонт) - на 2 тауни (з окремими насосами) • У крайніх таунхаусах - центральне водопостачання • Є можливість підключення центральної води (труба заведена в будинок) Переваги: • Крайні таунхауси можна відділити та зробити закритий передній двір • Хороші ділянки - до 2,8 сотки • Газ уже передбачений • Оптимальна площа для сім'ї Телефонуйте - організую перегляд та знайду для вас найкращий варіант для покупки житла.

Таунхаус на 10 лінії з СУПЕР ціною!
Таунхаус на 10 лінії з СУПЕР ціною! Київська область, Ірпінь
75 000 $
728 $ за м²
4-кімн 103 м²

Таунхаус 103 м² в Ірпені | 10 лінія | 75 000$ Продаж сучасного таунхауса в Ірпені. Зручна локація, тиха вулиця, поруч вся Площа - 103 м² Ділянка - від 1,2 до 2,8 соток Будівництво • Стіни - газоблок • Утеплення - базальтова вата 50 мм (щільність 135) • Дах - металочерепиця • Утеплення даху - базальтова вата 100 мм Комунікації: Газ Електрика - 2 фази по 5 кВт Септик - 6 м³ з переливом Водопостачання: Свердловина 30 м (на 2 таунхауси, окремі насоси) Є можливість підключення центральної води (вже заведена) Крайні таунхауси - в наявності Можна зробити закритий передній двір Простора ділянка для зони відпочинку Телефонуйте або пишіть - відповім на всі питання та домовимось про перегляд

Одноповерховий якісний будинок 185 м2 з ремонтом в Ірпені. 3 кімнати + 2 гардеробні ! Ділянка 11 соток. Газ!
Одноповерховий якісний будинок 185 м2 з ремонтом в Ірпені. 3 кімнати + 2 гардеробні ! Ділянка 11 соток. Газ! Київська область, Ірпінь
350 000 $
1 892 $ за м²
3-кімн 185 м²

Одноповерховий будинок в англійському стилі в Ірпені. Площа будинку - 185 м² Ділянка - 11 соток Будівництво: • газоблок + утеплення мінеральною ватою • облицювання - клінкерна цегла Ruukki • фундамент - бетон Ковальська • дах - металочерепиця Комунікації: • газ • електрика - 16 кВт • свердловина - 46 м • автономна каналізація (септик з переливом) Опалення: • індивідуальне газове (конденсаційний котел E.C.A.) • водяна тепла підлога + радіатори з терморегуляторами • камін Pow-wow Вікна - Veka Кондиціонери Ремонт: Використані натуральні матеріали - дуб, ясен (двері, меблі, кухня, плінтуси) Планування: • коридор • гардеробна з виходом на горище • 2 спальні • 2 гардеробні • кабінет / додаткова спальня • 2 санвузли (ванна + душова) • кухня-вітальня 50 м² з другим світлом і каміном • пральня • кімната відпочинку з виходом на терасу Кухня: • масив ясеня • холодильник LG • варильна поверхня, духова шафа, мікрохвильова - Whirlpool • витяжка - Vento Lux Меблі та техніка залишаються. Додатково: • гараж на 2 авто + зарядка для електромобіля • автоматичні ворота • приміщення під генератор • система очистки води • охорона Ajax Територія: • тротуарна плитка • ландшафтний дизайн не завершений • забудована вулиця, хороші сусіди

Продам 2 поверховий Таун з Ділянокю 1,75 сот. 95 кв. м 4 кімнати.
Продам 2 поверховий Таун з Ділянокю 1,75 сот. 95 кв. м 4 кімнати. Київська область, Ірпінь
98 000 $
1 065 $ за м²
4-кімн 92 м²

Стильний таунхаус у самому серці Ірпеня ідеальне місце для життя чи інвестиції! Жити в центрі, але в тиші це можливо! Усього 5 хвилин до вокзалу, парку письменників, магазинів та школи. Зелений район з гарними сусідами й зручним доїздом до Києва. Площа: 92 мг Поверхів: 2 + можливість облаштування мансарди Планування: кухня-вітальня, 4 спальні, 2 санвузли Ділянка: власна, із паркомісцем Комунікації: вода, електрика, каналізація, газ усе підключено Стан: після будівельних робіт ідеально для ремонту під себе Переваги локації: Центральна частина Ірпеня, все поруч парк, школа, транспорт, супермаркети. Район зелений і спокійний, ідеальний для родини або здачі в оренду. Без комісії! Телефонуйте вже зараз, щоб домовитися про перегляд. Такий варіант у центрі з документами справжня знахідка

Таунхаус в Ірпені, лісова частина міста, ГАЗ!
Таунхаус в Ірпені, лісова частина міста, ГАЗ! Київська область, Ірпінь
75 000 $
728 $ за м²
4-кімн 103 м²

Таунхауси у Ірпені 103 м2; Від 1.2 до 2,8 соток; Матеріали будівництва : -Газоблок Утеплення базальтова вата 50 (щільність 135мм) стіни; Дах металочерепиця утеплення базальтова вата 100; Комунікації: -Септик 6 м3 (+перелив) -Газ -Електрика 2 фази по 5 кВ -2 крайніх центральне водопостачання, Свердловина 30м, завести центральну воду (труба заведена в будинок) Крайні тауни 2 шт. Можна відділити і зробити закритий передній двір Ціна від 75.000$ в залежності від ділянки Грані газифіковані таунхаус в лісовій частині міста, за додатковою інформацією звертайтеся в особисті або за телефоном

Таунхаус 91 м² + мансарда 40 м² в центрі Ірпеня, всі комунікації
Таунхаус 91 м² + мансарда 40 м² в центрі Ірпеня, всі комунікації Київська область, Ірпінь
85 000 $
934 $ за м²
4-кімн 91 м²

Продаж сучасних таунхаусів TieUpHouse в самому центрі Ірпеня, вул. Лисенко, 14-Б. Ідеальний варіант для життя поруч з усією інфраструктурою та природою. Є відеоогляд Площа будинку 91 м² плюс повноцінна мансарда 40 м² Ділянки від 1,43 до 2,4 сотки Передній і задній дворики, місце для авто Будівництво: Стіни з керамоблоку 38 см Утеплення пінопласт 100 мм Фасад клінкерна цегла та декоративна штукатурка Залізобетонні перекриття Комунікації: Всі центральні комунікації Електрика 7 кВт, 3 фази, тариф день ніч Локація: Центр Ірпеня, поруч школи, садочки, магазини, транспорт, парки і вся необхідна інфраструктура Вартість: Середні таунхауси 85 000 доларів Кутовий лівий 90 000 доларів (1,67 сотки) Кутовий правий 98 000 доларів (2,4 сотки) Гнучкі умови оплати Без комісії для покупця Телефонуйте, підберемо найкращий варіант саме для вас

Одноповерховий будинок з ремонтом! 11 соток! Гараж! Газ
Одноповерховий будинок з ремонтом! 11 соток! Гараж! Газ Київська область, Ірпінь
350 000 $
1 892 $ за м²
3-кімн 185 м²

Продам одноповерховий будинок з новим якісним ремонтом в англійському стилі в Ірпені. Площа: 185 м² Ділянка: 11 соток Будинок збудований для себе з якісних матеріалів: газоблок, утеплення мінеральною ватою, клінкерна цегла Ruukki. Дах - металочерепиця. Комунікації: газ, електрика 16 кВт, свердловина 46 м, септик. Опалення - газовий конденсаційний котел, тепла підлога + радіатори, камін. Якісний ремонт з натуральних матеріалів (дуб, ясен), вікна Veka, кондиціонери. Будинок дуже теплий та енергоефективний. Планування: • кухня-вітальня 50 м² з другим світлом і каміном • 2 спальні + кабінет/бібліотека • 2 санвузли • гардеробні, пральня, технічне приміщення • тераса Меблі та техніка залишаються. Ділянка: гараж на 2 авто із зарядкою для електромобіля, автоматичні ворота, плитка, охорона Ajax. Тиха вулиця, пору.е. ітна забудова.

Продаж 2 поверхового таунхауса з ділянкою на 1.5 сотки, 94 кв. м, 4 кімнати, на вул. Сім'ї Шкарівських • ID 34073856
Продаж 2 поверхового таунхауса з ділянкою на 1.5 сотки, 94 кв. м, 4 кімнати, на вул. Сім'ї Шкарівських • ID 34073856 вулиця Сім'ї Шкарівських, Ірпінь, вул. Сім'ї Шкарівських • ID 34073856
92 000 $
979 $ за м²
4-кімн 94 м² 2 п

Продаж сучасного таунхауса у затишному районі. Продумане планування: простора кухня-вітальня, кілька кімнат, санвузли на кожному поверсі. Якісні матеріали, стильний інтерєр заїжджай і живи без додаткових витрат. Є власний дворик/тераса ідеально для відпочинку або сімейних вечорів. Зручне розташування: поруч магазини, школа, транспорт. Телефонуйте таун, в який закохуєшся з першого перегляду ️

Таунхаус в центрі міста
Таунхаус в центрі міста Київська область, Ірпінь
105 000 $
840 $ за м²
5-кімн 125 м²

Просторе житло площею 125 квадратних метрів 3 поверхи. Продумане планування, на першому поверсі кімната, с/в та простора кухня вітальня з виходом на задній дворик. Другий поверх 3 кімнати та великий с/в. Третій поверх зона відпочинку. Будинок побудований з керамоблоку, утеплений пінопластом 100 мм та оздоблений клінкерною цеглою. Коммунікації та оснащення: Всі комунікації центральні. Опалення індивідуальне газове, котел в ціні. Територія закрита, встановлено систему відеонагляду. Для автомобілів передбачено два власних паркомісця. Локація: Самий центр міста, кращої локації немає. Вся необхідна інфраструктура поруч. Об'єкт готовий до перегляду.

Продаж 2 поверхового таунхауса з ділянкою на 1.67 сотки, 91 кв. м, 3 кімнати, на вул. Лисенка • ID 33796054
Продаж 2 поверхового таунхауса з ділянкою на 1.67 сотки, 91 кв. м, 3 кімнати, на вул. Лисенка • ID 33796054 вулиця Лисенка, Ірпінь, вул. Лисенка • ID 33796054
90 000 $
989 $ за м²
3-кімн 91 м² 2 п

Продається Таунхаус + мансарда 40м2. Поруч є все необхідне для комфортного проживання. Всі центральні комунікації. Заведено 7 кВт, 3 фази день-ніч. Передній та задній двір. Державні програми - так. Сподобався - телефонуй зараз.

Центр Ірпеня! єОселя, єВідновлення -ТАК! 90м2+30м2 (мансарда)
Центр Ірпеня! єОселя, єВідновлення -ТАК! 90м2+30м2 (мансарда) Київська область, Ірпінь
85 000 $
708 $ за м²
4-кімн 120 м²

Площа таунхауса: 90 кв. м. + 30 кв. м. мансарда; Хороше планування: велика кухня-вітальня з виходом на задній двір, 4 просторі кімнати. Цей таунхаус стане чудовим вибором для тих, хто шукає комфорт та затишок у передмісті Києва. Земельна ділянка: 1 сотка Комунікації: Водопровід: центральне водопостачання; Газ: центральне газопостачання; Будівництво: Стіни: керамоблок; Утеплення: мінеральна вата; Фундамент: монолітно-стрічковий; Бетонні сходи між 1 і 2 поверхом; Фасад: декоративна штукатурка; Вікна: склопакет, енергозберігаючі; Дах: металочерепиця. Інфраструктура: Поруч школи, дитячі садки Магазини, кафе, ресторани Зручна транспортна розв'язка Близькість до парку та зони відпочинку.

Продаж 2 поверхового таунхауса з ділянкою на 1.3 сотки, 95 кв. м, 4 кімнати, на вул. Щаслива 17 • ID 34099513
Продаж 2 поверхового таунхауса з ділянкою на 1.3 сотки, 95 кв. м, 4 кімнати, на вул. Щаслива 17 • ID 34099513 вулиця Щаслива, Ірпінь, вул. Щаслива 17 • ID 34099513
100 000 $
1 053 $ за м²
4-кімн 95 м² 2 п

Таунхауси у м. Ірпінь, вул. Щаслива, 17 затишне котеджне містечко з закритою територією. Асфальтований підїзд, тиха вулиця, комфортне середовище для життя. Поруч парк «Дубки», ТЦ «Жираф», супермаркети Novus та АТБ, школи 1 і 2, дитячий садок усе в пішому доступі. Площа 92 м² Ділянка 1, 3 сотки Велике заднє подвіря близько 10 метрів у глибину. Є місця для паркування двох авто, з можливістю зробити накриття. Функціональне планування з можливістю облаштування мансардного поверху (приблизно 45 м² додаткового простору). Будівництво: керамічний блок, утеплення пінопластом. Комунікації: всі центральні газ заведений до будинку Невелике, закрите котеджне містечко з таунхаусами, дуплексами та будинками без зайвої щільної забудови, комфортне для проживання. Чудовий варіант для сімї поєднання приватності, простору та розвиненої інфраструктури поруч. Телефонуйте або пишіть підберемо варіант та домовимось про перегляд.

Продаж 2 поверхового таунхауса з ділянкою на 112 соток, 112 кв. м, 3 кімнати, на 2-й пров. Український 20 • ID 34160520
Продаж 2 поверхового таунхауса з ділянкою на 112 соток, 112 кв. м, 3 кімнати, на 2-й пров. Український 20 • ID 34160520 Український 2-й провулок, Ірпінь, 2-й пров. Український 20 • ID 34160520
86 000 $
768 $ за м²
3-кімн 112 м² 2 п

Ваш затишний дім у серці Ірпеня: Таунхаус з газом та готовою «чорновою» базою! Шукаєте компроміс між автономністю власного будинку та комфортом міської квартири? Це ідеальний варіант. Перший продаж, сучасне планування та топова локація. Локація: м. Ірпінь, 2-й пров. Український Тиха вуличка в самому центрі, паралельна головному виїзду на Київ. Ви оминаєте затори під вікнами, але за 15-20 хвилин уже в столиці. Чому цей таунхаус вартий вашої уваги: Інфраструктура «на долоні»: 5-10 хвилин пішки і ви в одному з 3-х парків, біля фонтанів, у школі, садочку чи супермаркеті. Готовність до чистового ремонту: Ви заощаджуєте місяці брудної роботи та тисячі доларів! Стіни вже поштукатурені. Розведена електрика (3 фази, 15 кВт) та вода. Встановлена інсталяція. Усі комунікації центральні: ГАЗ підключено, тарифи житлові, сусіди вже облаштувалися та живуть. Простір для ідей: 3 кімнати, 2 санвузли (під душ та ванну). Є високе горище за бажанням можна облаштувати повноцінний 3-й поверх (кабінет або ігрову). Особливості ділянки: Власна парковка перед будинком. Затишний вихід з кухні-вітальні у приватний дворик для барбекю та відпочинку. Ціна: 85000 $ БЕЗ КОМІСІЇ для покупця! Це не просто нерухомість, а інвестиція у ваш спокій та комфорт. Будинок перевірений, документи готові до угоди. Телефонуйте прямо зараз, щоб узгодити час перегляду! Таунхауси в такому місці продаються швидко.

Продам будинок 110м2 на 5 сот. в центрі міста! ГАЗ!
Продам будинок 110м2 на 5 сот. в центрі міста! ГАЗ! Київська область, Ірпінь
170 000 $
1 545 $ за м²
3-кімн 110 м²

Продам сучасний будинок в центральній частині міста. Без комісії для покупця. Пропонується одноповерховий будинок площею 110 м² на ділянці 5 соток у місті Ірпінь, район Набережної, поруч залізничний вокзал та супермаркет Novus. Локація з максимально розвиненою інфраструктурою - все необхідне в пішій доступності. Будинок має продумане планування3 кімнатиmaster bedroom з власним санвузлом2 окремі кімнати (дитячі або кабінет) простора кухня-вітальня з виходом на терасуТераса 3×5 мБудівництво та наповненнястіни - газоблокутеплення - графітовий пінопласт 100 ммфасад - декоративна штукатурка + терморейкадах - металочерепицявисота стелі - 3 мгорище - 3 м (додатковий простір) Комунікації підключені! Централізована вода та каналізаціяГАЗ Встановлений двоконтурний газовий котел Italterm 24 кВт Електроенергія 7.5 кВтВікна Rehau з Solar-покриттям - енергоефективність та комфорт у будь-яку пору рокуЯкісні вхідні двері з магнітним притягуваннямДілянка 5 соток (20×25 м) Розсувні ворота Паркомісце на 3 авто! Викладена тротуарна плитка. Завезений чорнозем, часткове озеленення. Інфраструктура: поруч школа, садочок, парк, супермаркети, аптеки, кафе, транспорт, залізнична станція - все в межах до 500 м. Будинок після будівельників - можливість зробити ремонт за власним смаком! Мінімальне оформлення. Торг реальному покупцю! Телефонуйте, домовимось про перегляд в зручний для вас час!

Таунхаус в центрі Ірпеня, Держ програми. Ремонт зроблять під вас.
Таунхаус в центрі Ірпеня, Держ програми. Ремонт зроблять під вас. Київська область, Ірпінь
95 000 $
969 $ за м²
4-кімн 98 м²

Таунхаус в центрі Ірпеня! Державні програми - ТАК! Просторий таунхаус у самому серці міста - чудовий варіант для родини або як вигідна інвестиція. Підходить під "єВідновлення", сертифікат, інші державні програми Площа: 98 м² Парковка: на 2 автомобілі Газ - є! Центральні комунікації - все підключено Локація: центр Ірпеня - поруч школа, садочок, магазини, зручне транспортне сполучення Деталі за телефоном або в месенджерах - відповім швидко та організую перегляд! Без комісії!

Відкрити карту Карта