Эксклюзивный ПЕНТХАУС 178 м2‼️ Цена низ рынка‼️Клубный дом‼️
Эксклюзивный ПЕНТХАУС 178 м2‼️ Цена низ рынка‼️Клубный дом‼️ Одеська область, Одеса, Київський
265 000 $
1 489 $ за м²
3-кімн 178 м² 5/6 п

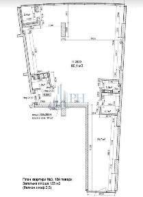
В продаже эксклюзивный пентхаус в клубном доме Одессы, ЖК«Сапфир» Общий метраж-175м2. Подземный паркинг на два автомобиля ‼️ Входят в стоимость ‼️ Информация о доме : Первый в Одессе жилой комплекс с индивидуальными планировками, ограниченным количеством квартир и своей инфраструктурой. На территории тренажерный зал, бассейн, подземный паркинг и круглосуточная охрана. В доме 6 этажей, всего 48 квартир, а это значит - никаких назойливых и шумных соседей. Жк “Сапфир”, который оснащен современной системой видеонаблюдения и охранными пунктами, работающими круглосуточно. Стены внешние, стены внутренние (коридорные) жилых этажей, перегородки межкомнатные, перегородки санузлов = Красный кирпич Утепление=Базальтовая вата не менее 150 мм Фасад =Вентилируемый фасад и фасад с плиткой под кирпич Пол в помещениях (комнаты, кухни, коридоры), кроме санузлов=Цементно-песчаная стяжка М100 толщиной 60 мм, тепло-звукоизоляция 10мм Отопление = Индивидуальное (двухконтурный котел BOSCH Gaz 6000 W WBN 6000-24 CPN)

СРОЧНО! Продам 2комн квартиру в ЖК <a href='/newbuilding/1247/view/zk-vernisaz'>Вернисаж</a>.
СРОЧНО! Продам 2комн квартиру в ЖК Вернисаж. Одеська область, Одеса, Київський
80 000 $
889 $ за м²
2-кімн 90 м² 12/13 п

СРОЧНО! Продам двухкомнатную квартиру в жилом комплексе Вернисаж. Самый спальный район на Таирова. Кирпичный сданный дом. Состояние от строителей. Двухстороняя квартира с большой застекленной лоджией. Подходит под програмы. Звоните уже!

Кошкин Дом, Аркадия есть все варианты Квартир
Кошкин Дом, Аркадия есть все варианты Квартир Одеська область, Одеса, Приморський
400 000 $
1 429 $ за м²
3-кімн 280 м² 5/6 п

В продаже пентхаус на улице Посмитного, ЖК КОШКИН ДОМ. Квартира общей площадью 280 кВ м. Есть терраса. Квартира просторная, жилое состояние. Стоимость указана с паркингом. Есть разные варианты абсолютно новая на 2м этаже - 325 тыс. Долл. с двумя паркоместами, три комнаты и терраса, два с/у156 кВ м. - 312 кВ м цена 620 тыс. - или 1 Комн 285 тыс, - 2х Комнт 315 тыс. - 3й этаж - 340 тыс вид моря! Новая Ваш Агент по недвижимости VIP DOM Odesa Татьяна Дерли.

Квартира в Одессе, три спальни, Таирова
Квартира в Одессе, три спальни, Таирова Одеська область, Одеса, Київський
79 999 $
920 $ за м²
3-кімн 87 м² 4/10 п

Мы Рада Вам представить в продажу редкую квартиру в продажу. Спец проект в Киевском районе города. Десяти этажный дом в близи Южного рынка, в шаговой доступности супермаркеты, аптеки, все виды транспорта в разные точки города. Квартира расположена на комфортном 4м этаже, двухсторонняя ( восток и запад). Общая площадь квартиры 87 кВ м. Современная планировка квартиры. При входе гардеробная, кухня -гостиная 27 кВ м с панорамным остекление ( раскрыта лоджия). На кухне встроенная газовая поверхность, встроенная кухонная мебель. Просторная гостиная комната. Три раздельные комнаты ( спальни, кабинет ). В двух комнатах раскрытые лоджии с панорамным остеклением, что придаем больше света и индивидуальности проекта. Ванная комната была объединена. Расположена ванная, бойлер, место для стиральной машинки. Квартира после клинига, чистая и свободная для новой семьи. Сделан капитальный ремонт: везде металопластик, ламинат, плитка. На стенах обои. Эксклюзив Агентсва. Сотрудничаем со всеми Агентами.

Проспект Шевченко, Гагарина Сталинка
Проспект Шевченко, Гагарина Сталинка Одеська область, Одеса, Приморський
95 000 $
1 118 $ за м²
3-кімн 85 м² 4/5 п

Один из лучших домов Одессы на проспекте Шевченко. Закрытый двор со своей детской площадкой, спорт площадкой и зоной отдыха. Сталинка - так уже не строят! Квартира в кирпичном доме расположена на 4м этаже /5ти этажного дома. Квартира двухсторонняя, внутри дома. Две квартиры на этаже. Планировка три раздельные комнаты, с/у совмещен, один из лучших обогревательных бойлеров ( последняя система). Из одной комнаты балкон с видом на парк. Со второй спальни увеличенный балкон на две комнаты с видом на зелёный закрытый двор. Квартира в отличном состоянии светлая, добротная, просторная. Агент по недвижимости VIP DOM Odesa

Французский бульвар + Паркоместо в цене
Французский бульвар + Паркоместо в цене Одеська область, Одеса, Приморський
200 000 $
1 316 $ за м²
4-кімн 152 м² 4/7 п

Квартира в Кирпичном доме с газом на среднем этаже - Французский бульвар. Общая площадь квартиры 152.1 кВ м. Квартира трехсторонняя три спальни, отдельная гостиная комната, кухня-столовая 18.1 кВ м с выходи на большой балкон вдоль кухни и одной из комнат. Три Спальни выходят на восточную морскую сторону. Вторая просторная лоджиия. В квартире качественный ремонт в отличном состоянии. Паркет на полу, обои, натяжные потолки. Остается встроенная мебель и техника. В доме есть паркинг, входит а стоимость квартиры! Все вопросы по телефону и на показе. Татьяна Дерли - агент по недвижимости.

Продам 1 кімн. Сімї Глодан/Таірова 29.500 у. о.
Продам 1 кімн. Сімї Глодан/Таірова 29.500 у. о. Одеська область, Одеса, Київський
29 500 $
868 $ за м²
1-кімн 34 м² 9/9 п

У продажі 1 кімн. на Таірова, вул. Ільфа та Петрова (зараз семї Глодан)/вул. Чикаленко (Віл"ямса). Зроблено свіжий ремонт у світлому кольорі. Балкон засклен. Нова бітова техніка (ще на гарантії) : газова плита, бойлер, машинка, холодильник. Над 9м поверхом ще є повноцінний технічний поверх. Зроблено ремонт даху.

(3-50) Добротная квартира в кирпичном доме
(3-50) Добротная квартира в кирпичном доме Одеська область, Одеса, Пересипський
39 000 $
609 $ за м²
4-кімн 64 м² 4/5 п

Уютная теплая квартира в блочно-кирпичном доме с классическим ремонтом. Установлены энергосберегающие окна, балкон застеклен, утеплен. Внутренние двери деревянные, на полах добротный паркет. Произведена замена электрики, труб, сантехники, установлены радиаторы, бойлер. В доме сделан ремонт, новая крыша, тихий зеленый двор. Прекрасный район, все рядом; школы, детские учреждения, рынок, супермаркеты, транспортная развязка. Торг! (3-33)

Квартира студийного типа в двух шагах от моря. Посейдон от Гефеста.
Квартира студийного типа в двух шагах от моря. Посейдон от Гефеста. Одеська область, Одеса, Київський
35 700 $
1 231 $ за м²
1-кімн 29 м² 26/26 п

Продам квартиру студийного типа в ЖК Посейдон Расположен на 16 Станции Большого Фонтана. Дом от надежного застройщика строительной компании Гефест. Студия с общим метражем 29м2 окна на город. В двух шагах пляж Золотой Берег и красивая набережная. Подходит под сдачу и под жилье. Предварительная сдача комплекса к концу 2025 года. Возможна покупка с поэтапной оплатой на 2 года. Звоните уже.

Продаж 3 кім. квартири р-н Центр із відкритими балконами
Продаж 3 кім. квартири р-н Центр із відкритими балконами Рівненська область, Рівне
96 000 $
850 $ за м²
3-кімн 113 м² 3/8 п

Пропонуємо квартиру, яка стане ідеальним вибором для комфортного життя. Квартира розташована у дуже теплому будинку, що забезпечує комфорту будь- яку пору та дозволяє суттєво заощаджувати на опаленні. - Автономне опалення, повний контроль температури та мінімальні комунальні витрати. Двоконтурний газовий котел proTerm, радіатори - Просторе планування- велика вітальня з виходом на два відкриті балкони. Стан після забудовника, що дає можливість реалізувати дизайн Двір закритого типу, шлагбаум, охоронець, відеоспостереження, паркінг, дитячий майданчик

Продам 1к квартиру з ремонтом, яка підходить під всі державні програм
Продам 1к квартиру з ремонтом, яка підходить під всі державні програм Вінницька область, Вінниця
49 500 $
1 269 $ за м²
1-кімн 39 м² 6/6 п

Продам 1к квартиру з ремонтом, яка підходить під всі державні програми

Продам готову повноцінну однокімнатну квартиру. Без комісії!
Продам готову повноцінну однокімнатну квартиру. Без комісії! Київська область, Ірпінь
23 000 $
605 $ за м²
1-кімн 38 м² 1/4 п

Будинок на газу, заведені комунікації все централізоване. Закрита територія, поруч паркова зона. Тихе та затишне місце. Гіпсова штукатурка та стяжка. Можна заходити на ремонт. Особливості будівництва: • Використовувались високоякісні екологічні матеріали. • Металеві вхідні двері з мдф накладкою. • Опалення індивідуальне газове • Ввід всіх комунікацій. • Стіни - чистова гіпсова штукатурка. • Міжкімнатні перегородки - гипсоблок. • Панорамні вікна - двокамерний склопакет, п'ятикамерний профіль. Також можна придбати власний гараж 18 кв. м. за ціною 11 000 у.е. Перегляд у зручний для вас час! ТЕЛЕФОНУЙТЕ!

Продажа видовой 3к квартиры (77.4м2) в ЖК Изумрудный, Шаповала, Мокрая
Продажа видовой 3к квартиры (77.4м2) в ЖК Изумрудный, Шаповала, Мокрая Київська область, Київ, Солом'янський
169 000 $
2 195 $ за м²
3-кімн 77 м² 24/25 п

ЖК Изумрудный - ул. Генерала Шаповала (Механизаторов) 2; Метро Вокзальная 15 минут пешком; Продажа функциональной, видовая 3-х комнатная квартира, с качественным ремонтом; - площадь: 77.4 м/кв; - 24 этаж; - в квартире 2 отдельные спальни, просторная кухня-гостиная, санузел, 2 гардероба, постирочная. - установлены кондиционеры, бойлер, теплосчетчик, сейф, на кухне в мойке - измельчитель. Чудесный вид на неповторимые закаты! В доме подключен генератор, который обеспечивает беспрерывную работу лифта, поступления воды и тепла даже при отключениях света! Территория ЖК закрыта, оборудована детскими площадками и местами общего пользования, есть подземный паркинг. По запросу - есть видео!

Продажа квартиры, Печерск, Драгомирова, <a href='/newbuilding/418/view/zk-novopecerskie-lipki'>Новопечерские Липки</a>
Продажа квартиры, Печерск, Драгомирова, Новопечерские Липки Київська область, Київ, Печерський
264 355 $
3 264 $ за м²
2-кімн 81 м² 12/23 п

Продажа квартиры, Печерск, Драгомирова, Новопечерские Липки. Продаж квартири, Печерськ, Драгомирова, Новопечерські Липки. Апартаменти відзначаються просторим плануванням з великими кімнатами і двома санвузлами, що забезпечує комфорт і зручність для мешканців. Панорамні вікна додають квартирі світла і відкривають чудові види на місто. З цим помешканням у вас буде прекрасна можливість розподілити простір квартири на власний розсуд, враховуючи індивідуальні потреби та бажання. ЖК «Новопечерські Липки» - елітне житло в історичному центрі Києва: Розташування - 7 хвилин до Міській лікарні №12; - 11 хвилин до станції метро «Дружби народів»; - 12 хвилин до супермаркету «Новус»; - 22 хвилини до Ботанічного саду; - 13 хвилин їзди до ТРЦ Ocean Plaza. Запрошуємо на перегляд. #A6164

Найнижча ціна! 1к заг 43м2 Повітряних Сил 56 ЖК ОКленд Нема податку
Найнижча ціна! 1к заг 43м2 Повітряних Сил 56 ЖК ОКленд Нема податку Київська область, Київ, Солом'янський
63 000 $
1 465 $ за м²
1-кімн 43 м² 16/24 п

Соломʼянський район, Севастопольська площа, проспект Повітряних Сил 56, ЖК Окленд. СВОЇ ПОДАТКИ ВЛАСНИЦЯ СПЛАЧУЄ САМА! Розглянемо державні програми! Право власності! Документам менше 3х років. Будинок номер 2 (по середині) Новобудова, закрита територія, поверх 16тий з 24рьох, загальна площа 43м2. Ціна 63000у. о + комісія агенства 3%.

Продам 2-ю квартиру ул. Заболотного 1Б ЖК Метрополис
Продам 2-ю квартиру ул. Заболотного 1Б ЖК Метрополис Київська область, Київ, Голосіївський
135 000 $
2 045 $ за м²
2-кімн 66 м² 31/33 п

Продам видовую двухкомнатную квартиру с ремонтом в ЖК Метрополис на 31 этаже в сданном доме 1, с документами. Функциональная планировка 65,7/33.7/17,5 ремонт сделан на 97% Высокие потолки 3м На кухне : полностью сделана разводка воды, фартук, автономное отопление установлен электро-котел -оборудованы санузлы, установлен бойлер - есть большая гардеробная - металлопластиковые окна с 5-ти камерным профилем и энергосберегающим 3х-камерным стеклопакетом, - радиаторы с терморегуляторами, - счетчики: водо- и электроснабжения В доме пять лифтов, на первом этаже коммерческие помещения. Территория ЖК под круглосуточной охраной, имеется подземный паркинг, собственная парковая зона площадью 2 Га - целый парк для прогулок и отдыха, детский садик, фитнес клуб и т. д. Отличная транспортная развязка: до метро Теремки или метро Ипподром 9 минут ходьбы, до центра столицы 10-15 минут на транспорте Развита инфраструктура вблизи самого комплекса: ВДНХ, ТЦ Магелан, теннисные корты, ледовый стадион, ипподром, парк им Пирогова Цена 135000 у.е. Без комиссии Метрополис

Без %. Найкраща видова 3к. кв, 125м2,в ЖК Aria, Миколи Міхновського 13а
Без %. Найкраща видова 3к. кв, 125м2,в ЖК Aria, Миколи Міхновського 13а Київська область, Київ, Печерський
211 500 $
1 888 $ за м²
3-кімн 112 м² 18/25 п

Без %! Ексклюзивний продаж видової 3 кімнатної квартири в ЖК Aria, бул. Миколи Міхновського 13а. Одна з найкращих квартир в комплексі. Квартира розташована на 18 ому поверсі, має чудовий краєвид, панорамні вікна. Загальна площа 112.96 м2 (по договору), після обмірів 125м2 (є доплата за м2 після БТІ). Висота стелі 2.8 м., монолітно-каркасна технологія будівництва, стіни керамоблок. В квартирі вільне планування. Встановлені радіатори, є індивідуальні лічильники на воду, світло та тепло. ЖК Арія, будинок бізнес класу з підземним паркінкгом в центрі міста Києва в Печерському районі. Поруч станція метро «Звіренька», будинок меблів, вул. Чеська, Дружби народів, Підвисоцького, Джона Маккейна, Іоанна Павла 2, Філатова, ЖК Французький квартал, Централ парк, ЖК Richmond, ЖК Taryan Towers Також можемо запропонувати парко місця, є три місця по гарній ціні. Квартира пропонується без комісійних!

Продаж 3 кім-на Стеценка 4 Нивки Сирець Щербаківського Мрії Туполева
Продаж 3 кім-на Стеценка 4 Нивки Сирець Щербаківського Мрії Туполева Київська область, Київ, Подільський
58 000 $
951 $ за м²
3-кімн 61 м² 5/5 п

Продаж 3 кімн. квартири за адресою вул Стеценка 4., метро Нивки 15 хвилин, Сирець 10 хвилин. Площа: 61/44,7/7,9 кв. м. Двостороння тепла квартира. - роздільний санвузол. - дві спальні окремо, зал прохідний, можна зробити всі окремі кімнати. - одна кімната підготовлена під ремонт. Підлога у кімнатах - паркет. Балкон засклений. Централізоване опалення та гаряча вода. Потребує косметичного ремонту, тому можна зробити прекрасний ремонт під себе. Одна кімната повністю підготовлена до ремонту. У пішій доступності лікарня, магазини, школи, дитячі садочки, ТРЦ, стадіон, платна парковка. Зручна транспортна розв'язка, знаходиться між станціями метро Нивки і Сирець. Тихий та спокійний район для сімейного життя.

БЕЗ % Урядовий квартал квартира 212 м2 Пилипа Орлика 10 Липки Печерськ
БЕЗ % Урядовий квартал квартира 212 м2 Пилипа Орлика 10 Липки Печерськ Київська область, Київ, Печерський
540 000 $
2 547 $ за м²
5-кімн 212 м² 5/6 п

У продажу шикарна дворівнева сталінка у самому серці столиці, в правничому кварталі на Липках. У квартирі виконаний якісний ремонт з натуральних матеріалів. Квартира двостороння, з просторої відкритої тераси вид на Верховний Суд України, навпроти на вулицю Липську. В квартирі діючий камін та зимовий сад, сауна, гардеробна, три санвузли, має індивідуальне опалення, у дворі з охороною закріплено два паркомісця, будинок з ліфтом. Дуже тихе та затишне місце. Терміновий прямий продаж без комісії. /Центр /Липки /Печерськ /Урядовий квартал /Історичний центр /Пилипа Орлика /Верховний суд /пентхаус /сталінка /ліфт /дворівнева /індивідуальне опалення /панорамні вікна /Арсенальна /Кловська /Хрещатик

Євро 3-х кімнатна квартира ЮТЛАНДІЯ 2
Євро 3-х кімнатна квартира ЮТЛАНДІЯ 2 Київська область, Ірпінь
135 000 $
1 500 $ за м²
2-кімн 90 м² 5/8 п

Продаж дуже класної просторої квартири з терасою в ЖК Бізнес класу Ютландія - 2. Чудова локація : Парк Центральний Розвинений район, чудова інфраструктура. В пішому доступі є все необхідне для комфортного проживання. Надійний забудовник. Опалення : котельня з генератором. Є підземний паркінг. Наповнення : white box, максимально підготовлено під ремонт. Перегляд в будь який час. Телефонуйте.

Відкрити карту Карта