Продаж 2-кім квартири в ЖК Веселка, вул. Залізнична, 17
Продаж 2-кім квартири в ЖК Веселка, вул. Залізнична, 17 Львівська область, Львів, Залізничний
135 000 $
1 929 $ за м²
2-кімн 70 м² 5/10 п

Продаж 2-кім квартири в ЖК Веселка, вул. Залізнична, 17 Простора, світла та сонячна квартира з якісним ремонтом у сучасному житловому комплексі! Основні характеристики: • Площа: 70,1 м² • Поверх: 5 з 10 • Планування: дві ізольовані просторі кімнати 19,6 м² і 14,4 м², з обох - вихід на лоджію • Кухня: 12,1 м² з виходом на велику лоджію • Санвузол: душова, пралка, рушникосушка. • При вході велика шафа купе і комора для зберігання різних речей • Вікна: панорамні • Опалення: індивідуальне газове (котел) • Тепла підлога: кухня, коридор, ванна • сучасний ремонт • Інтернет: швидкісний Переваги будинку: • великий ліфт • чистий, просторий під'їзд • відеоспостереження • гостьовий паркінг • підземний паркінг (також працює як надійне укриття) Локація: • розвинена інфраструктура: магазини, супермаркети, салони, кафе • поруч школи та садочки • зупинка громадського транспорту за кілька хвилин - легко дістатись у будь-який район міста • до центру Львова - близько 15 хв Ціна: 135 000 $ Телефонуйте - квартира повністю готова до заселення та чекає на свого нового власника! В дитячій забирається майже все (ліжко, стіл, компʼютер, крісло).

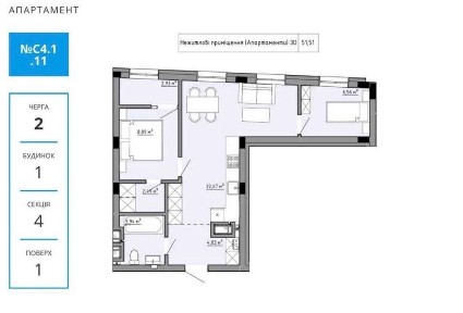
Продаж 2-к АПАРТАМЕНТІВ/вул. Орлика/ЖК Фемілі Хаус
Продаж 2-к АПАРТАМЕНТІВ/вул. Орлика/ЖК Фемілі Хаус Львівська область, Львів, Шевченківський
39 500 $
775 $ за м²
2-кімн 51 м² 1/5 п

ТОП ціна! Продаж 2 кімнатних АПАРТАМЕНТІВ Секція 4. ЖК: Family House/Фемілі Хаус вул. Пилипа Орлика Продаж по переуступці. Загальна площа 51, 51 м2 Поверх 1/5 Максимальне наповнення від забудовника вже входить у вартість: стяжка, штукатурка, двері, вікна та радіатори. У будинку буде ліфт. Здача на 2 квартал 2026 року. Опалення електричне Зараз активно ведеться будівництво житлового комплексу. Телефонуйте стосовно огляду! Тел: 07*********23

Продаж 2-кім. квар. 61кв. м. ЖК <a href='/newbuilding/6770/view/zk-riel-city'>Riel City</a>.Ціна: 71999$.
Продаж 2-кім. квар. 61кв. м. ЖК Riel City.Ціна: 71999$. Львівська область, Львів, Залізничний
71 999 $
1 180 $ за м²
2-кімн 61 м² 7/12 п

Продаж 2 кімнатної квартири 61м2 в ЖК Ріел Сіті Ціна 71999$ Продається квартира в зданій новобудові ЖК Ріел Сіті по вул. Рудненська. Квартира двохстороння. Дахова котельня з індивідуальним тепловим лічильником в квартирі. Будинок зданий, можна робити ремонт. Ліфти працюють. 7 поверх з 12, види на дві сторони. Власна інфраструктура ЖК (магазини, дитсадки, майданчики). Зручна транспортна розв'язка (3 хв до зупинки). Поруч школи, садочки, ТЦ "АТБ", "Сільпо", ринок. Покази по домовленості. Ціна: 71999$ Покази в любий зручний для вас час. Ключі на руках.

ЗДАНО ТА ЗАСЕЛЕНО! Розтермінування. Продаж 2кім+студія, жк <a href='/newbuilding/7705/view/zk-sengen'>Шенген</a>
ЗДАНО ТА ЗАСЕЛЕНО! Розтермінування. Продаж 2кім+студія, жк Шенген Львівська область, Львів, Залізничний
102 400 $
1 313 $ за м²
2-кімн 78 м² 2/5 п

Продаж без комісії! жк Шенген, зданий будинок, вулиця Залізнична 9б продаж 2кімнатної квартири на 2 поверсі, площа 78м2 є засклена лоджія, вигляд у внутрішній двір є розтермінування до червня 2026р, також можливий продаж під програму єОселя ціна квартири 102.400$ ( це виходить 1300$ в готовому, зданому будинку) є відео квартири

1к. квартира вул. Петлюри ц-39000$
1к. квартира вул. Петлюри ц-39000$ Львівська область, Львів, Франківський
39 000 $
1 500 $ за м²
2-кімн 26 м² 6/9 п

1к. квартира в малосімейці по вул. Петлюри. Остання квартира по коридору, Приєднана частина загального коридору, де є ще одна невелика кімната. Загальний стан кімнат житловий, кухня та ванна потребує ремонту. Хороший район з розвиненою інфраструктурою. Деталі за тел.

Продаж 2-кімнатної квартири з розтермінуванням
Продаж 2-кімнатної квартири з розтермінуванням Львівська область, Рудне
58 900 $
950 $ за м²
2-кімн 62 м² 2/4 п

Продаж 2-кімнатної квартири, площею 62 м. кв. у смт. Рудно (Залізничний р-н Львова). Сучасне планування: Прихожа - 8,12 м. кв. 2 спальні - 15,8 та 14,6 м. кв. Санвузол - 5 м. кв. Кухня/вітальня - 16 м. кв. Квартира з панорамними вікнами та 2 балконами з виглядом на ліс. 0-й цикл, всі комунікації, індивідуальне газове опалення, двоконтурний котел, лічильники. Малоповерхова забудова клубного формату. Є ліфт. Перший поверх комерційний, що забезпечує всю необхідну інфраструктуру в межах будинку. Передбачено великий паркінг, гостьові та приватні паркомісця. Термін здачі 1-ї черги - кінець 2027 року вже з комунікаціями. Можливе розтермінування платежів на період будівництва, з першим внеском від 30%. Розвинена інфраструктура в пішій доступності: магазини, супермаркети, відділення Нової пошти, навчальні заклади, дитячий майданчик, аптеки, зупинка громадського транспорту #52, швидкий виїзд на Західну об'їзну Львова. Телефонуйте та записуйтесь на показ

Продаж 2 кімнатної квартири, вулиця Городоцька
Продаж 2 кімнатної квартири, вулиця Городоцька Львівська область, Львів, Залізничний
58 000 $
1 526 $ за м²
2-кімн 38 м² 1/3 п

Продаж 2-кімнатної квартири у Львові на вул. Городоцькій, 144. Затишне та світле житло з продуманим плануванням. Загальна площа 37,8 кв. м, житлова - 25,8 кв. м, кухня - 9 м. Квартира знаходиться на зручному 1-му поверсі, 3-х поверхового будинку. Опалення - індивідуальне газове. Квартира з якісним свіжим ремонтом та власним тихим внутрішнім двориком - ідеально для комфортного проживання або орендного бізнесу. Район із розвиненою інфраструктурою: поруч магазини, супермаркети, ринки, аптеки, школи та садочки. Зручна транспортна розв'язка - швидкий доступ до центру та різних районів міста. До Оперного театру лише 2 км. Безпечна локація. Код об'єкта: 16279

Продаж / Квартира / вул. Залізнична, Привокзальна, Львів
Продаж / Квартира / вул. Залізнична, Привокзальна, Львів Львівська область, Львів, Залізничний
94 999 $
1 301 $ за м²
2-кімн 73 м² 5/14 п

Продаж в НОВОБУДОВІ 74/34/18м поверх 5/14ц Ціна 95000$ Продається затишна 2-кімнатна квартира в ЖК Шенген ("Дольче Віта") на вулиці Залізнична. Продаж квартири по переуступці, що оплачує власник. Ця квартира розташована в четвертій секції будинку і вже завершили внутрішні облаштування і можна приступати до ремонту. Світло і вода вже підключені. По внутрішньому плануванню квартира дуже функціональна: дві ізольовані кімнати та кухня 18м. Вона оснащена індивідуальним опаленням (двофункційний котел), штукатуркою та чорновою стяжкою. Комунікації вже заведені без розводки по квартирі, що спростить процес ремонту. Квартира вигідно розташована і має двостороннє планування з двома балконами. В квартирі 2 санвузли та гардероб або кладовка. Район має відмінну інфраструктуру та добре розвинену транспортну розв'язку. До центру міста можна легко дістатися пішки за 20 хвилин або за допомогою громадського транспорту за 4 зупинки. В пішій доступності є все, що потрібно для комфортного проживання. Для детальної інформації та узгодження огляду телефонуйте.

ЄОСЕЛЯ 2х-кімнатну квартиру, Роксоляни 66 ЖК Р2 Резидент
ЄОСЕЛЯ 2х-кімнатну квартиру, Роксоляни 66 ЖК Р2 Резидент Львівська область, Львів, Залізничний
81 600 $
1 200 $ за м²
2-кімн 68 м² 9/11 п

Продам 2х-кімнатну квартиру, вул. Роксоляни 66, ЖК Р2 Резидент "Дану квартиру можна розглянути під іпотеку Є-Оселя" Гарне розташування, поряд вся Iнфраструктура. Квартира знаходиться на 9му поверсі, 12-ти поверховогу будинку. Загальна площа - 68 м. кв., кухня - 19,8 м. кв., дві роздільні кімнати. Квартира в стані від забудовника. Здано 2024 року, ще переуступка, 0 цикл Компанія "Квартира Нова" (Kvartira Nova) має можливість консультувати українською, англійською та рос мовами. Не додзвонилися чи не має мережі? За номером є всі месенджери (Telegram, Viber, WhatsApp). Це зручний спосіб отримати відповіді на запитання у реальному часі. Вартість квартири 81.6 тис. дол., агентські послуги 3,5% Номер оголошення на сайті компанії: SF-2-921-236-LX.

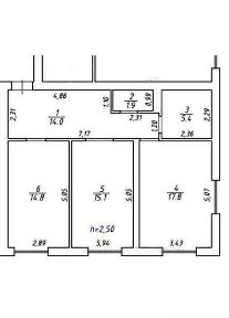
Продаж 2к в. Голубовича пл 55/30/8.5м 4/4ц кім ізол ціна 70т у. о.
Продаж 2к в. Голубовича пл 55/30/8.5м 4/4ц кім ізол ціна 70т у. о. Львівська область, Львів, Залізничний
70 000 $
1 273 $ за м²
2-кімн 55 м² 4/4 п

Продаж 2-кімн квар по вул Голубовича/ р-н привокзальної/ пл 55/30/8.5м 4/4ц правильне планування парадний вхід кімнати ізольовані над квартирою горище бетонне перекриття польський будинок опалення газові конвектори на горячу воду колонка два балкони стан радянський квартира вільна чиста продаж ціна 70 000 у. о /торг/

Продаж 2-кім. квартири на вул. Любінська. Львівська область, Львів, Залізничний
56 500 $
1 284 $ за м²
2-кімн 44 м² 3/5 п

Продаж 2-кім. квартири на вул. Любінська. Квартира на 3 поверсі 9 поверхового будинку. Загальна площа 44,1 кв м / кухня 5,7 кв м. Кімнати ізольовані, вигоди роздільні, є кладовка, лоджія. Квартира без ремонту. Хороша локація: поруч магазини, кав'ярні, ринок, зупинка, школа, дит. садок тощо. Ціна: 56500 $

2-кімнатна квартира - вул. Таллінська, 14 (Левандівка) Квартира знах
2-кімнатна квартира - вул. Таллінська, 14 (Левандівка) Квартира знах Львівська область, Львів, Личаківський
50 000 $
1 190 $ за м²
2-кімн 42 м² 2/2 п

2-кімнатна квартира - вул. Таллінська, 14 (Левандівка) Квартира знаходиться на 2-му поверсі мало квартирного будинку. Є можливість збільшення площі. * Площа - 42.9 м² * Житлова - 23 м² * 1-ша кімната - 15.3 м² * 2-га кімната - 7.7 м² * Санвузол -3.3 м² * Балкон - 0.6 м² * Кухня студія - 16 м² * Висота стель - 2,35 м Опалення - газовий конвектор. Підігрів води- бойлер Вартість: 50000 $ Телефон: (06**********54

Без комісії для покупця! Продаж 2-х кімнатної квартири вул. Городоцька
Без комісії для покупця! Продаж 2-х кімнатної квартири вул. Городоцька Львівська область, Львів, Залізничний
62 000 €
1 442 € за м²
2-кімн 43 м² 4/5 п

Продаж 2-кімнатної квартири, вул. Городоцька (Мотозавод) 4/5п Заг. пл. 43.м. кв Квартира з ремонтом та умебльована (залишається все) М\п вікна, засклений балкон Вікна в гарне сонячне подвір"я. Хороше транспорте сполучення Ціна: 62000 Євро Для покупця послуги агенства нерухомості безкоштовні

Продаж 2кім квартири у ЖК Глобус Баланс вул. Садовій|Кульпарківська
Продаж 2кім квартири у ЖК Глобус Баланс вул. Садовій|Кульпарківська Львівська область, Львів, Залізничний
98 100 $
1 509 $ за м²
2-кімн 65 м² 4/10 п

Продаж 2кім квартири у ЖК Глобус Баланс що по вулиці Садовій. Площа 65,7м2 Раціональне планування - кухня-студія та дві ізольовані спальні. Локацію можна оглянути, вже залито моноліт та закладено цеглою 6 поверх. Поверх 4 з 10 Здача ЖК на середину 2026р У квартирі - індивідуальне газове опалення, котел. Будівництво з цегли Телефонуйте!

Продаж 2-кім. квартири у зданій новобудові по вул. Рудненська, 8
Продаж 2-кім. квартири у зданій новобудові по вул. Рудненська, 8 Львівська область, Львів, Залізничний
82 700 $
1 199 $ за м²
2-кімн 69 м² 6/12 п

Виставлено на продаж 2-кім. квартиру в ЖК Riel Sity, 3 черга (голубий будинок) - був зданий у серпні цього року. Можливий ще продаж по переуступці з прямим оформленням права власності на Покупця. Будинок частково вже заселений. Квартира дуже світла, з правильним планування, з великими панорамними вікнами. В будинку на даху є власна котельня, на кожну квартиру виведений тепловий лічильник, що дозволяє власнику регулювати температуру у квартирі індивідуально. Це надзвийчайно економна та зручна система опалення. Потужність електроенергії на квартиру становить 10 кВт. Сам житловий комплекс комфортний для життя - є гостьовий паркінг, дитячий майданчик, прогулянкові зони, які доступні людям з особливими потребами. Цілодобове відеоспостереження та освітлення ліхтарями з фотоелементами - не потрібно платити за освітлення вулиці. Інфраструктура в пішій доступності - супермаркети АТБ, Сільпо, Левандівський ринок, 20 хвилин до початкової школи №128, 5 хвилин - до початкової школи №2 та дитячого садка №160. Локація добра як для проживання, так і для здачі в оренду. Ціна - 1200$/м2, можливий торг. Телефонуйте, домовляйтесь про огляд, є відеоогляд - можу надіслати в приватні повідомлення.

Продаж 2 кім квартири з гаражем вул. Бортнянського
Продаж 2 кім квартири з гаражем вул. Бортнянського Львів, Залізничний, вулиця Дмитра Бортнянського 52
85 500 $
1 379 $ за м²
2-кімн 62 м² 1/3 п

Продаж 2 кімнатної квартири з гаражем відразу у дворі будинку та великим підвалом 15 м, зручна локація до центру пішки 20 хв, поряд багато супермаркетів, магазинів, школи, садочки, зупинка транспорту. Гарний австрійський будинок з своєю прибудинковою територією, високий перший поверх, під квартирою високий підвал / майстерня з вікном. В квартирі зроблений косметичний ремонт, індивідуальне опалення 2 х функційний котел, залишають повністю всі меблі та побутову техніку

Продаж 2 кімн кв в зданій новобудові по вул Щирецька ( ЖК Кворум)
Продаж 2 кімн кв в зданій новобудові по вул Щирецька ( ЖК Кворум) Львівська область, Львів, Залізничний
126 500 $
1 543 $ за м²
2-кімн 82 м² 9/9 п

Без комісії! Продаж 2-кімнатної кв-ри в новобудові ЖК Quoroom Avenue по вул. Щирецькій (Нова Лінія) Загальна площа -82,5.кВ Кухня - 33,7КВ 6 секція 9/9 поверх Хороше планування з вікнами на дві сторони та великою терасою вздовж квартири 0-цикл, своя котельня, стяжка у житловій площі, штукатурка по периметру квартири. Висота стелі 2,7м Є технічний поверх над квартирою та дах зроблений по нових технологіях На поверсі 2 квартири Лічильники: світло, вода. Будинок зданий в експлуатацію Є право власності. Ціна: 126500$

Продаж 2 кімн. кв. вул. Кругова
Продаж 2 кімн. кв. вул. Кругова Львівська область, Львів, Залізничний
63 000 $
1 537 $ за м²
2-кімн 41 м² 4/5 п

Продаж 2 кімн. кв. вул. Кругова Засклений балкон. Гардеробна. Квартира в житловому стані, НЕ кутова. Нова колонка на гарячу воду. Розвинена інфраструктура, поруч супермаркети, магазини, ринок. Зразу біля будинку дитячий майданчик, зупинка громадського транспорту. Є відеоогляд, телефонуйте, скину. Пропозиція від АН. За детальною інформацією і для огляду квартири телефонуйте.

Продаж 2 кімнатної квартири, вулиця Виговського, цегла
Продаж 2 кімнатної квартири, вулиця Виговського, цегла Львівська область, Львів, Залізничний
75 000 $
1 471 $ за м²
2-кімн 51 м² 10/10 п

Продаж 2 кімнатна квартира в цегляному будинку по вулиці Мисливська (бічна вулиці Виговського, Любінська). Опалення центральне. Квартира не кутова. Поверх 10/10. Над квартирою високий технічний поверх. Загальна площа квартири 51,2 кв. м., житлова площа 28,2 кв. м., кухня 7,2 кв. м. В квартирі 2 балкони (із кухні та кімнати). Кімнати ізольовані, санвузол роздільний. Квартира облаштована меблями та побутовою технікою, а саме: газова плита, холодильник, пральна машина, телевізор та кондиціонер, також шафи, дивани розкладні та багато іншого. Розвинена інфраструктура, поруч навчальні заклади, дитячі майданчики, супермаркети, кафе, аптеки, відділення нової пошти, зупинки громадського транспорту, хороша транспортна розвязка. Код 16245

Продаж 2 кім комфорт клас в малоквартирній забудові вул. Роксоляни
Продаж 2 кім комфорт клас в малоквартирній забудові вул. Роксоляни Львівська область, Львів, Франківський
79 500 $
1 500 $ за м²
2-кімн 53 м² 5/6 п

Продаж 2 кім комфорт клас в малоквартирній забудові Продається двох кімнатна квартира в ЖК Роксолана Trident Development Вул. Роксоляни Здача на 4 квартал 2025 року Площа 53кв. м Поверх 5/6 ( є ліфт) Дві ізольовані кімнати + кухня студія, два балкони, роздільний санвузол. Індивідуальне газове опалення. Якісне будівництво комфорт класу. Малоквартирна забудова. Будинок третій, два вже здані. В будинку є підземний паркінг (укриття) Ціна 79 500$ торг 06*********51 Тарас

Відкрити карту Карта