Продаж двокімнатної квартири в новобудові
Продаж двокімнатної квартири в новобудові Львівська область, Солонка
51 000 $
962 $ за м²
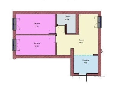
2-кімн 53 м² 3/5 п

•Продаж світлої квартири в Солонці, на вулиці • Рубчака, у будинку від надійного забудовника Карпатбуд. Квартира розташована на зручному третьому поверсі, має продумане планування, простору кухню та дві ізольовані кімнати Будинок новий, з гарно впорядкованою територією та сучасними комунікаціями. Локація ідеальна для тих, хто цінує спокій і комфорт заміського життя поруч із містом. Поруч є все необхідне - магазини, школа, транспортна розв'язка. Цей варіант стане чудовим вибором як для власного проживання, так і для інвестиції. Телефонуйте, щоб домовитись про перегляд

Продаж двокімнатної квартири, Солонка, ідеальна локація
Продаж двокімнатної квартири, Солонка, ідеальна локація Львівська область, Солонка
51 000 $
962 $ за м²
2-кімн 53 м² 3/5 п

Простора й затишна оселя у сучасному будинку з ліфтом, розташована на комфортному третьому поверсі. Планування продумане до дрібниць - простора кухня-вітальня, спальня та зручний санвузол. Квартира дуже світла завдяки великим вікнам, що відкривають вид на спокійний двір. Будинок зведений на вулиці Рубчака - у зручній локації Солонки, поруч із “Кінг Кросс Леополіс”. Це ідеальне поєднання міського комфорту й заміської тиші. Поряд супермаркети, кафе, фітнес-клуб, школи та зупинки громадського транспорту. До центру Львова до 20хв на авто. Переваги: - сучасний житловий комплекс із якісним будівництвом; - надійний забудовник “Карпат-Буд”; - ліфт і чистий, охайний під'їзд; - просторе планування, яке легко адаптувати під свій стиль; - зручна транспортна розв'язка та розвинена інфраструктура. Квартира чудово підійде як для власного проживання, так і для інвестиції - тут легко здавати в оренду завдяки близькості до міста й популярності локації. Код - 386791 Код об'єкта: k107.7'386791'277. АН "Атланта". Більше інформації та світлин за посиланням: https://www.atlanta.ua/uk/lvov/object/2komnatnye/386791

Продаж 2-кім. квартири Солонка, Карпатбуд вул. Рубчака (Стрийська)
Продаж 2-кім. квартири Солонка, Карпатбуд вул. Рубчака (Стрийська) Львівська область, Солонка
56 300 $
1 005 $ за м²
2-кімн 56 м² 2/5 п

Продаж гарної 2-кім. квартири ЖК Рубчака. Забудовник Карпатбуд. Будинок на етапі здачі. Знаходиться поряд зі Львовом в с. Солонка по вул. Рубчака. Поверх 2| 5 Площа 56,3 м. Малоповерхова секція. Індивідуальне газове опалення. Буде встановлено газовий котел. Вдале планування. 2 роздільні санвузла. Зручний виїзд на вул. Стрийську. Продаж по переуступці. Близько до ТРЦ King Cross Leopolis. Телефонуйте, надам всю інформацію та проведу огляд.

Продаж 2 кім. квартири в ЖК що в Солонці від Карпатбуд.
Продаж 2 кім. квартири в ЖК що в Солонці від Карпатбуд. Львівська область, Солонка
54 500 $
908 $ за м²
2-кімн 60 м² 1/5 п

Продаж 2 кім. квартири в ЖК що в Солонці від Карпатбуд. Поверх 1 з 5 Площа 60.7м2 Індивідуальне газове опалення. Наповнення від забудовника. стяжка, штукатурка, котел. Здача 4 кв 2025р. Телефонуйте, квартиру можна оглянути.

Продаж 2- кімнатної квартири в новобудові, 3км до Львова
Продаж 2- кімнатної квартири в новобудові, 3км до Львова Львівська область, Солонка
86 500 $
1 331 $ за м²
2-кімн 65 м² 5/5 п

Квартира для тих хто цінує вільний простір, затишок та крутий вигляд з вікна! Пропозиція варта уваги для молодої сімʼї чи пари. Квартира двостороння-Сх-Зх, площею 65м2, простора кухня-студія 35м2, та додатково мансарда з ліжко-місцями-20м2. Можна використати як кабінет, релакс-зону чи зберігання речей. -2 санвузли з душем -велика кухня -засклений балкон -високі стелі (понад 4м) Дуже гарний панорамний вигляд з вікон! Поверх 5/5, без ліфта. Автономне газове опалення. Спортзал, магазини, салони, садочок, школа, зупинка-все поруч! Особняковий райончик, навколо бруківка. Додатково можна придбати кладовку та гараж. Хороший варіант під інвестицію, вже є орендарі.

Продаж 2-ох рівневої квартири Солонка Наварійська новобудова 58м2
Продаж 2-ох рівневої квартири Солонка Наварійська новобудова 58м2 Львівська область, Солонка
35 000 $
603 $ за м²
2-кімн 58 м² 3/3 п

Продаж без комісії! Продається квартира у двох рівнях, 3 поверх38 м2 і мансарда 20м2 ( висота 2,80м). Квартира світла та простора. Здача будинку 3 квартал 2026 р. Нульовий цикл, індивідуальне опалення. Комунікації: центральна вода, світло, газ, каналізація. Добрий доізд. Розвинена інфраструктура. Ціна 35000$.

Продаж 2х к квартири з автономним опаленням Солонка Львів!
Продаж 2х к квартири з автономним опаленням Солонка Львів! Львівська область, Солонка
65 000 $
1 477 $ за м²
2-кімн 44 м² 5/5 п

Двохкімнатна квартира, готова до проживання, знаходиться в с. Солонка. Квартира знаходиться на 5 поверсі 5 поверхового будинку має утеплений фасад і поміняний дах. Зроблений капітальний сучасний ремонт, все стильно, продумано і затишно. Індивідуальне опалення, кондиціонер, інтернет, балкон, гардероб, чистий під'їзд після ремонту. Локація : зупинка громацького транспорту, до кінг кросу 7 хв машиною, поруч ліс, магазини, пошта, перукарня. Чудова квартира біля Львова. Телефонуйте з радістю організуємо огляд ! Код - 306582

Продаж 2км. квартири Наварійська новобудова малоповерхова 72м2
Продаж 2км. квартири Наварійська новобудова малоповерхова 72м2 Львівська область, Солонка
50 000 $
694 $ за м²
2-кімн 72 м² 1/3 п

Продаж гарної та просторої квартири по вулиці Наварійська в гарному та затишному районі Солонки, загальною площею72м2. Квартира має гарне планування -на дві сторони, північ і південь, 2 санвузли, коридор, 3 балкони. Панорамні вікна входять у вартість, двкрі вхідні, заведення комунікацій ( газ -лічильник, світло (лічильник), вода цетральна (лічильник), каналізація. У вартість входять перегородки, штукатурка стін, облагородження території. Новобудова малоповерхова у тихому районі. Добрий доїзд, поруч магазин продукти, зупинка громадського транспорту. Ціна 50000дол.

Продаж 2-кім. квартири, Солонка
Продаж 2-кім. квартири, Солонка Львівська область, Солонка
50 160 $
965 $ за м²
2-кімн 52 м² 5/5 п

Продаж 2-кім. квартири у новобудові в Солонці. Забудовник Карпатбуд. Площа 52.8/21.65/13.95 кв. м. П'ятий поверх. Дві ізольовані спальні та кухня-вітальня, роздільний санвузол, є гардеробна, лоджія. Нульовий цикл. Ціна: 950 дол. за метр.

Продається 2 кім квартира 60 кв. м у ЖК Дружній Двір с. Солонка
Продається 2 кім квартира 60 кв. м у ЖК Дружній Двір с. Солонка Львівська область, Солонка
46 000 $
767 $ за м²
2-кімн 60 м² 2/4 п

Продається 2 кімнатна квартира 60 / 48 / 12 кв. м у ЖК Дружній Двір у с. Солонка. Квартира знаходиться на 2- му поверсі у 4- ри поверховому будинку. Будинок знаходиться на стадії будівництва. Запланована здача 2кв. 2026 року. Зручна транспортна розвʼязка. До автобусної зупинки 15 хв пішки. На авто до ТРЦ King Cross Leopolis - 5 хв, до шкіл та садочків - 15 хв. Пишіть, телефонуйте. З радістю допоможемо вам придбати житло вашої мрії.

Продаж 2-кім. квартири в Солонці, 830$
Продаж 2-кім. квартири в Солонці, 830$ Львівська область, Солонка
64 640 $
851 $ за м²
2-кімн 76 м² 1/6 п

Пропонуємо до продажу простору 2-кімнатну квартиру в сучасному житловому комплексі "Дружній Двір" розташовану в селі Солонка. Загальна площа: 77,88 м². Житлова площа: 28,88 м². Кухня-студія: 24,42 м². 2 роздільні кімнати. Роздільний санвузол. Гардеробна. Великий коридор: 10,70 м². Квартира знаходиться в 1-й секції ЖК, уже збудована та готова до огляду. Є можливість перепланувати в 3-ох кімнатну! Це ідеальний варіант для тих, хто цінує комфорт і просторі приміщення. Зручне розташування, розвинута інфраструктура.

Продаж 2 кімнатна квартира Новобудова Солонка
Продаж 2 кімнатна квартира Новобудова Солонка Львівська область, Солонка
100 000 $
1 493 $ за м²
2-кімн 67 м² 2/3 п

Продам 2-кімнатну квартиру в новобудові, ЖК “Пори Року”, с. Солонка, вул. Пилипа Орлика. Поверх: 2-й з 3. Загальна площа: 67 кв. м. Кімнати: роздільні. Квартира продається з меблями та побутовою технікою. Квартира світла та простора, сучасний ремонт. Новобудова, тихий та затишний район. Терміновий продаж.

2-кімнатна квартира у ЖК на Рубчака, Солонка |Від забудовника КарпатБуд
2-кімнатна квартира у ЖК на Рубчака, Солонка |Від забудовника КарпатБуд Львівська область, Солонка
54 500 $
908 $ за м²
2-кімн 60 м² 1/5 п

2-кімнатна квартира у ЖК на Рубчака, Солонка | Від забудовника КарпатБуд Ціна: без комісії для покупця Площа: 60 м² • Поверх: 1/5 Здача: кінець 2025 року Планування 2 ізольовані кімнати • 2 санвузли • зручне зонування простору Характеристики цегляне будівництво утеплення пінополістиролом (пінопласт) автономне опалення (в будинку) гостьовий паркінг Телефонуйте - розповім деталі та організую перегляд. Зручна локація, надійний забудовник і вигідна ціна на старті будівництва.

Продаж 2 кім. квартира 60 м2, ЖК Дружній Двір, с. Солонка
Продаж 2 кім. квартира 60 м2, ЖК Дружній Двір, с. Солонка Львівська область, Солонка
45 000 $
750 $ за м²
2-кімн 60 м² 5/5 п

ПРОПОЗИЦІЯ БЕЗ КОМІСІЇ ДЛЯ ПОКУПЦЯ! Пропонується для продажу 2 кім. квартира, площею - 60 м2 у ЖК Дружній Двір. Квартира розташована на 5-ому поверсі 5-яти поверхового будинку. Адреса - с. Солонка, вул. Володимира Мономаха. Здача планується кінець 2026 року. Будинок здається поштукатуреним, залита стяжка, встановлені вхідні двері та металопластикові вікна, проведені повністю всі комунікації. Прибудинкова територія буде облаштована місткою наземною стоянкою, дитячими та спорт майданчиками, штучним футбольним полем. Гарне розташування, хороша локація. Зручна транспортна розв'язка, до найближчої автобусної зупинки - 15 хв пішки. На авто до найближчого ТРЦ King Cross Leopolis - 5 хв, до шкіл та садочків - 15 хв. Можливе розтермінування до завершення будівництва.

Продаж 2 кім. квартира 55 м² ЖК Дружній Двір вул Мономаха с. Солонка
Продаж 2 кім. квартира 55 м² ЖК Дружній Двір вул Мономаха с. Солонка Львівська область, Солонка
41 250 $
750 $ за м²
2-кімн 55 м² 2/5 п

БЕЗ КОМІСІЇ ДЛЯ ПОКУПЦЯ! 750$ за м2 Можливе розтермінування Продаж двокімнатної квартири у сучасній новобудові - ЖК Дружній Двір. Забудовник «СОЛЖИТЛОБУД». Адреса - с. Солонка, вул. Володимира Мономаха. Здача будинку 4-ий квартал 2026 року. Площа 55 м² (1 секція ) Знаходиться на 2-ому поверсі 5-ти поверхового будинку. Планування : кухня, дві спальні, коридор, санвузол. Містка наземна стоянка, енергозберігаючі МПВ, закритий внутрішній двір з різними видами ігрових зон для дітей. Є багато інших варіантів однокім та двокім. За деталями телефонуйте

Двокімнатна квартира
Двокімнатна квартира Львівська область, Солонка
120 000 $
1 739 $ за м²
2-кімн 69 м² 4/5 п

Продається затишна 2-кімнатна дворівнева квартира з якісним ремонтом та зручним плануванням - кухня-студія + дві спальні + санвузол ( розміщення на Гугл карті, друге та третє фото в галереї) Особливості квартири: • Дворівневе планування - зручний розподіл на зону відпочинку та робочу/дитячу зону. • Сучасна кухня з великою кількістю шаф для зберігання та виходом на балкон. • Простора вітальня з великими вікнами та гарним природним освітленням. • Дві окремі спальні на другому рівні, у тому числі дитяча з мансардними вікнами. • Санвузол з ванною, облицьований якісною плиткою. • Світлий ламінаційний паркет, натуральні дерев'яні сходи, нові меблі. Додатково: • Індивідуальне опалення (сучасний котел). • Вбудовані шафи-купе. • Балкон з панорамним видом. • Велике повноцінне горише з ремонтом. • Підвал у власності квартири. • Район тихий та спокійний, поруч школа, садочок, магазини та громадський транспорт. • Будинок повністю заселений, відсутність ремонтний робіт і шуму. Ця квартира підійде для сім'ї з дітьми або тих, хто цінує комфорт і простір. Заїжджай та живи! Телефонуйте для перегляду - квартира чекає на нових власників!

Продам 2-кімнатну квартиру в ЖК
Продам 2-кімнатну квартиру в ЖК "Пори Року", с. Солонка Львівська область, Солонка
64 000 $
1 032 $ за м²
2-кімн 62 м² 2/3 п

Адреса: с. Солонка, вул. П. Орлика Житловий комплекс: "Пори Року" Будинок на етапі здачі - завершуються внутрішні та зовнішні роботи Загальна площа: 62,89 м² Додатково: комора 5 м² (цокольне приміщення) Є готовий дизайн-проєкт - не потрібно витрачати час на планування Поверх: 2 з 3 Ціна: 64 000 $ Переваги: - Зручне розташування - Малоквартирний, теплий будинок - Ідеальний варіант для проживання або інвестиції Дзвоніть або пишіть - відповім на всі запитання та організую перегляд. Telegram канал: Realestatelvivrent

Продаж 2 х кв в новобудові «Карпатбуд» Солонка Львів!
Продаж 2 х кв в новобудові «Карпатбуд» Солонка Львів! Львівська область, Солонка
50 000 $
943 $ за м²
2-кімн 53 м² 2/5 п

Продаж просторої 2 х К квартири в новобудові! Солонка, 2 км до Ашан на вул Стрийська! Ідеальний, прямий доїзд, будинок знаходиться в одній зупинці від Ашан і Епіцентр на вул. Стрийська Львів! Будинок збудовано. Перевірений забудовник «Карпатбуд»! Збудовано з червоної цегли, кожна квартира має опалення від свого газового котла, який входить в вартість квартири! загальна площа квартири 53,75м2! Просторе планування квартири! 2 спальні, 2 санвузла, кухня - їдальня з виходом на засклений балкон ( можна зробити робочу зону на балконі), коридор квадратної форми, де вдало розміститься гардеробна! Гостьовий паркінг всередині двору! Поруч з будинком бізнес центр, магазини, зупинка транспорту, школа і садочок! Ця квартира гарна інвестиція для себе або здачі в оренду, по поки дуже ліквідній ціні! Маємо відеоогляд квартири! Дзвоніть, маємо кілька варіантів квартир в цьому і інших новобудовах Солонки!

Продаж просторої 2кім. квартири в новобудові вул. Стрийська (Солонка)
Продаж просторої 2кім. квартири в новобудові вул. Стрийська (Солонка) Львівська область, Солонка
83 000 $
1 137 $ за м²
2-кімн 73 м² 6/7 п

Продаж 2 кім квартири з виконаним ремонтом на 80%, вул. Стрийська Продається 2 кім квартира в новобудові, Ашан 2 км ! Індивідуальне газове опалення, цегла. Технічні характеристики: загальна площа - 72.9 кв. м, 2 балкони засклені, роздільний санвузол. Великі просторі підїзди, працює ліфт. До квартири закріплений підвал з документами. Також є паркомісце вїзд через шлагбаум. Повністю зроблена електрика і сантехніка! Також по всіх кімнатах, коридорі і балконах зроблені стіни і стеля, все нове з якісних матеріалів. Встановлені радіатори, міжкімнатні двері, є також кондиціонер. Залишилося лише підлога і плитка у санвузлах і можна заїжджати! Це дуже вигідна пропозиція квартири в новобудові, де ціна за м2 - 1100$! Все у пішій доступності: школа, садок, магазини, зупинка, ЦНАП, амбулаторія, ресторан і т. д. Локація с. Солонка (центр) / вул. Стрийська, до Ашану 5 хв. Телефонуйте!

Продаж 2-кім. квартири в Солонці (або обмін )
Продаж 2-кім. квартири в Солонці (або обмін ) Львівська область, Солонка
93 000 $
1 550 $ за м²
2-кімн 60 м² 3/3 п

Продаж 2 кім квартири у Солонці/ Кінг Крос/Стрийська Квартира з ремонтом повністю обладнана меблями і технікою. Все продумано готово, все нове, заходь і живи. Індивідуальне газове опалення. Цегляний будинок Панорамні вікна. Великий засклений балкон Окрема гардеробна Над квартирою є ще горище 20 м2 У пішій доступності знаходиться зупинка громадського транспорту, школа, дитсадок, аптека, амбулаторія, ЦНАП, відділення Нової пошти. Телефонуйте! Найкраща пропозиція 2 кім квартири в новобудові !

Відкрити карту Карта