Объект UA-1310611727 не найден. Возможно, он удалён по истечению срока давности, либо находится в процессе публикации.

Центр. ЖК Французький Квартал 2. Квартира 81м2. З ремонтом.
Центр. ЖК Французький Квартал 2. Квартира 81м2. З ремонтом. Київська область, Київ, Печерський
350 000 $
4 375 $ за м²
2-кімн 80 м² 5/9 п

Центр. ЖК Французький Квартал 2. Печерський район, Палац Украна, трц Ocean plaza Квартира 81м2. З ремонтом. Трикімнатна, двостороння квартира знаходиться в Клубному будинку, 9 поверхової будівлі (на поверсі 4 квартири), що робить проживання максимально комфортним у самому центрі жк. * Дві спальні * Кухня - студія * Два санвузли (ванна) * Два балкони * Гардеробна кімната * Підігрів підлог * Кондиціювання * Всі меблі, сантехніка від провідних виробників. * Відео спостереження вхід у квартиру * Встановлено фільтр очищення води у квартиру Вікна квартири виходять на тихий внутрішній двір та Тріумфальну Арку. французский квартал, рядом новопечерские липки, бульвар фонтанов #3 1 5 9 1 7 3 4 3 3 7 9

Продаж 2-х кімн Бажана Міколи 24/1, Позняки, Осокорки
Продаж 2-х кімн Бажана Міколи 24/1, Позняки, Осокорки Київська область, Київ, Дарницький
85 000 $
1 090 $ за м²
2-кімн 78 м² 4/16 п

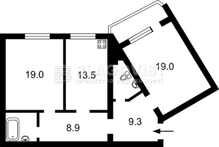
Пропонується квартира на Позняках. Закритий двір із дитячим майданчиком, зручний 4-й поверх, ОСББ. Планування: просторий хол, дві окремі кімнати по 19м2, кухня-вітальня 13,5м2, засклена лоджія, роздільний санвузол. Ремонт в квартирі потребує косметичного оновлення. Інфраструктура та локація: метро Позняки та Харківська - 7 хвилин пішки, поруч ТРЦ “Піраміда”, Фора, Епіцентр, METRO, школи, дитячі садочки, поліклініки, прогулянкові зони та озера.

Продаж 1к квартири 45 кв. м на вул. Причальна 10 • ID 33828268
Продаж 1к квартири 45 кв. м на вул. Причальна 10 • ID 33828268 Причальна вулиця, 10, район Дарницький, Київ, вул. Причальна 10 • ID 33828268
90 000 $
2 000 $ за м²
1-кімн 45 м² 2/26 п

Продаж квартири з косметичним ремонтом у новому будинку Пропонується до продажу квартира у сучасному житловому фонді (після 2021 року побудови) Стан та виконані роботи: косметичний ремонт повністю виконаний монтаж електрики нова сантехніка Rehau всі стіни оштукатурені встановлена інсталяція Grohe наразі триває етап монтажу стель Документи: право власності отримано готова до швидкої угоди Переваги: житловий будинок, збудований після 2021 року ідеальний поверх комфортно під час відключень електроенергії вікна виходять у тихий двір з деревами світла та затишна атмосфера Квартира чудово підійде для тих, хто хоче якісну основу ремонту без необхідності починати з нуля.

Продаж 2к квартири 99 кв. м на вул. Андрія Верхогляда 3 • ID 33828693
Продаж 2к квартири 99 кв. м на вул. Андрія Верхогляда 3 • ID 33828693 вулиця Андрія Верхогляда, 3, мікрорайон Чорна Гора, район Печерський, Київ, метро Звіринецька (Дружби народів), вул. Андрія Верхогляда 3 • ID 33828693
354 000 $
3 576 $ за м²
2-кімн 99 м² 14/18 п

Простора 2-х кімнатна квартира, окрема спальня з власною ванною кімнатою, кабінет або дитяча кімната, кухня студія з зоною відпочинку, гостьовий сан. вузол з душем, відкритий балкон. Вбудована кухня з всією необхідною побутовою технікою. Будинок з підземним паркінгом, поруч зелений сквер. На території вся необхідна інфраструктура для комфортного та безпечного життя! Всі варианти продажу квартир на Новопечерських Липках, телефонуйте!

Продаж 1к квартири 67 кв. м на вул. Академіка Заболотного 1А • ID 33828593
Продаж 1к квартири 67 кв. м на вул. Академіка Заболотного 1А • ID 33828593 Академіка Заболотного вулиця, 1А, мікрорайон Теремки-2, район Голосіївський, Київ, метро Іподром, вул. Академіка Заболотного 1А • ID 33828593
151 800 $
2 266 $ за м²
1-кімн 67 м² 33/34 п

Продаж дизайнерської квартири в ЖК Метрополіс по вул. Академіка Заболотного, 1, Голосіївський район. Площа квартири 66, 21 м2. Поверх 33. Функціональне планування: - кухня - вітальня з обідньою зоною - майстер-спальня - гостьовий санвузол - гардеробна кімната Квартира укоплектована всією необхідною технікою та меблями. Встановлений котел для індивідуального опалення, кондиціонери в кожній кімнаті, бойлер. У будинку : дизайнерське лоббі з зоною відпочинку, косьєрж-сервіс, цілодобова охорона та відеоспостереження, 4 швидкісні безшумні ліфти Mizui. Закрита охоронювана територія. ЖК Метрополіс - сучасний комплекс бізнес-класу від надійного забудовника DIM. Комплекс будується за концепцією «місто в місті». Має власний ландшафтний парк 2 Га, дошкільний навчальний заклад, дитячі та спортивні майданчики, бігові та велодоріжки, підземний та гостьовий паркінг. На перших поверхах будинків є все необхідне для комфортного життя: від продуктового супермаркету до фітнес-клубу. Також на території передбачені зона барбекю, кінотеатр та фонтани. Комплекс розташований в унікальній точці мегаполісу, на перетині урбаністичного Києва та розмаїтої природи Голосіївського лісу. Відмінна транспортна розв'язка, до метро Теремки та Іподром - 5-7 хв пішки. До центру столиці - 20 хвилин на автомобілі. В квартирі проживають орендарі. Перегляди за попередньою домовленістю!

3 кімнатна квартира Заболотного Голосієво Феофанія ВДНГ м. Теремки
3 кімнатна квартира Заболотного Голосієво Феофанія ВДНГ м. Теремки Київська область, Київ, Голосіївський
85 000 $
1 076 $ за м²
3-кімн 79 м² 2/10 п

Продається дім мрії. Три кімнати - кожна зі своєю історією. Де одна дитяча виростила першокласника, друга стала робочим кабінетом, а в третій ночували друзі після свят. Вікна дивляться у зелений двір, кухня пахне пирогами, а недільні ранки починаються з кави й парку через дорогу. Діти подорослішали. Життя змінилось. І тепер квартира стала надто великою для двох, але ідеальною для нової родини, яка привезе сюди галас, сміх та нові сценарії щастя. Цегляний будинок - теплий взимку та прохолодний влітку, надійний, із характером. Ремонт робився 5 років. Тут не потрібно думати "а ще скільки доведеться вкладати?" Тут можна просто занести квіти на підвіконня й насолоджуватись життям. Локація для тих, хто любить місто, але не хоче жити у його метушні: три парки довкола: Феофанія, ВДНГ, Голосіївський. Тут пахне соснами, тут легко дихається, тут можна гуляти босоніж по траві, годувати білок, кататись на велосипедах. А якщо потрібно до центру - метро Теремки за 15 хвилин неквапної ходи, з кавою й думками, з музикою чи просто тишею. Ця квартира не просто квадратні метри. Це простір, який хоче історію. Нову. Зі сміхом дітей на кухні. З ялинкою біля вікна взимку. З теплими вечорами на дивані, де матиме значення не площа, а відчуття дому. І є один особливий бонус, про який не пишуть в текстах. Його можна відчути лише всередині. На перегляді. Наживо. Телефонуйте, пишіть! Перегляд в зручний для вас час разом з експертом компанії 7 floor. Номер оголошення на сайті компанії: SF-3-250-537-LX.

Супер Цена Продажа Квартиры ЖК Новая Англия ул Максимовича
Супер Цена Продажа Квартиры ЖК Новая Англия ул Максимовича Київська область, Київ, Голосіївський
101 000 $
2 463 $ за м²
2-кімн 41 м² 17/19 п

Супер Ціна Продаж Квартири з Ремонтом ЖК Нова Англія вул. Максимовича Пропонується на Продаж 2-кімнатна квартира (41м2), в ЖК «Нова Англія», за адресою: вул. Максимовича 26-Г, Голосіївський район. Є відеоогляд. Планування: - Кухня-вітальня - Окрема спальня - Санвузол (ванна та душова) Є всі необхідні меблі та техніка. До метро «Васильківська» 5 хвилин пішки. До центру 10 хвилин на машині. Сам будинок знаходиться під цілодобовою охороною 24/7. Можна зняти місце в підземному паркінгу за окрему вартість. Чудове місце розташування і відмінно розвинена інфраструктура.

6 к квартира вул Володимира Івасюка 8 ЖК Оазис Оболонський р-н
6 к квартира вул Володимира Івасюка 8 ЖК Оазис Оболонський р-н Київська область, Київ, Оболонський
1 190 000 $
3 606 $ за м²
5-кімн 330 м² 11/12 п

Пропонується до продажу унікальний обʼєкт - видова квартира на Оболонській набережній з терасою з панорамним видом на Дніпро і паркову зону. Величезна окрема кухня повністю укомплектована італійськими меблями та швейцарською побутовою технікою ZUG. Дуже коштовне оздоблення - всі поверхні натуральний мрамор, дубовий паркет, шпоновані стінові панелі Poliform. Вся сантехніка Gessi. Повноцінна система розумного будинку на протоколі KNX з управлінням всією інфраструктурою квартири - світло, опалення, кондиціювання та вентиляції. Канальна система система вентиляції та кондиціонування DAIKIN. Потужна система водопідготовки та водоочистки.

Супер ціна ! 1 кімнатна ЖК Едельвейс, Єдельвейс, Edelweiss House
Супер ціна ! 1 кімнатна ЖК Едельвейс, Єдельвейс, Edelweiss House Київська область, Київ, Печерський
111 000 $
1 982 $ за м²
1-кімн 56 м² 8/24 п

#26699 Однокімнатна 57 метрів, кухня 27, поверх 8 Розташування житлового комплексу Edelweiss House поєднує у собі зручну транспортну розв'язку Південного моста та сусідство ботанічного саду ім. Гришко. З вікон буде відкриватися панорамний вид на Дніпро, ботанічний сад, міст та інші пам'ятки Києва. Зовсім біля будинку супермаркет «Фора», а до супермаркету «Велика Кишеня» 10 хвилин пішки. Доїхати до «Сільпо», «Варуса», гіпермаркету METRO та «Деміївського» ринку можна на авто за 10-15 хвилин. Для маленьких дітей на території комплексу відкриють приватний дитячий садок. Також поблизу лінгвістичний дитячий садок Mon Cheri та приватний дитячий садок «Монтессорі на Липках», а до дитячих садків №152, №424, №458 - 5 хвилин на авто. До школи №5 - 5 хвилин пішки, до «Новопечерської» школи - 15 хвилин, до шкіл №88 та №133 - 5-7 хвилин на авто. Три хвилини пішої ходи до фітнес-клубу Sportlife з класичним тренажерним залом, басейном та аквазоною, груповими програмами та дитячим фітнесом. За десять хвилин можна дійти до спорткомплексу НТУ, де є поля для міні-футболу, зал боротьби, басейн, баскетбольні майданчики та тренажери. Житловий комплекс "Edelweisse House" - це не про квартиру, а про спосіб життя!

Квартира, 1к. Без ремонту. Науки, 58в, Мишоловка, Голосіївський район
Квартира, 1к. Без ремонту. Науки, 58в, Мишоловка, Голосіївський район Київська область, Київ, Голосіївський
64 500 $
1 536 $ за м²
1-кімн 42 м² 5/23 п

Видова квартира у новому будинку комфорт-класу! Сучасне житло з потенціалом - у престижному районі столиці! Продається 1-кімнатна квартира на 5 поверсі 23-поверхового монолітно-каркасного будинку по проспекту Науки, 58в - у Голосіївському районі Києва. Оселя видова, розташована на зручному поверсі, з вікнами, що відкривають перспективу на міський ландшафт. Квартира після будівельників - виконано стяжку, встановлено всі необхідні лічильники. Це чудова можливість реалізувати власний дизайн-проєкт, адаптувавши простір під особисті потреби. Будинок комфорт-класу, введений в експлуатацію у 2021 році, повністю заселений, з власною котельнею - тепло та стабільність гарантовані. На першому поверсі - гостьовий санвузол і кімната для зберігання дитячих візків. У під'їзді працюють три ліфти, територія закрита для сторонніх авто, є охорона, дитячий майданчик - усе створено для безпеки та зручності мешканців. У будинку функціонує дитячий садок і супермаркет, що забезпечує базові потреби без виходу за межі комплексу. До центру міста - всього 5 хвилин на автомобілі, поруч станції метро «Деміївська», «Либідська», «Олімпійська», «Вокзальна» - зручне транспортне сполучення для щоденних поїздок. Це чудова можливість придбати квартиру у новому будинку з усіма перевагами сучасного комплексу та потенціалом для створення власного ідеального простору. Можливий обмін на вашу нерухомість. Усі подробиці про квартиру та про її придбання за телефоном. Реальна квартира! Телефонуйте у будь-який час! Ми завжди раді вам допомогти! Надаємо повний спектр послуг з купівлі та продажу квартир та будинків. Великий досвід допомоги по купівлі квартир за державними програмами: 1) Є-оселя 2) Житло для ВПО та військових (постанова 280) 3) Сертифікат на зруйноване житло З нами безпечно, якісно, вигідно!

БЕЗ% Унікальна квартира, Франка 4Б, ЖК Ambassador House, Золоті ворота
БЕЗ% Унікальна квартира, Франка 4Б, ЖК Ambassador House, Золоті ворота Київська область, Київ, Шевченківський
2 250 000 $
8 964 $ за м²
4-кімн 251 м² 10/12 п

Унікальна квартира з панорамними краєвидами на Софійський та Володимирський собори Пропонується до продажу простора 4-кімнатна квартира площею 251 м² у самому серці історичного Києва. З усіх кімнат відкриваються неперевершені краєвиди на Софіївський та Володимирський собори. Основна інформація: • Загальна площа: 251 м² • Повністю мебльована меблями та технікою • Поверх/поверховість - 10/12 • Балкони: 1 Планування: • Простора вітальня з панорамними вікнами • Кухня з повним набором техніки: холодильник, морозильна камера, винний холодильник, пароварка, підігрів посуду тощо • 2 спальні мають власні гардеробні кімнати • Кабінет/спальня з індивідуальним санвузлом • 3 ванні кімнати з якісною сантехнікою • Господарське приміщення із сушильною шафою • 2 балкони з чудовими видами Особливості: • Інтер'єр у мінімалістичному сучасному стилі, виконаний з використанням високоякісних матеріалів • Іноземні меблі та техніка преміум-класу • Підлога з натурального дерева у всіх кімнатах • Підігрів підлоги в кухні, ванних і коридорах • Центральне кондиціонування • Система “мультірум” та домашній кінотеатр • Теплові лічильники • Підземний паркінг Безпека та комфорт: • Цілодобова охорона та відеоспостереження • Тихі, респектабельні сусіди • Охайна прибудинкова територія • В будинку - якісна звукоізоляція та нові комунікації 2 паркомісця в підземному паркінгу в ціні Ця квартира - ідеальне поєднання розкоші, стилю та комфорту у самому центрі столиці. Перегляди в зручний час, з повагою Мірковська Ірина Без комісії

Продам 3 комнатную Героев Сталинграда (Ивасюка) 24, набережная Днепра
Продам 3 комнатную Героев Сталинграда (Ивасюка) 24, набережная Днепра Київська область, Київ, Оболонський
280 000 $
1 931 $ за м²
3-кімн 145 м² 8/9 п

3р, 8-й поверх, площа: 145,0\84,0\23,4; Квартира знаходиться в одному з престижних домів на Оболонських Липках, з приємним краєвидом на набережну Дніпра, кухня-студіо, 3 спальні кімнати, 2 санітарні вузли, місткий хол, квартира мебльована, є вся необхідна побутова техніка, 4 кондиціонери, бойлер, посудомийна машина, є консьєрж, дві квартири на поверсі, паркінг і вільна парковка у дворі, вийти з двору і ви на Оболонській набережній, супермаркети, кафе, школи, дитячі садки, поліклініка, ст. М "Мінська"- 7 хвилин

Без комісії! Продаж 2 кімнатна квартира вул. Краківська 27/метро Черніг
Без комісії! Продаж 2 кімнатна квартира вул. Краківська 27/метро Черніг Київська область, Київ, Дніпровський
118 000 $
1 735 $ за м²
2-кімн 68 м² 21/26 п

БЕЗ КОМІСІЇ для покупця! В продажу ексклюзивна новинка! Панорамна 2-кімнатна квартира з дизайнерським ремонтом. Розташована в максимально зручній локації біля метро Чернігівська на вул. Краківська 27. Сучасний монолітно-каокасний будинок з консьєржем та доглянутою прибудинкової територією. Квартира видова з панорамою на місто та правий берег. В квартирі виконано дизайнерський ремонт з якісних матеріалів. Укомплектована меблями і технікою Samsung. Має зручне функціональне планування: дві окремі кімнати з виходом на балкон, простора кухня - вітальня, окремий санвузол, гардероба кімнатна і просторий передпокій. На будинку встановлено генератор, при відключенні електроенергії працють ліфти, водопостачання і теплопостачання. Зручна інфраструктура поряд з будинком - магазини, кав'ярні, школи, садочки, ТРЦ Проспект. Поряд в 5 хвилинах пішки метро Чернігівська і зручна транспортна розв'язка. Ідеальний варіант для життя в чудовому місці. Телефонуйте! Перегляд в зручний для Вас час! ID: 92154

3 кімн. квартира ЖК Причал №8 Євідновлення, Єоселя, Сертифікат. ГЕНЕРАТОР
3 кімн. квартира ЖК Причал №8 Євідновлення, Єоселя, Сертифікат. ГЕНЕРАТОР Київська область, Київ, Дарницький
91 000 $
1 083 $ за м²
3-кімн 84 м² 10/24 п

Простора 3-кімнатна квартира в ЖК «Причал 8» - місце, де комфорт зустрічається з відпочинком біля води. Адреса: вул. Гліба Бабіча, 8Б (Канальна, 8Б) Площа: 84,9 м² Житлова: 46,3 м² Кухня: 14,9 м² Поверх: 10 із 24 Про квартиру: Світла й простора оселя з продуманим плануванням - три роздільні кімнати, велика кухня з балконом, два санвузли та зручний передпокій. Ідеально підійде для сімейного життя, де кожен матиме свій куточок затишку. Про комплекс: ЖК «Причал 8» - це сучасний комфорт-клас із власною концепцією та неповторною атмосферою. На території - дитячі та спортивні майданчики, зелені зони для прогулянок і відпочинку. Лише за 100 метрів розташоване мальовниче озеро з доглянутим пляжем, де можна насолоджуватися природою після робочого дня. Інфраструктура: Поруч усе необхідне для життя - торговельно-розважальні центри River Mall, Rive Gauche, Silver Breeze, школи, дитячі садочки, фітнес-клуби, супермаркети, поштові відділення. Зручна транспортна розв'язка дозволяє швидко дістатися будь-якої точки міста. Будинок введений в експлуатацію, документи готові. Генератор на всі будинки. Автономне опалення. Ця квартира - ідеальне поєднання сучасного стилю, комфорту та природи поруч із домом. Ви відчуєте себе вдома з першої хвилини. Запрошую на перегляд у зручний для вас час. Є відеоогляд. З повагою, Людмила Усенко

Продам Однакімнатну Соломії Крушельницької, 7 хвилин метро Позняки
Продам Однакімнатну Соломії Крушельницької, 7 хвилин метро Позняки Київська область, Київ, Дарницький
58 000 $
1 318 $ за м²
1-кімн 44 м² 14/18 п

Продам світлу з видом на озеро Однокімнатна квартиру Дарницький район. Вул. Соломії Крушельницької 7, 7 хвилин метро Позняки, 14/18 поверхового будинку. 44/18/12. Великий роздільний санвузол, дві великі лоджії на кімнату та кухню. Засклені Меблі залишаються за домовленістю. Поряд супермаркети як продуктові, так і будівельний. Гарна квартира як для житла так і для оренди.

Продаж однокімнатної квартири в новому будинку.
Продаж однокімнатної квартири в новому будинку. Київська область, Київ, Дніпровський
33 500 $
1 081 $ за м²
1-кімн 31 м² 4/4 п

Продаж однокімнатної квартири в новому будинку. Будинок розташований у Дніпровському районі Києва на вулиці Профспілковій, 5А. Поруч - усе для комфортного життя: супермаркети (Фора, АТБ), поліклініка, бювет, парк, Дарницький вокзал, ринок, відділення пошти, школи та дитячі садки. Зручне транспортне сполучення (автобусне і залізничне), лише 3 км до метро. Про будинок: 40 смарт-квартир на 4 поверхах, 2 під'їзди, по 5 квартир на поверсі. Закрита прибудинкова територія для вашої безпеки. Дитячий майданчик і паркінг на території (можливість придбання паркомісця). Технічні характеристики: Фундамент: стрічковий збірно-монолітний із залізобетонних блоків з утепленням. Стіни: кладка з повнотілої керамічної цегли (без внутрішньої штукатурки). Перекриття: збірно-монолітні з круглопустотних плит. Фасад: комбіноване утеплення (пінополістирол та мінвата, 100 мм), оздоблення фасадною фарбою. Вікна: металопластикові з п'ятикамерного профілю, енергозберігаючі двокамерні склопакети з фурнітурою MACO. Дах: металочерепиця, утеплення базальтовою ватою (200 мм).

Продаж світло двокімнатної квартири
Продаж світло двокімнатної квартири Київська область, Київ, Дарницький
49 000 $
925 $ за м²
2-кімн 53 м² 10/16 п

Продаж світло двокімнатної квартири, за адресою вулиця Тростянецька, будинок 47. Загальна площа квартири 53 м2, житлова - 27, 4 м2, кухня - 8, 2 м2. Будинок цегляний, санвузол роздільний. Великий балкон. У будинку два ліфти вантажний і пасажирський. Метро Харківська в 5 хвилинах на автомобілі. Інфраструктура: дитячі сади, школи, супермаркети, лікарня, пологовий будинок, поліклініка, парк Партизанської Слави, пошта, поліція, ресторани. Прямий продаж. Для покупців досить пристойна знижка! Зареєстрованих малолітніх і неповнолітніх дітей немає.

Продаж 4 кімнатної квартири вул. Червоної Калини 20 Троєщина ТОРГ ключі
Продаж 4 кімнатної квартири вул. Червоної Калини 20 Троєщина ТОРГ ключі Київська область, Київ, Деснянський
64 000 €
627 € за м²
4-кімн 102 м² 2/9 п

Продаж квартири вул. Червоної калини (Маяковського) 20. Троєщина Окремі 4 кімнати Три балкони Роздільний с/в Квартира двостороння Готові до швидкої угоди Ключі на руках Торг присутній

Продам 1 кімнатну ЖК ПОДІЛ ПЛАЗА
Продам 1 кімнатну ЖК ПОДІЛ ПЛАЗА Київська область, Київ, Шевченківський
180 000 $
3 158 $ за м²
1-кімн 57 м² 20/25 п

БЕЗ Комісії! У продажу 1 кімнатна квартира з ремонтом 57м2 у житловому комплексі "Podil Plaza & Residence". Вид на Андріївську церкву. Квартира в 1секції, 20 поверх. ЖК "Podil Plaza & Residence" - це будинок бізнес класу розташований в історичному центрі Подолу, поряд станція метро Контрактова площа (7 хвилин пішки). Будинок збудований за монолітно-каркасною технологією. Територія, що охороняється, зі своїм внутрішнім двором, де доступ тільки для мешканців будинку. У будинку буде все, що необхідно для комфортного життя: торгово-офісні приміщення, кафе та ресторани, магазини брендового одягу, фітнес-клуб, СПА-комплекс, підземний паркінг. В будинку своя котельня. продаж по переуступкі без комісії для покупця.

«Патріотика» Будинок «Чигирин» Софії Русової
«Патріотика» Будинок «Чигирин» Софії Русової Київська область, Київ, Дарницький
17 000 $
459 $ за м²
1-кімн 37 м² 10/25 п

Будинок #34 «Чигирин». Вікна на захід. Збудовано 19 поверхів. Створений кооператив з добудови. Перепоступка.

Відкрити карту Карта