Без % Продаж 1 кімн. квартири Хотів/Чабани/вул., Партизанська
Без % Продаж 1 кімн. квартири Хотів/Чабани/вул., Партизанська Київська область, Хотів
30 000 $
811 $ за м²
1-кімн 37 м² 5/5 п

Без Комісії для покупця Продаж 1 кімнатної квартири Хотів. Зверніть увагу квартира має високі стелі, та другий ярус де можна розмістити додаткове спальне місце, або наприклад кабінет. Також, зроблено стяжку підлоги, змонтована тепла водяна підлога, працює від котла, частково розведена електрика, поштукатурені стіни. Індивідуальне газове опалення, є навіть можливість змонтувати сонячну станцію на даху та бак з водою на випадок відключень, як це зробив сусід. Будинок знаходиться в самому центрі с Хотів, тут є вся корисна інфраструктура, нова пошта, продуктові магазини, державні школа та садочок, до станції метро Теремки буквально 10 хвилин. Також для прогулянок поруч парк Феофанія, озера. ЖК з закритою територією, достатньо місць для паркування, тут тихо і спокійно, немає шуму доріг поїздів чи чогось подібного. ID: 80383м

1-кімнатна квартира в Хотові на 1 поверсі
1-кімнатна квартира в Хотові на 1 поверсі Київська область, Хотів
42 000 $
1 235 $ за м²
1-кімн 34 м² 1/4 п

Продаж 1-кімнатної квартири | 34 м² | с. Хотів с. Хотів, вул. Промислова, 1 Будинок №14 1-кімнатна квартира 34 м² на 1 поверсі у новому будинку. Стан квартири, внутрішнє оздоблення: • штукатурка стін • стяжка підлоги • встановлений котел Зручне планування, підходить для проживання або здачі в оренду. Ціна: 42 000 $ (включно з податками та оформленням під ключ)

1-кім. 36,4 квартири з гардеробною ЖК Новий <a href='/newbuilding/7539/view/zk-hotiv'>Хотів</a> м. Теремки 6км
1-кім. 36,4 квартири з гардеробною ЖК Новий Хотів м. Теремки 6км Київська область, Хотів
1 492 400 ₴
41 456 ₴ за м²
1-кімн 36 м² 5/7 п

Продаж 1-кімнатної просторої квартири з гардеробною кімнатою в ЖК Новий Хотів Локація: Хотів (6 км. Від Києва), вул. Шевченка 85 Поверх: 5/7 Площа: 36,4 м² Кімната: 15,3 м² Кухня: простора 9,4 м². Введення в експлуатацію 1кв. 2026 року Переваги квартири: Квартири будуються з червоної повнотілої цегли, товщина стін 380 мм. Висота стелі - 2,7 м. кв. Автономне газове опалення (встановлюється двухконтурний котел від забудовника і розводка опалення до радіаторів). Двері - металеві з МДФ - накладками. Вікна - 5 камерний профіль, двокамерний склопакет. Підлога - стяжка (окрім санвузла). Стіни без оздоблення. Утеплення - пінополістерол 100мм, мінеральна вата 100мм. 7-поверхова забудова. Ліфти - пасажирські. Лічильники на всі комунікації: світло, газ, вода Комунікації: Центральне водопостачання та каналізація. Газ, електрика. Є Резервне живлення (при вимиканні світла працює світло - в місцях загального користування, вода функціонує) Поряд в пішій доступності 2 хв: Приватна школа «Без меж», дитячий садок «Без меж», супермаркет THRASH!ТРАШ! », кафе, салони краси, дитячі майданчики, аптека, відділення Нової Пошти, банк, нотаріус. Маршрутні таксі: #729 ( від м. Либідська, через вул. Васильківську), #731 та #725 від м. ВДНГ (зупинка навпроти ВДНГ, в сторону виїзду з міста ). Кілька виїздів до м. Києва. (через Новосілки, Чабани, Феофінію, Столичне шоссе)

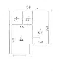
Продажа 1-комнатной квартиры 43 м², Партизанская ул., 1А
Продажа 1-комнатной квартиры 43 м², Партизанская ул., 1А Киевская обл., Киево-Святошинский район, с. Хотов, Партизанская ул., 1А
65 000 $
1 512 $ за м²
1-кімн 43 м² 2/5 п

Затишна та комфортна квартира в тихому передмісті! Пропонується до продажу затишна та простора 1-кімнатна квартира загальною площею 43 кв. м, розташована на комфортному 2-му поверсі 5-поверхового цегляного будинку за адресою: вулиця Партизанська, 1а. Це ідеальний варіант для тих, хто шукає тепле та світле житло в самому центрі селища Хотів! Планування квартири вирізняється особливим простором: велика кімната площею 20 кв. м та функціональна кухня 11,3 кв. м. Завдяки східній стороні помешкання наповнюється приємним сонячним світлом, створюючи особливу атмосферу затишку. Квартира перебуває у відмінному стані з якісним ремонтом та сантехнікою. Головною технічною перевагою є повна автономність встановлено індивідуальне газове опалення (двоконтурний котел), що дозволяє самостійно регулювати температуру та економити на комунальних платежах. Додатково утеплено балкон, який є повноцінною частиною житлового простору, встановлено кондиціонер, а стіни в загальному тамбурі також мають додаткову термоізоляцію. Локація на вулиці Партизанській це епіцентр комфортного життя в Хотові. Будинок розташований у затишному дворі з чудовими сусідами, проте вся необхідна інфраструктура знаходиться буквально під рукою. Безпосередньо в будинку працюють кавярні, кондитерські, стоматологія та салони краси. У пішій доступності розташовані супермаркети, ринок, амбулаторія, школа та дитячі садочки. Для відпочинку на природі всього за 1,5 км (близько 1520 хвилин пішки) знаходяться два мальовничі озера та знаменитий парк Феофанія. Транспортне сполучення зі столицею є надзвичайно зручним: власним авто до станції метро Теремки можна дістатися всього за 7 хвилин, також курсує регулярний громадський транспорт. Поруч розташовані Чабани, Новосілки та Лісники, що робить цю локацію стратегічно вигідною. Це готова до життя квартира в сучасному будинку, де поєднано заміський спокій та міську зручність! Можливий обмін на вашу нерухомість. Усі подробиці про квартиру та про її придбання за телефоном. Телефонуйте у будь-який час! Ми завжди раді вам допомогти! Надаємо повний спектр послуг з купівлі та продажу квартир та будинків. Великий досвід допомоги по купівлі квартир за державними програмами: 1) Є-оселя 2) Житло для ВПО та військових (постанова 280) 3) Сертифікат на зруйноване житло З нами безпечно, якісно, вигідно!

Продаж 1к квартири 43 кв. м на вул. Промислова 9, кв. 12
Продаж 1к квартири 43 кв. м на вул. Промислова 9, кв. 12 Київська область, Хотів
42 000 $
977 $ за м²
1-кімн 43 м² 2/10 п

Продаж 1 кімнатної квартири в Жк "Емоція" після будівельників, будинок здано в експлуатацію, можливо робити ремонт, висота стелі 2.80, індивідуальне газове опалення, закрита територія, дитяча площадка, зупинка транспорту до найближчого метро «Теремки», поруч супермаркет «Фора» ті інші заклади інфраструктури для якісного проживання за містом. Комісія 5%. Документам менше 3 років. Власник податок сплачує.

Інвестиція! 1-к квартира 35 м² у новому будинку
Інвестиція! 1-к квартира 35 м² у новому будинку Київська область, Хотів
30 300 $
866 $ за м²
1-кімн 35 м² 3/4 п

Продаж 1-кімнатної квартири 35,6 м² у новому сучасному будинку, передмістя Києва. Пропонується до продажу простора 1-кімнатна квартира площею 35,61 м² у новому малоповерховому будинку комфорт-класу. Зручне та функціональне планування: - кухня-вітальня - 16,16 м² - окрема спальня - 11,93 м² - санвузол - 3,91 м² - передпокій - 3,61 м² Квартира світла та правильної форми, що дозволяє легко організувати комфортний простір для життя. Якісне будівництво: - стіни з керамоблоку - утеплення мінеральною ватою - сучасні панорамні вікна - ліфт у будинку - передбачене укриття Переваги комплексу: - малоповерхова забудова - закрита територія - сучасний ландшафтний дизайн - дитячі та відпочинкові зони - зручні пішохідні алеї - комфортне та тихе передмістя поруч зі столицею Квартира підійде як для власного проживання, так і для інвестиції або здачі в оренду. Продаж від юридичної особи. Можливий продаж у розтермінування. 50% перший внесок на 1,5 роки. Податок покупця - лише 2%.

квартира 43м2 з другим поверхом Хотів, вул. Промислова 1-Л ЖК Емоція
квартира 43м2 з другим поверхом Хотів, вул. Промислова 1-Л ЖК Емоція Київська область, Хотів
53 000 $
1 233 $ за м²
1-кімн 43 м² 5/6 п

ЖК «Емоція», с. Хотів, Київська область ЖК «Емоція» - сучасний малоповерховий комплекс із: впорядкованою територією, охайними під'їздами, спокійною атмосферою заміського життя, близькістю до Києва та зручною транспортною доступністю 15-20 хв до Києва. Хотів - один із найбільш комфортних напрямків поруч із столицею, який поєднує природу, тишу та міську інфраструктуру. Пропонується до продажу простора 1-кімнатна квартира площею 43 м² з другим рівнем (антресоллю) 16 м², що створює відчуття повноцінного двоповерхового житла. Основні характеристики: • Загальна площа: 43 м² + 16 м² другий рівень • Поверх: 5 • Орієнтація вікон: схід (ранкове сонце, природне світло) • Формат: дворівнева квартира Переваги планування: Раціональне зонування дозволяє комфортно розділити простір: • перший рівень - кухня-вітальня, санвузол, зона відпочинку або роботи; • другий рівень (16 м²) - повноцінна спальня або приватний простір. Такий формат ідеально підходить для: • однієї людини або пари; • тих, хто працює з дому; • інвестиції під оренду. Східна сторона забезпечує м'яке ранкове сонячне світло, що наповнює квартиру теплом і затишком, не перегріваючи приміщення влітку. Вікна відкривають простір і створюють відчуття легкості та свободи. Кому підійде ця квартира • для життя з комфортом і відчуттям простору; • для тих, хто цінує нестандартні планування; • для інвесторів (високий попит на оренду компактних дворівневих квартир); • для поціновувачів стилю, світла та функціональності. Ця квартира - ідеальне поєднання сучасного формату, світла, простору та локації. Дворівневе планування додає статусу та зручності, а ЖК «Емоція» створює відчуття дому з першого кроку. В сусіднему будинку працюючий дитячій садочок та початкова школа з бомбосховищем. Ідеально під оренду! Чому це вигідна інвестиція Формат квартир з другим рівнем стабільно користується підвищеним попитом на ринку оренди. В орендарів така квартира сприймається як дві зони проживання, що дозволяє: - здавати дорожче за стандартну 1-кімнатну; - швидше знаходити орендаря; - працювати з довгостроковою орендою. - оптимальна площа 43 м² + 16 м² - це ідеальний баланс між комфортом і витратами. - низькі комунальні платежі + максимальна корисна площа. Орендний потенціал Формат підходить для: - молодої пари; - ІТ-спеціалістів / фрилансерів; - людей, які працюють у Києві, але хочуть жити поза шумом міста; - орендарів, що цінують нестандартні планування. Висока ліквідність Квартири в ЖК «Емоція» добре здаються як у довгострокову оренду, так і під оренду з підвищеним комфортом - loft / modern формат. Переваги житлового комплексу для оренди - сучасний малоповерховий комплекс; - спокійна та доглянута територія; - хороша транспортна доступність до Києва; - популярна локація серед орендарів; - стабільний попит навіть у нестабільні періоди ринку. Для кого цей об'єкт: - інвестора, який шукає готовий формат під оренду; - покупця з фокусом на збереження капіталу; - тих, хто хоче отримувати стабільний пасивний дохід; - для інвестування з мінімальними ризиками. Ця квартира - вдале інвестиційне рішення з точки зору: формату, локації, ліквідності, попиту на оренду. Дворівневе планування, правильна площа та популярний ЖК роблять об'єкт конкурентним і вигідним для інвестування. Готові надати деталі, розрахунок орендної дохідності та організувати перегляд. Продаж здійснюється представником агентства нерухомості ARCHiDEA-Group на підставі ексклюзивного договору та за ціною, погодженою із власником.

С. Хотів, вул. Партизанська, продаж квартири, мансарда.
С. Хотів, вул. Партизанська, продаж квартири, мансарда. Київська область, Хотів
33 000 $
1 031 $ за м²
1-кімн 32 м² 5/5 п

С. Хотів, вул. Партизанська 1-Б, продаж однокімнатної квартири 32,5/19/9.6 кв. м., яка знаходиться на мансардному поверсі. Квартира потребує ремонту. Ціна 33000 дол. Дзвоніть/пишіть вайбер, телеграм.

Продаж квартири, ЖК Гудвіл. С. Хотів, м. Теремки 10 хв.
Продаж квартири, ЖК Гудвіл. С. Хотів, м. Теремки 10 хв. Київська область, Хотів
1 375 000 ₴
38 194 ₴ за м²
1-кімн 36 м² 2/7 п

С. Хотів, ЖК Гудвіл, вул. Шевченка, продаж однокімнатної квартири. Загальна площа 36,4 кв. м. поверх 2. Про комплекс: малоповерхова забудова, закрита територія комплексу, ландшафтний дизайн, прибудинкової території із облаштованими зонами відпочинку, сучасні дитячі та спортивні майданчики, місця для вигулу тварин, наявність гостьового та підземного паркінгу, нежитлові приміщення торгово-офісного призначення. Ціна 1375000 грн.

Продаж квартири від 22 кв. м. с. Хотів, вул. Травнева.
Продаж квартири від 22 кв. м. с. Хотів, вул. Травнева. Київська область, Хотів
15 400 $
700 $ за м²
1-кімн 22 м² 2/5 п

Пропонуються до продажу квартири від 22 кв. м. с. Хотів, вул. Травнева. Ціна 700 у. о за кв. м. ( дзвоніть, пишіть у вайбер, телеграм )

Стильна квартира З РЕМОНТОМ в новобудові 43,5 м2 <a href='/newbuilding/7539/view/zk-hotiv'>Хотів</a>
Стильна квартира З РЕМОНТОМ в новобудові 43,5 м2 Хотів Київська область, Хотів
50 500 $
1 174 $ за м²
1-кімн 43 м² 6/6 п

Продам велику 1-кімнатну квартиру (євродвушка) в ЖК «Емоція» Площа: 43,5 м² Поверх: 6 Ліфт: є Опалення: двоконтурний газовий котел Планування • Продумане європланування • Окрема гардеробна, що може бути кабінетом або дитячою • Велика кухня з панорамним вікном - легко розміщується диван і обідня зона Стан квартири • Максимальна чистова: стіни зі склохолстом під фарбування • Тепла підлога по всій квартирі • Плитка вже покладена в кімнаті та гардеробній • Закуплена плитка для коридору та санвузла (підлога + стіни) • Встановлений кондиціонер + зроблені всі виводи • Дах додатково утеплений 1 м мінеральної вати • Повністю зроблені розводки електрики та води Переваги комплексу • Багато місць для паркування • Зони відпочинку та дитячі майданчики • Власний ЖЕК • Малоповерхова забудова • Прямі договори з ДТЕК та газовою службою (житлові тарифи) • Закрита територія • Будинки з червоної повнотілої цегли Локація • Поруч зупинка транспорту • 10 хв до метро Теремки • Парк Феофанія - 5 хв • Магелан, Метро, МегаМаркет - 5-10 хв Додатково • Мінімальне оформлення - 2% • Можливий продаж по держпрограмам • Без комісії для покупця Ціна: 50 500 $ Телефонуйте!

Продаж 1-кімнатної 30,8 м2 ЖК Новий Хотів, Теремки
Продаж 1-кімнатної 30,8 м2 ЖК Новий Хотів, Теремки Київська область, Хотів
1 262 800 ₴
42 093 ₴ за м²
1-кімн 30 м² 5/7 п

Продаж 1-кімнатної квартири в ЖК Новий Хотів Локація: Хотів (6 км. Від Києва), вул. Шевченка 85 Поверх: 5/7 Площа: 30,8 м² Кімната: 15,1м² Кухня: 8 м². Введення в експлуатацію 1кв. 2026 року Переваги квартири: Квартири будуються з червоної повнотілої цегли, товщина стін 380 мм. Висота стелі - 2,7 м. кв. Автономне газове опалення (встановлюється двухконтурний котел від забудовника і розводка опалення до радіаторів). Двері - металеві з МДФ - накладками. Вікна - 5 камерний профіль, двокамерний склопакет. Підлога - стяжка (окрім санвузла). Стіни без оздоблення. Утеплення - пінополістерол 100мм, мінеральна вата 100мм. 7-поверхова забудова. Ліфти - пасажирські. Лічильники на всі комунікації: світло, газ, вода Комунікації: Центральне водопостачання та каналізація. Газ, електрика. Є Резервне живлення (при вимиканні світла працює світло - в місцях загального користування, вода функціонує) Поряд в пішій доступності 2 хв: Приватна школа «Без меж», дитячий садок «Без меж», супермаркет THRASH!ТРАШ! », кафе, салони краси, дитячі майданчики, аптека, відділення Нової Пошти, банк, нотаріус. Маршрутні таксі: #729 ( від м. Либідська, через вул. Васильківську), #731 та #725 від м. ВДНГ (зупинка навпроти ВДНГ, в сторону виїзду з міста ). Кілька виїздів до м. Києва. (через Новосілки, Чабани, Феофінію, Столичне шоссе)

Продаж однокімнатної квартири
Продаж однокімнатної квартири Київська область, Хотів
67 000 $
1 523 $ за м²
1-кімн 44 м² 2/6 п

Продаж 1к квартири в ЖК «Емоція»! Адреса: с. Хотів, вул. Промислова, 1М Площа: 44 м 2 поверх, будинок з ліфтом Будинок з червоної цегли Газ, централізовані комунікації Індивідуальне опалення (двоконтурний котел) Локація з розвиненою інфраструктурою: магазини, кафе, пошта, дитячі майданчики, зупинка транспорту, парковки Підходить під програми «єВідновлення» Ціна: 63 500$+комісія АН Телефонуйте - квартира готова до перегляду! АН «Time To Home» 06*********20 Тетяна

Євродвушка 44м2 єОселя, Держпрограми
Євродвушка 44м2 єОселя, Держпрограми Київська область, Хотів
67 000 $
1 523 $ за м²
1-кімн 44 м² 2/6 п

Квартира підходить під оформлення єОселі ВПО, стандартної іпотеки, ДМЖ та під усі Держпрограми. ЖК "Емоція" с. Хотів 2-кімнатна квартира 44 м2 з ремонтом на 2 поверсі 7-поверхового будинку. Будинок із червоної цегли, стіни товщиною 60см, утеплений пінопластом 10 см і оздоблений фасадом. Світла квартира з якісним ремонтом: - шпалери; - ламінат; - натяжна стеля; - повне сантехнічне розведення; - повне електричне розведення (близько 30 точок розеток та вимикачів); - вивід під кондиціонери; - міжкімнатні двері; - якісні вхідні двері; - металопластикові вікна (двокамерний склопакет, 5-камерний профіль). Санвузол укомплектований: - кахель; - тепла підлога; - душова кабіна; - інсталяція (унітаз + кнопка); - рушникосушарка Можливе придбання в кредит за програмою ДМЖ, єОселя 3%, 7%, єОселя 7% (ВПО) Код об'єкта: k56'368974'26. АН "Атланта". Більше інформації та світлин за посиланням: https://www.atlanta.ua/kiev/object/1komnatnye/368974

1-к кв с Хотів, вул. Б. Хмельницького, 1; без комісії для покупця!
1-к кв с Хотів, вул. Б. Хмельницького, 1; без комісії для покупця! Київська область, Хотів
64 000 $
1 455 $ за м²
1-кімн 44 м² 4/5 п

Пропонується до продажи 1 кімнатна квартира з ремонтом, з меблями та побутовою технікою. Будинок розташовано в самому центрі с. Хотів; Квартира розташована на 4 поверсі 5 поверхового цегляного будинку. В будинку індивідуальне газове опалення. Встановлено газовий котел, 2 кондиціонера. Площа загальна 43,5 кв. м./житлова 24 кв. в./кухня 13. Велика світла простора кімната-спальня для якісного відпочинку, та окрема простора кухня з вбудованими меблями та технікою (холодильник, варильна поверхня, духова шафа, витяжка); вбудована шафа для зберігання речей; сумісний с\вузол площею 4 кв. м; передпокій 3 кв. м. Тепла підлога на кухні, ванній кімнаті та передпокої. Австрійське вінілове покриття в кімнаті. Лічильники на газ, воду і електрику; в будинку є ліфт. Гарні сусіди; охайний оздоблений під'їзд. Закритий в'їзд у двір (тільки для власників квартир). Поруч зупинки громадського транспорту. Розвинена інфраструктура, супермаркети, спеціалізованих магазинів, аптеки, лікарня, школи, дитячі садочки. Квартира повністю готова для комфортного проживання і чекає на своїх нових господарів. Без комісії для покупця.

продаж квартири у хотові
продаж квартири у хотові Київська область, Хотів
33 000 $
917 $ за м²
1-кімн 36 м² 2/4 п

продаж квартири у хотові 2017 року квартира не кутова дуже тихий двір будь ласка пишіть на вказаний номер Viber 06******38 Без комісії %. Власник!

Продажа 1-комнатной квартиры 44 м², Промышленная ул., 1Н
Продажа 1-комнатной квартиры 44 м², Промышленная ул., 1Н Киевская обл., Киево-Святошинский район, с. Хотов, Промышленная ул., 1Н
57 000 $
1 295 $ за м²
1-кімн 44 м² 6/6 п

Ти ж знаєш ці миті, коли навіть найсильнішій жінці хочеться просто зникнути з радарів і дозволити світу покрутитися без неї Однокімнатна квартира в Хотові в ЖК Емоція площею 44 квадратних метра - саме те місце, де можна не тримати все під контролем, а просто бути Тут ремонт на найприємнішій стадії: всі брудні роботи позаду. Стіни ідеально рівні, підлога в плитці, санвузол повністю готовий. Залишились останні штрихи: фінішна фарба, натяжні стелі та твої меблі, твоя техніка, твій запах Дизайн - проєкт передбачає акцентну стіну з великим тропічним листям - деталлю, яка створює відчуття спокою і того самого легкого вайбу, що так не вистачає міському жителю А тепер уяви, що ремонт завершений Ти приїжджаєш додому, повертаєш ключ, двері м'яко клацають і весь світ залишається за порогом Одразу вдихаєш глибше: високі стелі, великі вікна, світло, що заливає простір Ти кидаєш сумку, плечі опускаються Нарешті Тут не треба нікого рятувати і нічого доводити Камін мерехтить, підлога тепла під босими ногами, мякий плед сам проситься на коліна Чайник тихо співає на кухні, сутінки починають заливати небо ніжним фіолетово-рожевим Ти сідаєш на зручний диван, обіймаєш теплу чашку долонями і все зайве спадає, наче хтось обережно знімає з тебе невидимий рюкзак Можеш відкрити книгу, яку давно хотіла прочитати Можеш просто дивитися на вогонь Можеш бути тихою, розпатланою, сонною, смішною. Будь-якою Ці стіни вже тебе люблять і нічого не вимагають А коли очі самі почнуть заплющуватися, піднімаєшся на антресоль, де облаштоване затишне спальне місце Метушня залишається внизу, а ти - вище, в абсолютній тиші. Над тобою тільки дах і зорі Шостий, останній поверх Жодних сторонніх звуків. Тільки чуєш свій рівний глибокий подих Якщо прямо зараз у грудях щось йокнуло - це знак. Це твоє місце Дзвони. Я з радістю передам тобі ключі від квартири, де ти нарешті дозволиш собі просто бути

Квартира, 1к. Житловий стан. с. Хотів, Обухівський район
Квартира, 1к. Житловий стан. с. Хотів, Обухівський район Київська область, Хотів
75 000 $
1 786 $ за м²
1-кімн 42 м² 4/6 п

Затишна 1-кімнатна оселя поруч із Києвом! Комфортне життя в тихому передмісті з міськими зручностями! Продається однокімнатна квартира за адресою вулиця Партизанська, 1а, село Хотів. Оселя розташована на 4 поверсі 6-поверхового цегляного будинку з ліфтом, зведеного на надійному фундаменті зі сваями. Будинок з укриттям, охайним під'їздом, у тамбурі лише три квартири, встановлені камери відеоспостереження. Двір тихий, з можливістю паркування на території будинку та поруч. Квартира у житловому стані - можна заїхати та жити без зайвих витрат. Просторе планування, велика гардеробна, тепла та світла атмосфера. Встановлено індивідуальне газове опалення з двоконтурним котлом, що забезпечує опалення та гарячу воду, а також мінімальні комунальні платежі. Є лічильники на всі комунікації, кондиціонер, підключене оптоволокно. Меблі та техніка залишаються за домовленістю з власником. Локація зручна для щоденного життя та поїздок до столиці. Під будинком - зупинка громадського транспорту, швидкий виїзд на Київ. До метро «Теремки» та «Іподром» - близько 15 хвилин їзди. Поруч проходять вулиці Метрологічна, Заболотного, Глушкова, відстань до них - близько 6 км. У пішій доступності супермаркети «Фора», «Бонус», «Аврора», відділення «Нової пошти» та «Укрпошти», школа, дитячий садок, ЦНАП, ЖЕК, поліклініка, ринок, церква, кав'ярні та фітнес. Неподалік розташовані Круглик, Лісники, Ходосівка, Чабани, Новосілки та Гатне. Ця оселя - вдалий варіант для тих, хто цінує спокій передмістя, але хоче залишатися поруч із Києвом, маючи всі необхідні зручності для комфортного життя. Можливий обмін на вашу нерухомість. Усі подробиці про квартиру та про її придбання за телефоном. Телефонуйте у будь-який час! Ми завжди раді вам допомогти! Надаємо повний спектр послуг з купівлі та продажу квартир та будинків. Великий досвід допомоги по купівлі квартир за державними програмами: 1) Є-оселя 2) Житло для ВПО та військових (постанова 280) 3) Сертифікат на зруйноване житло З нами безпечно, якісно, вигідно!

1-к квар 44 м2 ЖК Емоція с. <a href='/newbuilding/7539/view/zk-hotiv'>Хотів</a> Державни програми розглянемо
1-к квар 44 м2 ЖК Емоція с. Хотів Державни програми розглянемо Київська область, Хотів
42 000 $
977 $ за м²
1-кімн 43 м² 2/7 п

Продаж 1-кімнатної квартири в ЖК Емоція, с. Хотів, вул. Промислова, 1-М Розглянемо продаж за державними програмами! Пропонується простора 1-кімнатна квартира в сучасному ЖК Емоція комфорт-класу. Квартира після будівельників - чудовий варіант для реалізації дизайнерського проєкту! Будинок цегляний, введен в експлуатацію у 2022 році. Поверх: 2/7. Площа: 43,7 м² Кімната: 15,2 м² Кухня: простора - 15,6 м². Переваги квартири: Тепла та світла, панорамні вікна з енергозберігаючими склопакетами. Індивідуальне газове опалення, встановлений двоконтурний котел. Лічильники на всі комунікації: світло, газ, вода. Якісні вхідні двері. Тиша та затишок. Чисте парадне, сучасний та тихий ліфт. ЖК: Закрита територія з відеоспостереженням та охороною. Приватна школа, дитячий садок, магазини, кафе, піцерія, салони краси, дитячі майданчики, аптека, відділення Нової Пошти, Супермаркет, спортивний комплекс, банк. Комунікації: Центральне водопостачання та каналізація. Газ, електрика. Асфальтований під'їзд Ідеальне місце для комфортного життя поруч із Києвом.

Продаю 1-кімнатну квартиру в с. <a href='/newbuilding/7539/view/zk-hotiv'>Хотів</a>
Продаю 1-кімнатну квартиру в с. Хотів Київська область, Хотів
45 000 $
1 071 $ за м²
1-кімн 42 м² 4/7 п

Продається 1-кімнатна квартира в ЖК “Емоція”, с. Хотів, вул. Промислова, 1 Про будинок: - Заселений будинок, цегляний та утеплений - Є ліфт - Квартира тепла, планування правильної форми. - Всі комунікації підключені: котел, лічильники на газ, воду та світло - Можна робити ремонт - На території укриття та кладовки - Працює власний ЖЕК Інфраструктура: - Дитячий садок з басейном та тенісним кортом та школа з футбольним напрямком - Супермаркет поруч - Зупинка громадського транспорту Поруч: - ТРЦ Магелан - 10 хв - Епіцентр Чабани по Одеській трасі - 5 хв - Фора, інші магазини поруч

Відкрити карту Карта