Продам 2к квартиру Сталинка Научная Данилевского
Продам 2к квартиру Сталинка Научная Данилевского Харківська область, Харків, Шевченківський
57 500 $
1 150 $ за м²
2-кімн 50 м² 4/6 п

Продам чудову 2-кімнатну квартиру біля самого входу до метро «Наукова»! Адреса: вул. Данилевського, 22. 4-й поверх 6-поверхового цегляного будинку. Площа - 50 м². Сталінка У квартирі новий сучасний ремонт, ще ніхто не проживав. Планування: три окремі кімнати, у спальні - великий балкон. Квартира не кутова, двостороння, тепла та світла. Працюємо із сертифікатами та програмою «ЄВідновлення». Локація ідеальна: від під'їзду до входу в метро всього 20 метрів! Дуже розвинена інфраструктура - поруч садочки, школи, підземний перехід, парки, Саржин Яр, зоопарк. Реальному покупцю - торг.

57900 $‼️‼️2-ком квартира/ ЦЕНТР/ул. Данилевского/метро Научная/50 м2
57900 $‼️‼️2-ком квартира/ ЦЕНТР/ул. Данилевского/метро Научная/50 м2 Харківська область, Харків, Шевченківський
57 900 $
1 158 $ за м²
2-кімн 50 м² 4/6 п

В продаже 2-ком квартира в Центре с новым ремонтом и двумя отдельными спальнями возле метро Научная ( 2 мин) на ул. Данилевского Общая площадь 50 м2 Расположена на 4 м этаже из 6ти Формат: кухня-гостинная, 2 спальни, совмещенный санузел Квартира двусторонняя, с одной из спален выход на балкон. Не угловая В квартире сделан новый ремонт в трендовых светлых тонах. После ремонта никто не проживал! Установлен кондиционер, бойлер, зональное освещение. В спальнях кровати с системой хранения, шкафы. Прекрасное месторасположение! Метро Научная 2 минуты, рядом парк Шевченко, Саржин яр, супермаркеты, остановки общественного транспорта. Рассматривается продажа по сертификату Євідновлення Звоните, покажем в удобное для вас время!

Срочно! 2ком квартира у порога метро по Научная
Срочно! 2ком квартира у порога метро по Научная Харків, Шевченківський, вулиця Данилевського 22
58 000 $
1 160 $ за м²
2-кімн 50 м² 4/6 п

3ком квартира у порога Метро Научная Ул Данилевского 4/6 50м2 Совершенно новая квартира, только закончили ремонт. Никто не жил Сталинка, ж/б перекрытия Сертификат Цена 58 000

Продам 2к ст. м. Наукова/Держпром. Євідновлення
Продам 2к ст. м. Наукова/Держпром. Євідновлення Харківська область, Харків, Шевченківський
45 000 $
865 $ за м²
2-кімн 52 м² 2/4 п

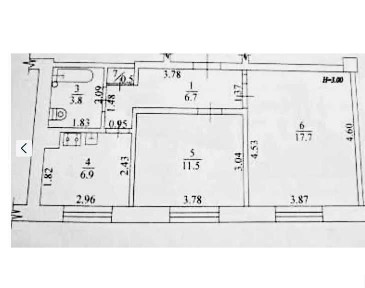
Продам 2-кімнатну квартиру в престижному районі - вул. Данилевського, 39 (м. Наукова / Держпром) Пропонується до продажу квартира у цегляному будинку на 2-му поверсі - найбільш комфортному для життя. Це локація, яка не втрачає актуальності та завжди має попит. Параметри квартири: Загальна площа: 52,5 м² Кімнати ізольовані: 16,5 м² та 15,3 м² Кухня: 6,6 м² Санвузол суміжний: 4,2 м² Коридор: 7,6 м² Кладова: 1,8 м² - раціональний простір для зберігання Про будинок: Цегляний, теплий, з товстими стінами та хорошою шумоізоляцією Невелика поверховість - лише 4 поверхи, тиха та спокійна атмосфера Переваги квартири: Газова колонка - автономна гаряча вода Лічильники на газ та електрику Документи підготовлені - угоду можна провести оперативно Підходить під сертифікат ЄВідновлення Меблі та техніка залишаються - економія на облаштуванні Локація Один із найкращих районів Харкова для життя та інвестицій: 2 станції метро в пішій доступності Розвинута інфраструктура: школи, університети, магазини, спортзали, кафе Високий орендний попит - відмінний варіант для пасивного доходу Ця квартира - вдале рішення для тих, хто хоче отримати надійний актив у перспективному районі. Телефонуйте, щоб домовитися про перегляд 09******21 Руслан

2к 92м2 Данилевського (Данилевського, ЖК Садова горка), Центр, 106619
2к 92м2 Данилевського (Данилевського, ЖК Садова горка), Центр, 106619 Харківська область, Харків, Шевченківський
160 000 $
1 739 $ за м²
2-кімн 92 м² 6/7 п

Продається реальна 2-кімнатна квартира новобудова в Центрі, в будинку закритого типу "Садова гірка" з територією, що охороняється по вулиці Данилевського, метро Держпром 5 хвилин. Квартира знаходиться на 6-му поверсі 7-поверхового будинку. Загальна площа - 92м2, житлова площа - 65м2, кухня - 17м2. У квартирі виконано дизайнерський ремонт. Продається з меблями та технікою. Меблі від світових виробників, стильні елементи декору надають квартирі певного шарму. Свій закритий двір із гарним ландшафтом та дитячий майданчик, відмінний варіант провести час не виходячи з двору. Своя котельня у домі. Підземний паркінг Поруч вся необхідна інфраструктура: супермаркети, школи, дитячі садки, відділення банків та пошти, кафе, ресторани, ВУЗи, парк Шевченка та площа Свободи 7 хвилин. Парк Шевченко (парк Шевченка), площа Незалежності *площадь Независимости), метро Університет (метро Университет), Садова Горка ( Садовая Горка), вулиця Данилевського (улица Данилевского). Без комиссии. 3D-тур этого объекта вы можете посмотреть на нашем сайте: kn.ua/r3d/106619; ID объекта - RE-106619

Продам 2х комнаю квартиру ул. Данилевского.
Продам 2х комнаю квартиру ул. Данилевского. Харківська область, Харків, Шевченківський
38 500 $
802 $ за м²
2-кімн 48 м² 1/5 п

Продается 2х комнатная квартира в центре города. Квартира расположена в кирпичном доме. Две изолированных комнаты и кухня. Санузел совмещен. Квартира в жилом состоянии. Высота помещения 3.2 м. Два шкафа купе. Квартира свободна. Пешим ходом до ст. метро Научная 10 минут. Удобное место для проживания и аренды. Показ по договоренности.

2 квартира-сталінка, 4/5, Центр, метро
2 квартира-сталінка, 4/5, Центр, метро "Наукова" (сталинка, "Научная") Харківська область, Харків, Шевченківський
43 000 $
811 $ за м²
2-кімн 53 м² 4/5 п

Продам затишну 2-кімнатну квартиру в самому серці Харкова - вул. Данилевського, буд. 33. Надам відео по запиту. Розташована на 4 поверсі 5-пов. цегляного будинку сталінської епохи з надійними залізобетонними перекриттями. Загальна площа 52.6 кв. м, ідеально підходить для комфортного проживання. Квартира в жилому стані - можна заселятися одразу або оновити інтер'єр на власний смак. Просторі, світлі кімнати 16 + 22 кв. м, з високими стелями створюють відчуття простору. Функціональна вбудована кухня, нова газова плита. Сумісний санвузол - зручне планування для щоденного користування. Встановлена сучасна газова колонка-автомат - гаряча вода є завжди, незалежно від сезону. Балкон незасклений, виходить у тихий двір. Будинок розташований у зеленій зоні, поруч - сквери, парк, зоопарк, дитячі майданчики, супермаркети, кафе, банки, інститути, навпроти школа, поруч приватний дитсадок. В пішій доступності 2 лінії метро - «Наукова» 5 хв. і "Держпром" 10 хв. Поруч зупинки маршруток, тролейбусів, трамваїв в усі райони міста. Ідеальний варіант для проживання і як інвестиція під оренду. Тільки продаж, без пошуку нерухомості на заміну. Квартира чекає саме на вас! Запрошуємо на перегляд у зручний для вас час. Після перегляду розглядаємо конструктивний торг. Ціна екв. 43000 дол. США.

Продам 2-комнатную Госпром. Центр. Проспект Науки. Данилевского. Ж/Б
Продам 2-комнатную Госпром. Центр. Проспект Науки. Данилевского. Ж/Б Харківська область, Харків, Шевченківський
43 000 $
915 $ за м²
2-кімн 47 м² 5/5 п

Продам 2-комнатную Госпром. Центр. Проспект Науки. Данилевского. Ж/Б В продаже двухсторонняя двухкомнатная квартира с видом на Госпром и Клочковскую, в самом центре города, улица Данилевского дом 38А Общая площадь квартиры составляет 47 м², кухня 9 м², 5 этаж 5-этажного дома. В квартире выполнена качественная столярка, заменены коммуникации: проводка, трубы, установлены кондиционеры. Капитальный ремонт крыши в 2023 году, дом обслуживает жилкомсервис. Расположение дома: до 10 минут от станций метро Госпром, Научная, супермаркеты и гипермаркеты в 5 минутах ходьбы, а также школы, поликлиники, больницы, отделения почты и банков рядом с домом - развитая инфраструктура. Стоимость квартиры 48 000, от которой торгуемся, услуги агентства 0% для прямого покупателя без посредников.

Продам 2-кімнатну квартиру біля Держпрому та метро «Наукова»
Продам 2-кімнатну квартиру біля Держпрому та метро «Наукова» Харківська область, Харків, Шевченківський
58 000 $
1 160 $ за м²
2-кімн 50 м² 4/6 п

Номер оголошення на сайті компанії: SF-3-220-620-LX. Пропонується квартира після капітального ремонту, загальна площа - 50 м². Формат: кухня-студія та 2 компактні спальні. Ніхто не проживав - квартира абсолютно нова та готова до заселення. Розташована на 4-му поверсі 6-поверхового цегляного будинку. Є газ. Сучасний ремонт виконаний якісно й з увагою до деталей. Ідеальне місце для комфортного життя: поруч метро «Наукова», Держпром, зручна транспортна розв'язка, вся інфраструктура міста у кроковій доступності. Телефонуйте, щоб домовитись про перегляд!

Продам 2к. кв центр міста вул. Данилевського, поруч м. Наукова
Продам 2к. кв центр міста вул. Данилевського, поруч м. Наукова Харківська область, Харків, Шевченківський
29 000 $
604 $ за м²
2-кімн 48 м² 4/5 п

Квартира розташована на 4 поверсі 5-поверхового будинку. Кімнати окремі, світлі та просторі. Санвузол суміжний. Квартира під ремонт, горяча вода- газова колонка Господарі у місті, готові до угоди Дуже чемні сусіди, охайний під'їзд. У пішій доступності - уся необхідна інфраструктура: магазини, зупинки, кафе, університети. До Майдану Незалежності- всього 3 хвилини пішки! Покази за домовленістю.

Продам без % агентству, м.Научная, 2к. кв., Центр, ул. Данилевского, 22цоколь
Продам без % агентству, м.Научная, 2к. кв., Центр, ул. Данилевского, 22цоколь Харківська область, Харків, Шевченківський
20 000 $
435 $ за м²
2-кімн 46 м² 1/6 п

Цікавий варіант: цоколь з вікнами, можлива експлуатація під комерцію. Вхід з під'їзду. вул. Данилевського, 22 Саме тоді, коли ви станете власником чудової елітної оселі, у самому Центрі м. Харкова, ви отримаєте поряд: парк Горького та Шевченка, розвинену інфраструктуру та можливість насолоджуватися історичною атмосферою! Квартира повністю готова до продажу: вільна, ключі від неї ви отримаєте на угоді, документи внесені у всі реєстри. У Подарунок ви отримаєте усі меблі та техніку! Зауважте, що є бойлер, ви будете завжди з гарячою водою! Стати власником чудової квартири ви зможете за 20 000 у.е. + 2% нотаріальні послуги та податок! Покупець % агенції не сплачує! Рієлторці сплачує % власник. День показів четвер з 17:00 до 18:00, субота з 11:00 до 12:00 З повагою, сертифікована рієлторка АН «ТАР» Тетяна Решетняк

Продам 2к квартиру Центр Держпром Наукова
Продам 2к квартиру Центр Держпром Наукова Харківська область, Харків, Шевченківський
35 000 $
673 $ за м²
2-кімн 52 м² 4/4 п

#17848 Квартира для втілення Ваших ідей! Пропонується к продажу 2к квартира в центрі, яка знаходиться за адресою вул. Данилевського, 8. Чудове розташування: поруч метро Наукова та Держпром, дитячий майданчик, садок, школа, магазини, зелена зона. Квартира загальною площею 52 м2 розташована на 4 поверсі 4 поверхового будинку. Формат квартири: окрема кімната, кухня-вітальня та санвузол. Капітальний ремонт покрівлі зроблений у 2024 році, перекриття залізобетонні. Можливий торг. Не пропустіть можливість придбати квартиру в самому серці міста - звертайтеся!

Продам 2к. Центр, Держпром Данилевского торг
Продам 2к. Центр, Держпром Данилевского торг Харківська область, Харків, Шевченківський
34 500 $
734 $ за м²
2-кімн 47 м² 1/5 п

Код 18093 Продам 2-х кім. квартиру Харків Центр, Держпром, вул. Данилевського. Тихий ідеальний центр 7 хвилин пішки до метро Наукова та Держпром. Вікна на школу, 100 метрів до школи №105 Сталінка, 1/5 поверх, цегляний будинок Залізобетонні перекриття. Може підійти під нежитловий фонд чи офіс. Стеля 4 метри. Великі вікна, Світла сонячна сторона. 47м2, 2 кімнати кухня ванна комора. Ідеальне планування. Запрошуємо на перегляд

Квартира у центрі на Данилевського під ремонт
Квартира у центрі на Данилевського під ремонт Харківська область, Харків, Шевченківський
35 000 $
673 $ за м²
2-кімн 52 м² 4/4 п

Продається 2-кімнатна квартира у центрі Харкова по вулиці Данилевського будинок 8. Загальна площа - 52 кв. м., 4 поверх 4-поверхового будинку (капітальний ремонт покрівлі рік тому). Тепла квартира з вільним плануванням під ремонт Вашої мрії! Будинок із газом. Поруч вся необхідна інфраструктура: дитячі садки, школи, магазини, ринок, ВНЗ. Метро Наукова 10 хвилин, метро Держпром 12 хвилин пішки. Ціна 35 000 $, торг.

Продам 2 кімнатну квартиру район Держпрому, вул. Данилевського.
Продам 2 кімнатну квартиру район Держпрому, вул. Данилевського. Харківська область, Харків, Шевченківський
61 000 $
924 $ за м²
2-кімн 66 м² 3/5 п

У продажу 2 кімнатна квартира 65,9 м2. Дуже простора, світла, чиста, доглянута. ЗБ перекриття між поверхами. Два балкони засклені, кондиціонер, кутова ванна, душова кабіна.

2к. 50м2 Центр Держпром (Научная, ул. Данилевского, ) 122456
2к. 50м2 Центр Держпром (Научная, ул. Данилевского, ) 122456 Харківська область, Харків, Шевченківський
35 000 $
700 $ за м²
2-кімн 50 м² 5/5 п

Продам реальну 2-кімнатну квартиру в Центрі на вулиці Данилевського, метро Наукова 7 хвилин. Квартира знаходиться на 5-му поверсі 5-поверхового будинку. Загальна площа квартири - 50м2, житлова площа - 34м2, кухня - 8м2. Квартира під ремонт вашої мрії. Вільне планування, э балкон. Усередині без перегородок готова до ваших креативних ідей. Поруч вся необхідна інфраструктура: дитячі садки, школи, магазини, ВНЗ. Хороший варіант для найдорожчої оренди. kn.ua/r/122456; ID объекта - RE-122456

2к. 62м2 Центр (ул. Данилевского 10, м Научная) 129169
2к. 62м2 Центр (ул. Данилевского 10, м Научная) 129169 Харківська область, Харків, Шевченківський
52 000 $
839 $ за м²
2-кімн 62 м² 3/4 п

Доступно за програмою єВідновлення. Продається 2-кімнатна квартира, Центр, Данилевського вул. 10, м. Наукова. Загальна площа - 62 м²; 3 поверх 4-поверхового будинку. Формат квартири: кухня-вітальня, вітальня, спальня, душова кімната, балкон, пральна кімната. У квартирі: капітальний ремонт, МПВ. Встановлено: лічильник на воду, лічильник на газ. Додаткові бонуси: меблі, техніка, холодильник, пральна машина, кондиціонер, газова колонка. Переваги цього будинку: дитячий майданчик, зона відпочинку, будинок з газом. Поруч уся необхідна інфраструктура: дитячий садок, школа, метро, зупинка громадського транспорту, ринок, парк Шевченка, медкомплекс. kn.ua/r/129169; ID объекта - RE-129169

Продам 2к квартиру на Научной. Сертификат можно!
Продам 2к квартиру на Научной. Сертификат можно! Харківська область, Харків, Шевченківський
43 000 $
860 $ за м²
2-кімн 50 м² 3/6 п

Продам 2к квартиру по ул. Данилевского. Комнаты раздельные, есть балкон. Квартира не угловая, очень теплая. Газовая печь, бойлер, 2 кондиционера. До метро Научная 3 минуты пешком.

Продам квартиру Данилевського, 17, торг, Є-відновлення
Продам квартиру Данилевського, 17, торг, Є-відновлення Харківська область, Харків, Шевченківський
53 300 $
1 025 $ за м²
2-кімн 52 м² 3/4 п

Продам 2-х кімнатну квартиру, 52 кв. м, центр, Данилевського 17, 1 балкон, перекриття - залізобетон, 2 кодиционера, роздільний санвузол, меблі, кухонні меблі, духова шафа, пральна машина, холодильник, сигналізація, інтернет, паркет. Торг

Відкрити карту Карта