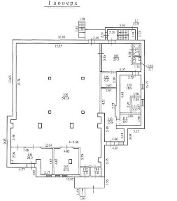
Продаж офісної будівлі в Дніпрі по вул. Н.Алексєєнко (Чичеріна) 1800кв. м
Продаж офісної будівлі в Дніпрі по вул. Н.Алексєєнко (Чичеріна) 1800кв. м Дніпропетровська область, Дніпро, Чечелівський
500 $
500 $ за м²
1800 м²

Шукаєте приміщення в зручному місці недалеко від центру міста? Наша пропозиція може бути саме тим, що вам потрібно! Правий берег, Чечеловський район. Окрема будівля, 4 поверхи. Високі стелі, широкі коридори. Можливо офіс, можливо невелике виробництво, або сортування, чи фасовка, що завгодно, якщо вам потрібна гарна локація. Поряд ви маєте змогу додатково орендувати склади, виробничі приміщення та зробити оптимальним ведення бізнесу, де все контролюється вами. Крім того, приміщення знаходиться в місці з легким доступом до транспортних вулиць, що забезпечує зручність у перевезенні товарів та оптимальний доступ для працівників і клієнтів. Оптимізація логістики (де все в єдиному просторі: офіс, склад, виробництво) дає змогу економити видатки щомісяця. Це дійсно важливо для всіх підприємців. Наші приміщення розташовані на закритій території, що охороняється та забезпечує вам безпеку та спокій у роботі. Також пропонуємо можливість придбати цілі поверхи з окремими кабінетами. Звертайтеся, вислухаємо ваші пропозиції.

Продам злание 2этажа 470 м2 пр. Б.Хмельницкого 103
Продам злание 2этажа 470 м2 пр. Б.Хмельницкого 103 Дніпро, Шевченківський, проспект Богдана Хмельницького 103
95 000 $
202 $ за м²
470 м² 2/2 п

Здание расположено в супер топовой локации рядом с Террой. Это бывшее общежитие. Очень хорошая транспортная развязка э, до центра города 10 мин на авто. В здании нет межэтажного перекрытия. Рядом достаточно места чтоб сделать паркинг или зону отдыха. Звоните!

Продам склад на проспекте Богдана Хмельницкого
Продам склад на проспекте Богдана Хмельницкого Дніпропетровська область, Дніпро, Шевченківський
550 000 $
324 $ за м²
1700 м² 1/1 п

Продается отдельно стоящее складское помещение 1700 м². Идеально подходит для продуктового хранения, интернет-магазинов, логистики, производства лёгкого типа и других видов деятельности. Характеристики: • склад класса А • помещение частично заглублено - зимой при -15° внутри было +7° • есть рампа • система анти-пыль • удобный заезд для фур • на территории охрана • небольшой офис, санузел, душ • отопление офисной части (котёл) Адрес: проспект Богдана Хмельницкого Готов показать в удобное время!

Продам офісне приміщення 147 кв. м в ТЦ Курчатовський (ОП)
Продам офісне приміщення 147 кв. м в ТЦ Курчатовський (ОП) Дніпропетровська область, Дніпро, Чечелівський
99 999 $
680 $ за м²
147 м² 3/3 п

Продам офісне приміщення 98+50 кв. м в ТЦ Курчатовський. Дві окремі кімнати, опен-спейс, свій с/в. Кондиціонери в кожній кімнаті. Косметичний ремонт. ваш персональний агент з нерухомості Олег

Продам коммерцию красная линия Рабочая
Продам коммерцию красная линия Рабочая Дніпропетровська область, Дніпро, Чечелівський
46 000 $
667 $ за м²
69 м² 1/5 п

Продаж, нежилое помещение, ул. Криворожская 12/25, 3 комнаты, санузел, 1/5 сталинка ж/б перекрытие, 69 м. кв. Использовать помещение можно как под офис, магазин, вольное применение. Индивидуальное отопление электро, панорамные окна, ремонт, решетки, жалюзи, сигнализация, выход на красную линию. Перед магазином, парковка для машин.

Продам офис с евроремонтом на пр. Мигояна (пр. Мазепы)
Продам офис с евроремонтом на пр. Мигояна (пр. Мазепы) Дніпропетровська область, Дніпро, Чечелівський
35 000 $
479 $ за м²
73 м² 1/4 п

Продам офис с евроремонтом на пр. Мигояна (пр. Мазепы) : большой выставочный зал+2 кабинета+ кухня+санузел+кладовка+ выход на фасад, загальною площею - 62 м2

ГОТОВЫЙ МЕДИЙНЫЙ ПРОЕКТ. Окупаемость 4 года-110000$
ГОТОВЫЙ МЕДИЙНЫЙ ПРОЕКТ. Окупаемость 4 года-110000$ Дніпропетровська область, Дніпро, Чечелівський
110 000 $
2 619 $ за м²
42 м² 2/2 п

ПРОДАМ ГОТОВЫЙ, КРАСИВЫЙ, РАСКРУЧЕНЫЙ БИЗНЕС ПРОЕКТ ПОСУТОЧНОЙ СДАЧИ В АРЕНДУ 2024 года постройки. Окупаемость проекта на основе подтвержденной прибыли 3,8-4 года. И это при загрузке на 70-80% т. к проект молодой и ещё не достиг своего пика прибыльности. Детальная информация в конкретных цифрах при личной встрече. В подтверждение всего выше сказанного мы не планируем менять локацию т. к полный проект состоит из 4 разных домов (2 уже работают) Действующий, полностью укомплектованый проект с готовым РАСКРУЧЕННЫМ ИНСТАГРАММОМ на 9000 активных подписчиков, который входит в стоимость. В наличии 2 готовые локации на двух граничащих участках. При покупке обоих-скидка. В 15 минутах езды от центра Днепра (без блок-постов, в черте города) Уникальный, парящий в воздухе, проект дома, с ПАНОГРАМНЫМ ВИДОМ, авторским инерьером, который расположен на просторном участке 7 соток с ландшафтным дизайном и совершенно новыми коммуникациями. Под домом расположилась шикарных размеров терраса с чаном на дровах, зоной отдыха и мангалом. Локацию регулярно посещают известные блогеры Днепра с последующими публикациями на личных акаунтах, поэтому количество желающих часто превышает наше предложение по свободным датам.

Сдам действующее СТО в аренду, центр г. Днепр
Сдам действующее СТО в аренду, центр г. Днепр Дніпропетровська область, Дніпро, Чечелівський
60 000 ₴
60 000 ₴ за м²
200 м² 1/1 п

Сдам действующее СТО в аренду, центр, с оборудование и инструментом. Есть все необходимое для полноценной работы с первого дня. 200 м², отопление дрова/масло, мини склад, приёмка, переодевалка сотрудников. На длительный срок, аренда + свет. Без мойки-60.000 грн. С мойкой-140.000 грн.

Продажа коммерческой недвижимости 1349 м², Днепр, Чечеловский район
Продажа коммерческой недвижимости 1349 м², Днепр, Чечеловский район Дніпропетровська область, Дніпро, Чечелівський
130 000 $
130 000 $ за м²
1349 м² 2/2 п

Продажа коммерческой недвижимости 1349 м², Днепр, Чечеловский район Продаётся здание свободного назначения площадью 1349 м² в г. Днепр (Чечеловский район, ул. Новокрымская). Здание расположено на участке 50,06 соток и отлично подойдёт под различные виды бизнеса. Характеристики: • Общая площадь здания: 1349 м² • Площадь земельного участка: 50,06 соток • Этажность: 2 + подвал • Высота потолков: 3 м • Электрическая мощность: 110 кВт • Новая крыша (5 лет) • Состояние: требует капитального ремонта • Целевое назначение (КВЦПЗ 03.03): для строительства и обслуживания зданий учреждений здравоохранения и социальной помощи Удобное расположение в Чечеловском районе, хорошая транспортная развязка и подъездные пути. Возможное использование: • частная клиника или медицинский центр, • реабилитационный или социальный центр, • образовательное учреждение, • другой вид бизнеса в соответствии с назначением участка. Документы готовы к сделке.

Продам помещение 1 эт. не жилой фонд, красная линия ул. Криворожская.
Продам помещение 1 эт. не жилой фонд, красная линия ул. Криворожская. Днепр, ул. Криворожская 12
50 000 $
714 $ за м²
4-кімн 70 м² 1/5 п

Продам помещение 1 эт. не жилой фонд, красная линия ул. Криворожская-ул. Братьев Горобцив, 2 комнаты, выполнен современный качественный ремонт, индивидуальное газовое отопление, мебель, сигнализация, своя индивидуальная парковка.

Продам помещение 1 эт. не жилой фонд, красная линия ул. Криворожская.
Продам помещение 1 эт. не жилой фонд, красная линия ул. Криворожская. Дніпропетровська область, Дніпро, Чечелівський
50 000 ₴
50 000 ₴ за м²
70 м² 1/5 п

Продам помещение 1 эт. не жилой фонд, красная линия ул. Криворожская-ул. Братьев Горобцив, 2 комнаты, выполнен современный качественный ремонт, индивидуальное газовое отопление, мебель, сигнализация, своя индивидуальная парковка.

Продам помещение 688, 8 м2 на пр. А. Поля в г. Днепр
Продам помещение 688, 8 м2 на пр. А. Поля в г. Днепр Дніпропетровська область, Дніпро, Чечелівський
130 000 ₴
130 000 ₴ за м²
688 м² 1/1 п

Продам помещение по адресу: г. Днепр, пр. А. Поля, 137К. / (пр. Кирова 137К) Помещение включает в себя первый и цокольный этажи, общей площадью 688, 8 кв. м.: 1 этаж 463, 1 кв. м. Цоколь 225,7 кв. м. Указана условная цена.

Продаж станції автообслугвування. Земля 53.9 соток
Продаж станції автообслугвування. Земля 53.9 соток Дніпропетровська область, Дніпро, Шевченківський
132 000 $
2 444 $ за м²
54 м² 1/1 п

Продаж станції автообслуговування за адресою проспект Богдана Хмельницького 155 б ( на разі станція не діє) Земельна ділянка 53.9 соток (строковий договір оренди ) На території розміщені об'єкти нерухомого майна: одноповерхова капітальна будівля та підземні резервуари, а також інші об'єкти інфраструктури: існують виходи інженерних мереж, зелені насадження та поріст; доступ до земельної ділянки обмежений, земельна ділянка огороджена залізобетонною огорожею. Зручне місцерозташування, гарні під'їздна дорога.

Продам офис-магазин 31м2 Пр. Богдана Хмельницького.
Продам офис-магазин 31м2 Пр. Богдана Хмельницького. Дніпропетровська область, Дніпро, Чечелівський
24 000 $
774 $ за м²
31 м² 1/5 п

В помещении сделана свежая косметика. Все комуникации. Заменены. Идеально подойдет под бизнес онлайн-продажи. Клиенты легко вас найдут самостоятельно, а курьер быстро доставит ваш товар в 4 ближайших района: пр. Поля, Титова, Подстанция, Центр под носом и прямая дорога на левый берег. Можно приобрести с арендатором и зарабатывать 102000 грн в год -10% годовых. Капитализация вложений за 10 лет на 100%. Єсть видеообзор по запросу !

Продам цех в центре Днепра ( Комбаиновый завод, пл. Островського )
Продам цех в центре Днепра ( Комбаиновый завод, пл. Островського ) Дніпропетровська область, Дніпро, Чечелівський
600 000 $
1 200 $ за м²
500 м² 1/2 п

Продам свой цех в центре Днепра (Комбайновый завод, пл. Островского) Продам собственное производственно-складское помещение после капитального ремонта из качественных материалов. Площадь - 500 м². Сейчас выполняются отделочные работы и подготовка к заливке бетонного пола. Будущий владелец может внести изменения под свой бизнес. Местоположение: Центр города, правый берег, район пл. Островского (рядом авто и ж/д вокзалы, Новая почта №6). Удобная транспортная развязка и подъезд с 3 сторон, рядом трамвай и маршрутки. Характеристики: • Высота до крыши - 8,3 м, до фермы - 5,22 м • Ворота роллетные 6 × 4,2 м • 2-й этаж: офис, санузел, коридор (10,1 × 5,05 м) • Бытовое помещение 20 × 3,71 м • Двор 22 × 12 м • Электроэнергия - 75 кВт (возможность увеличения) • Вода и канализация подключены Цена: 600 000 $ Юрий - 09*********35 Подходит для: СТО, производства (пищевое, медицинское, косметика и др. ), склада, логистики, оптовой или розничной торговли.

12Кв Кротова Красная линия!
12Кв Кротова Красная линия! Дніпропетровська область, Дніпро, Чечелівський
125 000 $
208 $ за м²
600 м²

Производственный участок, приватизирован, 60 соток, находится прям на развязке возле заправки Авиас, правильной формы, два въезда на участок с разных улиц, удобные подъездные пути, развязка на Криворожское шоссе, относительно удобный выезд на Запорожское шоссе.

Продам помещение 150 м2 в оживленном месте, Рабочая 75, проф. Герасюты
Продам помещение 150 м2 в оживленном месте, Рабочая 75, проф. Герасюты Дніпропетровська область, Дніпро, Чечелівський
73 000 $
973 $ за м²
75 м² 1/14 п

Продам помещение 150 м2 в оживленном месте, Рабочая 75, проф. Герасюты + общая площадь: 150 м2 + этаж: 1/14 + удачное местоположение + рядом плотный человеческий трафик, школа, почта, магазины АТБ, Эва, Prostor, Добробут, рынок + нежилой фонд + помещение под ваш ремонт + два отдельных входа с разных сторон дома + просторный зал, отдельные комнаты, лоджия, санузел + за два десятка метров - ул. Рабочая, остановки маршрутного транспорта + перспективно под салон услуг, студию красоты, магазин, клинику, компьютерный клуб, офис и т. д. Достойный вариант для успешного бизнеса! Цена: 73 000 $ Не упускайте возможность, звоните сейчас! Соседко Дмитрий, АН Риелтор Днепр ул. Мечникова 10 Б, офис 705

Продаж промислової бази
Продаж промислової бази Дніпропетровська область, Дніпро, Чечелівський
120 000 $
254 $ за м²
473 м²

Продаж промислової бази Площа ділянки 50 сотих На ділянці є дві будівлі. великий склад - будівля 473 м2, Склад - будівля має два приміщенні з двома воротами Офісне приміщення 242 м2, офіс має два поверхи та два окремі входи на кожен поверх

Продам отдельно стоящее здание на Рабочей, красная линия.
Продам отдельно стоящее здание на Рабочей, красная линия. Дніпропетровська область, Дніпро, Центральний
420 000 $
300 $ за м²
1400 м² 1/2 п

Продам 2х этажное здание + производстенное помещение 1400 кв. м земли 20 соток, красная линия, середина ул. Рабочая 82 Первый этаж рабочий магазин, На втором этаже офисы Второе здание сдаётся в аренду под производство и склады, так же есть подвальное помещение, сдаётся в аренду под магазин. По всем вопросам звоните. Цена 420000 $ торг Больше информации и фото скину по желанию.

Продам приміщення 150 м2 у жвавому місці, Робоча 75, проф. Герасюти
Продам приміщення 150 м2 у жвавому місці, Робоча 75, проф. Герасюти Дніпропетровська область, Дніпро, Чечелівський
75 000 $
500 $ за м²
150 м² 1/14 п

Продам приміщення 150 м2 у жвавому місці, Робоча 75, проф. Герасюти + Вдале місце розташування + Поруч щільний людський трафік, школа, пошта, магазини АТБ, Ева, Prostor, Добробут, ринок! + Поверх 1/14 + Нежитловий фонд + Приміщення під ваш ремонт + Два окремих входи з різних сторін будинку! + Просторий зал, окремі кімнати, лоджія, санвузол + За два десятки метрів - вул. Робоча, зупинки маршрутного транспорту + Перспективно під салон послуг, студію краси, магазин, клініку, комп'ютерний клуб, офіс та ін. Гідний варіант для успішного бізнесу! Ціна 75 000 $. Не втрачайте можливість! Телефонуйте зараз! З повагою, Олександр Семенець АН Рієлтор Дніпро, вул. Мечникова 10Б, офіс 705

Відкрити карту Карта