12 525 об'єктів

Продаж комерційного приміщення на вул. Шевченко 4, площа 210 кв. м • ID 33925369
Продаж комерційного приміщення на вул. Шевченко 4, площа 210 кв. м • ID 33925369 Шевченко вулиця, Ліски (Одеса), вул. Шевченко 4, площа 210 кв. м • ID 33925369
385 000 $
1 833 $ за м²
210 м² 1/2 п

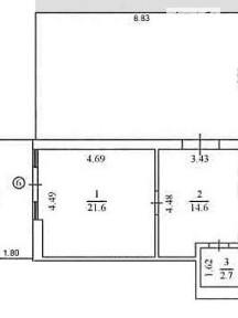
ПРОДАЖ БУДИНКУ НА МОРСЬКІЙ СТОРОНІ | ПІД ОРЕНДУ АБО РЕАБІЛІТАЦІЙНИЙ ЦЕНТР Лески, вул. Шевченка район Тартуса, морська сторона Продається капітальний 2-поверховий будинок з двома окремими входами, ідеально підходящий для бізнесу: оренда номерів, міні-готель, реабілітаційний або оздоровчий центр, а також для комбінованого проживання + доходу. Загальна площа: 210 м² Будинок функціонально розділений на дві частини: житлова зона комерційна зона під номери Характеристики будинку: збудований з ракушняка утеплений мінеральною ватою та цеглою щільності 600 дах металочерепиця по всьому дому тепла підлога Планування: - 8 кімнат - 4 санвузли - 2 кухні - 2 окремих входи - зручно для розділення потоків клієнтів і мешканців Розташування та інфраструктура: Уся необхідна інфраструктура за 5 хвилин: супермаркет, школа, дитячий садок, поліклініка. 2 ресторани на березі моря. Тихий район, незаплямоване повітря відмінно підходить для реабілітації та відпочинку. Додаткові можливості по землі: можна купити 5 соток зі сторони ролетів 10 соток з боку лісу перед домом є закинута ділянка 7 соток можлива оренда на 49 років. Ціна: 385 000 у. о. Всі документи готові до нотаріальної угоди Ніхто не прописаний. повна юридична чистота Чудова пропозиція для інвесторів та бізнесу біля моря. Телефонуйте - об'єкт готовий до угоди.

Продаж Склад/Виробництво 7500 кв. м.
Продаж Склад/Виробництво 7500 кв. м. Київська обл. смт. Рокитне
381 000 $
381 000 $ за м²
20-кімн 7500 м² 1/1 п

Продаж промислового підприємства в смт Рокитне, Київська область Локація: Київська область, Рокитнянський район, смт Рокитне. Загальна площа земельної ділянки: 1,6156 га Загальна площа будівель: 7 511 м² Склади для зберігання: 1 942 м² (бетон, армований) 1 700 м² (бетон, армований) 2 700 м² (бетон, армований) Складські приміщення (комора) : 301 м² Навіс: 480 м² Матеріальний склад: 356 м² Асфальтоване покриття: 3 000 м² Електропостачання: КТП на 150 кВт Артезіанська свердловина глибиною 80 м Ціна: $381 163 тел+ **********

Продаж Виробництво-Склад 5000 кв. м.
Продаж Виробництво-Склад 5000 кв. м. Київська область смт. Рокитне
1 250 000 $
250 $ за м²
10-кімн 5000 м² 1/1 п

Продається готовий виробничо-логістичний комплекс з сучасною лінією фасування зернових та сипучих продуктів. Ідеально розташований у смт Рокитне, Київська область Тип: Виробничо-логістичний комплекс Загальна площа будівель: 5 000 м² Земельна ділянка: 1,68 га (приватна власність), землі промисловості. Рік побудови: Після 2015 року Розташування: смт Рокитне, Київська область 100 км від Києва 2 км до залізничної станції "Рокитне" ⚙️ Виробничі потужності та інфраструктура: Фасувальний цех (400 м²) : Продуктивність: 60 т/год (біг-беги), 20 т/год (мішки). Призначення: Фасування зернових, борошна, цукру, мінеральних добрив. Складські приміщення: Основний склад (бетон, армований) : 2 080 м² Додаткові склади: 500 м² Бітумосховища: 827 м² Адміністративна будівля (120 м²) : Офіси, побутові кімнати, кухня. Автомобільні ваги: до 30 т Залізничні ваги: до 80 т Власна залізнична колія (576 м, до 5 вагонів) Асфальтоване покриття: 3 912 м² КТП: 250 кВт Артезіанська свердловина: 70 м Газопостачання: власне ГРП Каналізація: септик Електропостачання та опалення: комбіноване Вартість об'єкта: 1 250 000 USD тел. + **********

Продаж комерційного приміщення на вул. Святослава Хороброго 31, площа 100 кв. м • ID 33968021
Продаж комерційного приміщення на вул. Святослава Хороброго 31, площа 100 кв. м • ID 33968021 вулиця Святослава Хороброго, мікрорайон Центр, район Шевченківський, Дніпро, вул. Святослава Хороброго 31, площа 100 кв. м • ID 33968021
100 000 $
1 000 $ за м²
100 м² 1/5 п

Продам, приміщення в центрі. Кут Святослава Хороброго та Воскресенська. Перший поверх. Загальна площа 100 кв. м. Припливно-витяжна вентиляція в коробах. За 380 метрів під землею є окрема лінія притоку. 10 кВт. Можна збільшити, три фази. Телефонуйте.

Продаж офісного приміщення 123.3 кв. м. на 1 поверсі на вул. Левка Лук'яненка 16Б, десятиповерхова будівля • ID 33741208
Продаж офісного приміщення 123.3 кв. м. на 1 поверсі на вул. Левка Лук'яненка 16Б, десятиповерхова будівля • ID 33741208 вулиця Левка Лук'яненка, мікрорайон Тяжилів, район Замостянський, Вінниця, вул. Левка Лук'яненка 16Б, десятиповерхова будівля • ID 33741208
369 900 $
3 007 $ за м²
123 м² 1/10 п

Шукаєте комерцію від забудовника - зверніть увагу на ЖК Lavanda Park. Це сучасна новобудова в районі з розвиненою інфраструктурою - Вінниця, рн Замостянський, Ватутіна, 16Б. ЖК Lavanda Park відрізняється зручним розташуванням, оскільки в безпосередній близькості від нього є: школа, дитячий садок, тц, ринок, магазини, паркові зони, транспортна розв'язка, кафе, кав'ярня, ресторан, багаторівневий паркінг. Зараз у продажі комерція з сучасним комфортним плануванням на 1 поверсі 10-и поверхового будинку. На даний момент в цьому об'єкті вже побудовано - 2 секції. Забудовник - БМУ-6.

Продаж окремої комерційної будівлі вул. М. Лобачевського, 4 - Львів, Шевченківський район
Продаж окремої комерційної будівлі вул. М. Лобачевського, 4 - Львів, Шевченківський район м. Львів, Лобачевського, 4
150 000 $
1 485 $ за м²
7-кімн 101 м² 2/2 п

Продаж окремої комерційної будівлі вул. М. Лобачевського, 4 - Львів, Шевченківський район Ціна: 150 000 $ Продається окрема комерційна будівля, яка підходить як для власного бізнесу, так і під інвестицію в оренду. Загальна площа - 101,3 м² Додатково - близько 40 м² облаштованого горища Поверховість - 2 рівні Тип - окрема будівля Кількість основних приміщень - 5 кімнат на першому рівні Планування та можливості ✔ 1-й рівень - кілька окремих приміщень, зручно переплановується під кабінети / студії / офіс ✔ 2-й рівень - кімнати, можливе використання під офісні або допоміжні зони ✔ Облаштоване горище - додатковий простір під склад або технічну зону Технічні переваги ✔ індивідуальне опалення ✔ всі міські комунікації ✔ сигналізація та відеоспостереження ✔ окремий зручний вхід Формат використання Приміщення ідеально підійде під: - офіс - медичні або б'юті-кабінети - студію / навчальний простір - коворкінг - склад або невелике виробництво - орендний бізнес Спокійний комерційний район із сформованим оточенням та постійним попитом на послуги. Деталі та перегляд - за телефоном.

Без %! Унікальна пропозиція будівля VIP рівня 572м Андріївський узвіз Поділ!
Без %! Унікальна пропозиція будівля VIP рівня 572м Андріївський узвіз Поділ! м. Київ, вул. Андріївський узвіз, 7А
3 000 000 $
5 245 $ за м²
9-кімн 572 м² 1/3 п

Без %! Унікальна пропозиція будівля VIP рівня 572м Андріївський узвіз Поділ! Подільський р-он, вул. Андріївський узвіз Унікальна пропозиція на ринку нерухомості! Будинок з столітньою історією на історичній вулиці Києва! Статусний офіс для компанії, резиденції чи представництва! Ділянка 11,6 соток з правом постійного користування. Загальна площа 572 кв. м. 2 поверхи, підвал, мансарда. Площа поверху 180 кв. м. 1 поверх - зона ресепшн, конференц зал, кабінети, приміщення для охорони. 2 поверх - кабінети, кухня, с/в. Мансарда - чудова зона відпочинку з барною стійкою та сауною. Ремонт: ексклюзивний авторський проект в класичному стилі для найвибагливіших поціновувачів Коштовний декор - паркет із дорогих порід дерев, мармур, граніт, унікальні вітражі, дорогий текстиль, італійські ексклюзивні меблі тільки підкреслюють статус влсника Комунікації: всі центральні комунікації, спліт і канальна система кондиціонування, власна нова котельня. Система відеоспостереження, СКД. Паковка для 8-10 авто. Розташування в серці історичного Подолу робить дану пропозицію вдалим інвестуванням! Ви купуєте не будинок, ви стаєте власником частини історії Києва! Ціна 3 000 000 у.е. Без комісії!

Продаж спеціального приміщення на просп. Коцюбинського, площа 275 кв. м • ID 25816428
Продаж спеціального приміщення на просп. Коцюбинського, площа 275 кв. м • ID 25816428 Коцюбинського проспект, район Замостянський, Вінниця, просп. Коцюбинського, площа 275 кв. м • ID 25816428
225 000 $
818 $ за м²
275 м² 1/1 п

До вашої уваги торгівельні плоші на Центральному ринку, обєкт складається із 6 примішень і розташований на 4 сотках приватизованої землі! Міські комунікації, ремонт, з орендарями. Перспективне місце для вашого бізнесу чи в якості інвестицій, можливість розширення. Торг при наявності реальних пропозицій. Усі уточнення по телефону, запрошуємо вас на перегляд!

Продаж спеціального приміщення на вул. Героїв Крут, площа 91 кв. м • ID 26649432
Продаж спеціального приміщення на вул. Героїв Крут, площа 91 кв. м • ID 26649432 вулиця Героїв Крут, мікрорайон Замостя, район Замостянський, Вінниця, вул. Героїв Крут, площа 91 кв. м • ID 26649432
65 000 $
714 $ за м²
91 м²

Продаж комерційного приміщення на Замості. Цоколь із вікнами. Окремий вхід, ремонт, система кондиціювання. На даний час є орендарі. Можна розглядати під офіс, об'єкт сфери послуг, в якості інвестиції, чи пропонуйте Ваш варіант. Запрошую до перегляду!

Продаж спеціального приміщення на вул. Східна, площа 195 кв. м • ID 26907033
Продаж спеціального приміщення на вул. Східна, площа 195 кв. м • ID 26907033 Східна вулиця, район Богунський, Житомир, вул. Східна, площа 195 кв. м • ID 26907033
99 999 $
513 $ за м²
195 м² 1/1 п

Пропонуємо на продаж комерційну нерухомість - приміщення їдальні, окремо стояча будівля, яка розташована на території найбільшого автотранспортного підприємства в місті Житомир. Площа приміщення: 195 м², що створює комфортну та простору їдальню з достатньою кількістю місць для обслуговування клієнтів. Всі центральні комунікації (електропостачання, водопостачання, каналізація, газ) підведені до приміщення, що робить його готовим до ведення бізнесу. Будівля розташоване на території найбільшого автотранспортного підприємства в місті Житомир, що забезпечує високий потік потенційних клієнтів. Приміщення після капітального ремонту криші, досить просторе та світле, що є ідеальним варіантом для створення затишної їдальні з сучасним дизайном. Перекриття будівлі залізобетонні, що дає можливість добудову другого та навіть третього поверхів, що дозволить збільшити потенціал для прибутковості та розвитку бізнесу. Це відмінна можливість для підприємців, які бажають вкласти кошти у готовий бізнес або розпочати новий, власний на території активного автомобільного підприємства. Для отримання більш докладної інформації та організації перегляду приміщення, будь ласка, зв'яжіться з нами. ЕКСКЛЮЗИВНА ПРОПОЗИЦІЯ!

Продаж спеціального приміщення на просп. Шевченка, площа 79.7 кв. м • ID 33225283
Продаж спеціального приміщення на просп. Шевченка, площа 79.7 кв. м • ID 33225283 Шевченка проспект, район Приморський, Одеса, просп. Шевченка, площа 79.7 кв. м • ID 33225283
250 000 $
3 165 $ за м²
79 м² 1/5 п

Продається повністю укомплектоване кафе площею 80 м² у самому серці Одеси перший поверх житлового будинку, окремий фасадний вхід, мармуровий ґанок з двох боків. Основні переваги: Введено в експлуатацію у 2014 році всі документи в порядку Електропостачання: 4×25 кВт, автомат 63А Повне водопостачання та каналізація, резервуар 100 л Сучасна вентиляція та нові кондиціонери (встановлені у 2024 році) Сигналізація, POS-система, аудіообладнання Дубова столярня, стильний інтер'єр Повністю обладнана кухня: Електро- та індукційні плити, піца-піч, тістоміс Холодильники, морозильники, фритюр, слайсер, бойлер, конвектомат Робочі зони з нержавіючої сталі, овочерізка, посуд Інтер'єр та зал: 9 столів, м'які меблі, декоративне оформлення Барна стійка, кавоварка, охолоджувач напоїв Кондитерська вітрина, холодильник з трьома скляними дверима Літній майданчик: вуличні меблі, парасольки, квіткові стійки, світлове оформлення Ідеально підходить для запуску кафе, гастробару чи авторського проекту. Все готове для роботи без додаткових вкладень. Телефонуйте для перегляду та отримання детальної інформації. 209775 Продаётся полностью укомплектованное кафе площадью 80 м² в самом сердце Одессы первый этаж жилого дома, отдельный фасадный вход, мраморное крыльцо с двух сторон. Основные преимущества: Введено в эксплуатацию в 2014 году все документы в порядке Электроснабжение: 4×25 кВт, автомат 63А Полное водоснабжение и канализация, резервуар 100 л Современная вентиляция и новые кондиционеры (установлены в 2024 году) Сигнализация, POS-система, аудиооборудование Дубовая столярка, стильный интерьер Полностью оборудованная кухня: Электро- и индукционные плиты, пицца-печь, тестомес Холодильники, морозильники, фритюр, слайсер, бойлер, конвектомат Рабочие зоны из нержавеющей стали, овощерезка, посуда Интерьер и зал: 9 столов, мягкая мебель, декоративное оформление Барная стойка, кофемашина, охладитель напитков Кондитерская витрина, холодильник с тремя стеклянными дверями Летняя площадка: Уличная

Продаж комерційного приміщення на вул. Машинобудівна, площа 904 кв. м • ID 30087150
Продаж комерційного приміщення на вул. Машинобудівна, площа 904 кв. м • ID 30087150 вулиця Машинобудівна, район Шевченківський, Київ, вул. Машинобудівна, площа 904 кв. м • ID 30087150
1 451 200 $
1 605 $ за м²
904 м² 1/10 п

Продається комерційна площа загальною площею 904 квадратні метри з фасадом на одну вулицю в ЖК на першому поверсі. Відмінне розташування у новому житловому комплексі робить цю нерухомість ідеальним варіантом для різноманітних бізнес-проектів. Площу можна придбати як повністю, так і частинами, залежно від потреб клієнта. Можливий продаж окремих приміщень. У будівлі є всі необхідні комунікації та інфраструктура: електрика, водопостачання, каналізація та опалення. Є заїзд під габаритні вантажівки для розвантаження товару! Комерційна нерухомість знаходиться у відмінному стані, але ми надаємо ремонтні канікули, щоб ви могли адаптувати приміщення під свої потреби. Умови покупки обговорюються індивідуально. Телефонуйте та приходьте на перегляд! #315917.354108

Продаж комерційного приміщення на вул. Січеславська Набережна 39Б, площа 51 кв. м • ID 30745710
Продаж комерційного приміщення на вул. Січеславська Набережна 39Б, площа 51 кв. м • ID 30745710 вулиця Січеславська Набережна, район Соборний, Дніпро, вул. Січеславська Набережна 39Б, площа 51 кв. м • ID 30745710
95 000 $
1 863 $ за м²
51 м² 1/36 п

Продам приміщення в ЖК Маяк Багатофункціональний комплекс преміум класу Приміщення підходить для розміщення: магазину, студії, послуг медичного спрямування, індустрії краси тощо. Площа приміщення 51 м². Стан після будівельників. Введення в експлуатацію. Ціна 95 000$ З повагою, Анастасія Коломієць. Рада Вас чути, телефонуйте.

Продаж комерційного приміщення на вул. Бульварно-Кудрявська 15А, площа 40.04 кв. м • ID 30769488
Продаж комерційного приміщення на вул. Бульварно-Кудрявська 15А, площа 40.04 кв. м • ID 30769488 вулиця Бульварно-Кудрявська, район Шевченківський, Київ, вул. Бульварно-Кудрявська 15А, площа 40.04 кв. м • ID 30769488
200 200 $
5 005 $ за м²
40 м² 1/15 п

Комерційне приміщення вільного призначення у ЖК "Ярославів Град", Бульварно-Кудрявська, 15а, Шевченківський р-н Особливість цього приміщення у наявності додаткового входу, розташованого зліва від ескалаторів, що ведуть на -1 поверх супермаркету NOVUS, не заходячи на закриту територію ЖК. Наразі ці двері закриті декоративною обшивкою, повний цикл демонтажу якого займе лічені дні. Другий вхід, з класичною вхідною групою, розташований на території комплексу, одразу після приміщення охорони, біля воріт на Бульварно-Кудрявську, тож, відвідувачам Вашого бізнесу не потрібно буде блукати територією із навігатором. Також варто зазначити індивідуальну систему відкриття магнітного замку на воротах зсередини приміщення, не звертаючись на охорону. Стан приміщення: після забудовника, без ремонту Площа: 40.04 m2 Заведені всі комунікації: 30 кВт електроенергії, три фази вода, каналізація 3 1 5 9 1 7 3 5 4 9 8 4

Продаж комерційного приміщення на просп. Небесної Сотні, площа 1149 кв. м • ID 31261687
Продаж комерційного приміщення на просп. Небесної Сотні, площа 1149 кв. м • ID 31261687 проспект Небесної Сотні, район Київський, Одеса, просп. Небесної Сотні, площа 1149 кв. м • ID 31261687
1 000 000 $
870 $ за м²
1149 м² 3/7 п

Продаж комерційного приміщення в новому бізнес-центрі на вул. Небесні сотні. Загальна площа 1149 м2 із виходом на велику відкриту терасу (дах торгового центру). Приміщення вільного планування відмінно підходить під розміщення ресторану з літньою терасою. Акварель 5 - це новий проект від Групи компаній Акварель площею 8630 кв. Поєднує в собі Бізнес-Центр з офісними приміщеннями від 25 кв. м та Торгово-розважальний центр з бутіками, кінотеатром, спортивним клубом, фудкортом та дитячим розважальним центром.

Продаж комерційного приміщення на просп. Небесної Сотні, площа 42 кв. м • ID 31261723
Продаж комерційного приміщення на просп. Небесної Сотні, площа 42 кв. м • ID 31261723 проспект Небесної Сотні, район Київський, Одеса, просп. Небесної Сотні, площа 42 кв. м • ID 31261723
38 830 $
925 $ за м²
42 м² 5/7 п

Продаж комерційного приміщення в новому бізнес-центрі на вул. Небесні сотні. Загальна площа 42.67 м2 з видом на житловий масив. Приміщення вільного планування відмінно підходить під офіс. Є можливість придбати на виплат. Акварель 5 - це новий проект від Групи компаній Акварель площею 8630 кв. Поєднує в собі Бізнес-Центр з офісними приміщеннями від 25 кв. м та Торгово-розважальний центр з бутіками, кінотеатром, спортивним клубом, фудкортом та дитячим розважальним центром.

Продаж комерційного приміщення на вул. Барвінських Родини 3, площа 104.6 кв. м • ID 31250534
Продаж комерційного приміщення на вул. Барвінських Родини 3, площа 104.6 кв. м • ID 31250534 вулиця Барвінських Родини, район Центр, Тернопіль, вул. Барвінських Родини 3, площа 104.6 кв. м • ID 31250534
115 000 $
1 106 $ за м²
104 м² 1/7 п

Приміщення вільного призначення у центрі міста по вулиці Родини Барвінських 3 Навпроти знаходиться стоматологічна клініка Прощених та декілька відділень банків, та ресторан. Сусіднє приміщення уже має орендаря що збільшить прохідність Монолітний будинок Стіни з керамоблоку, Підведені усі комунікації Утеплений пінополістиролом (пінопластом) -площа 104, 6 м2 з окремим входом -Переоформлення по переуступупці Без будь яких комісій для покупця Планується ремонт то ціна буде збільшена

Продаж комерційного приміщення на вул. Саперне Поле, площа 381 кв. м • ID 31252990
Продаж комерційного приміщення на вул. Саперне Поле, площа 381 кв. м • ID 31252990 Саперне Поле вулиця, район Печерський, Київ, метро Либідська, вул. Саперне Поле, площа 381 кв. м • ID 31252990
896 290 $
2 352 $ за м²
381 м² 2/24 п

Продаж комерційної нерухомості в преміальному ЖК Бульвар Фонтанів, вул. Іоанна Павла 2/ Патріса Лумумби, Печерський район. Площа 381.4м2 Поверх 2 Усі комунікації заведено. Висота стелі 4, 5м. Стан: після будівельників є можливість збільшити площу за рахунок об'єднання з сусідніми приміщенням 191м2 і 154м2. Переваги ЖК Бульвар Фонтанів: - закрита територія з воєнізованою охороною, відеоспостереження, «двір без машин» - багаторівневий підземний паркінг - гостьові вестибюлі та консьєржі у кожному парадному - панорамне скління - чудова можливість милуватися прекрасним видом - Зручна транспортна розв'язка, розвинена інфраструктура 2 2 8 8 8

Продаж комерційного приміщення на шосе Хмельницьке, площа 1300 кв. м • ID 31646498
Продаж комерційного приміщення на шосе Хмельницьке, площа 1300 кв. м • ID 31646498 Хмельницьке шосе, мікрорайон Барське шосе, район Ленінський, Вінниця, шосе Хмельницьке, площа 1300 кв. м • ID 31646498
850 000 $
654 $ за м²
1300 м² 1/2 п

Логістичний, багатофункціональний, сучасний комплекс. Чудова транспортна розвязка. Можливість підїзду великогабаритного транспорту. Фасадне розташування щодо центральної траси Хмельницьке шосе. Характеристика Площа 1300 м2: Складські приміщення 1000 м2 - Висота від 6, 5 до 9 м ( у центрі) - два підїзди, один з них з рампою. Адмін приміщення 300 м. - двохповерхове, цегляне, утеплене мінеральною ватою ( 10 см. ); - з ремонтом, під ключ, : плитка, фарбовані стіни, розетки. - два санвузли із встановленою сантехнікою. Комунікації Власна трансформаторна підстанція -70 кВт. Скважина - 30 м3. Дві дренажні ями для водовідведення води. Опалення і для адмін і для складу: Теплові насоси. Освітлення периметру приміщення. У приміщенні встановлені монтажні блоки для розподілення енергії. Земельна ділянка: 50 соток Комерційного призначення. Детальну інформацію надам при зустрічі!

Продаж комерційного приміщення на вул. Поштова, площа 469.7 кв. м • ID 32800489
Продаж комерційного приміщення на вул. Поштова, площа 469.7 кв. м • ID 32800489 Поштова вулиця, Сахнівці (Староконстантинів), вул. Поштова, площа 469.7 кв. м • ID 32800489
94 546 $
202 $ за м²
469 м² 1/1 п

ПРОДАЄТЬСЯ будівля столярного цеху (с. Сахнівці, Хмельницька обл) Вид технічної інвентаризації - будівля виробничого призначення Адреса: вул. Центральна 61/1, с. Сахнівці, Старокостянтинівська ТГ, Старокостянтинівський р-н, Хмельницька обл. Площа земельної ділянки 0, 299 га Площа будівлі столярного цеху 469, 7 кв м Основна площа 348, 9 Допоміжна (підсобна) площа 120, 8 Висота приміщень - 4.02 м Стан будівлі - б/у Підлога - бетон Покрівля - азбесто-цементні хвилясті листи Стіни - цегла План будівлі -виробничий цех -сушка з котельнею -два підсобних приміщення -коридор -фарбувальне приміщення Комунікації: Вода - є своя свердловина (потрібує чистки). Опалення - наявні труби, але відсутній котел, тому опалення через валеріан/буржуйку. Інтернет: підведений кабель, за сплати абонентського користування може бути відновлено постачання. Вбиральня - на вулиці (каналізація відсутня). Електропостачання та освітлення - так. Інфраструктура Будівля розташована при в'їзді в с. Сахнівці. Заїзд - з центральної дороги, хороша транспортна розв'язка. При з'їзді з центральної дороги близько 300 м - грунтова. Поруч з будівлею складські приміщення агрохолдингу. Цех розташований у затишній зоні на окраїні НП. Поруч - ставок та поле. Найближчий продуктовий магазин - в районі 5 хв авто. До м. Старокостянтинів - 15 км. Обладнання: -деревообробні станки -пилорама Будівля продається разом з усім обладнанням. Можлива оренда від 300 дол/місяць. Можливий продаж під виплату/кредит строком до 3 років. Вартість: 80 000 євро, можливий торг. Будівля не готувалась під продаж. Контакти: +XX XXX XX XX 217 - Катерина (телефонувати з 09.00 до 20.00) +XX XXX XX XX 340 - Анатолій (whatsapp)

Відкрити карту Карта