6 об'єктів

Здається комерційне приміщення на вул. Салютна 2 корпус 6, площа 30 кв. м • ID 33144206
Здається комерційне приміщення на вул. Салютна 2 корпус 6, площа 30 кв. м • ID 33144206 Салютна вулиця, район Шевченківський, Київ, метро Нивки, вул. Салютна 2 корпус 6, площа 30 кв. м • ID 33144206
27 000 ₴
30 м² 1/9 п

Оренда фасадного комерційного приміщення від ВЛАСНИКА на 1 поверсі в сучасному ЖК Файна Таун по вул. Салютна, 2, буд. 6. - Призначення: приміщення ідеально підходить для відкриття магазину.е. о-лавки, книгарні, броварні "to go" (межує з винним бутіком "OK Wine"), салону краси, зоомагазину або ветпослуг (знаходиться на прогулянковій променаді з домашніми улюбленцями), приймального пункту хімчистки або інших побутових послуг, аптеки (межує з діючою Dental Clinic). Площа: 29, 6 м² Поверх: 1 поверх /9-ти поверхового Стан: після будівельників (під ремонт). Планування «open space», фасадний вхід з панорамними вікнами, висота стелі 3, 8 м. У приміщенні встановлені лічильники, заведені комунікації -вода, тепло та електрика. Внутрішнє розведення не виконане є можливість облаштувати під власні потреби. Централізоване теплопостачання, пожежна сигналізація. Орендна ставка: 900 грн/м2. ТОРГ! Комунальні послуги: оплачуються окремо Переваги: Великий житловий комплекс на більше ніж 8 000 квартир, а це близько 20000 жителів, які активно користуються послугами на території комплексу. Приміщення розташоване в будинку 6, самий центр ЖК (район з великою прохідністю), максимально обжиті будинки, поруч школа, що забезпечить вашому бізнесу видимість та доступність. Вигідне розташування 10 хвилин до метро, за 150 метрів розташовані зупинки наземного транспорту, зручний підїзд на власному авто. Локація: ЖК « Файна Таун » розташувався в Шевченківському районі м. Києва, у кварталі, що формується вулицями Салютна, Щербаківського, Естонська та Туполєва. До метро «Нивки» близько 10-15 хвилин. мови: мінімальний строк оренди 1-3 роки, орендні канікули на ремонт по домовленості. Звертайтеся за деталями та переглядом приміщення (XXX) XXX-XX-XX (XXX) XXX-XX-XX Telegram, Viber Тетяна

Здається комерційне приміщення на вул. Салютна 2 корпус 6, площа 48 кв. м • ID 33144452
Здається комерційне приміщення на вул. Салютна 2 корпус 6, площа 48 кв. м • ID 33144452 Салютна вулиця, район Шевченківський, Київ, метро Нивки, вул. Салютна 2 корпус 6, площа 48 кв. м • ID 33144452
43 200 ₴
48 м² 1/9 п

Оренда комерційного фасадного приміщення від ВЛАСНИКА на 1 поверсі в сучасному ЖК Файна Таун по вул. Салютна, 2, буд. 6. - Призначення: приміщення ідеально підходить для відкриття магазину.е. о-лавки, книгарні, кафе або броварні "to go" (межує з винним бутіком "OK Wine"), салону краси, зоомагазину або ветпослуг (знаходиться на прогулянковій променаді з домашніми улюбленцями), приймального пункту хімчистки або інших побутових послуг, аптеки (межує з діючою Dental Clinic). - Площа: 48, 0 м² - Поверх: 1 поверх /9-ти поверхового (два окремих фасадних входи) - Стан: після будівельників (під ремонт). Планування «open space», два окремих фасадних входи (на дві сторони будинку), фасадні панорамні вікна, висота стелі 3, 5 м. (облаштовано звукопоглинання). У приміщенні встановлені лічильники, заведені комунікації -вода та електрика. Внутрішнє розведення не виконане є можливість облаштувати під власні потреби. Централізоване теплопостачання, пожежна сигналізація. - Умови оренди: Орендна ставка: 900 грн/м2 Комунальні послуги: оплачуються окремо Додаткові умови: мінімальний строк оренди 1-3 роки, орендні канікули на ремонт по домовленості. -Переваги: Приміщення має два окремих фасадних входи з різних сторін будівлі, що забезпечує зручний доступ для клієнтів та додаткові можливості видимості для бізнесу. Великий житловий комплекс на більше ніж 8 000 квартир, а це близько 20000 жителів, які активно користуються послугами на території комплексу. Приміщення розташоване в будинку 6, самий центр ЖК (район з великою прохідністю), максимально обжиті будинки, поруч школа, що забезпечить вашому бізнесу видимість та доступність. Вигідне розташування 10 хвилин до метро, за 150 метрів розташовані зупинки наземного транспорту, зручний підїзд на власному авто. - Локація: ЖК « Файна Таун » розташувався в Шевченківському районі м. Києва, у кварталі, що формується вулицями Салютна, Щербаківського, Естонська та Туполєва. До метро «Нивки» близько 10-15 хвилин.

Оренда комерційного фасадного приміщення ЖК <a href='/newbuilding/6369/view/zk-faina-taun'>Файна Таун</a> 31,6 м
Оренда комерційного фасадного приміщення ЖК Файна Таун 31,6 м Київ, Подільський, вулиця Салютна 2
800 ₴
31 м² 1/9 п

Оренда комерційного фасадного приміщення від ВЛАСНИКА, без ріелтора в ЖК Файна Таун за адресою, вулиця Салютна, 2, будинок 19-182 на першому поверсі площею 31,6 м кв. Вашій увазі пропонується одне з найкращих місць оренди для втілення Ваших мрій. Вказане приміщення розташоване в самому центрі, біля синього дитячого майданчика та відразу поряд з центральною променадою. Через приміщення постійних піший трафік в сусідні секції. Всі сусідні приміщення вже перебувають в оренді та вдало здаються, крім одного великого, яким володіє КАН та не виставляє його до продажу чи оренди. Приміщення середнім розміром в 32кв. м. підійде під будь яку сферу торгівлі чи послуг. Це буде вдалим початком Вашого бізнесу. Всі комунікації, пропонуються ремонтні канікули, орендар розглядається на довгострокову перспективу. Слід звернути увагу, що вказане приміщення не розташоване десь «за рогом» чи є напівпідвальне чи в глушині. Це ліквідний обʼєкт і точно вартий Вашої уваги. Всі питання будемо раді узгодити за телефоном. 1 поверх / 9-ти поверхового будинку (окремий вхід). Стан: під ремонт, після будівельників. Фасадні панорамні вікна, висота стелі в чистому вигляді 3,29м Комунікації: центральна каналізація, центральний водопровід, електрика, звукопоглинання. В приміщення встановлені лічильники Заведені комунікації - електрика, вода. Є можливість облаштування під власні потреби. Централізоване теплопостачання. Пожежна сигналізація. Умови оренди: • Орендна ставка: 800 грн/м2 • Комунальні послуги: оплачуються окремо • Додаткові умови: мінімальний строк оренди 1-3 роки, орендні канікули на ремонт по домовленості.

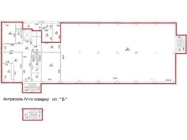
Оренда нежитлового приміщення.
Оренда нежитлового приміщення. Київська область, Київ, Шевченківський
59 600 ₴
993 м²

Оренда приміщення 4-го поверху, літ. «Б», площею 992,80 м2. Будівля розташована в Шевченківському районі міста Києва, місцевість Нивки. Поруч розвинена інфраструктура, зупинки маршрутного транспорту, супермаркети, бізнес-центри, фінансові заклади, 5 хв. від ст. м. «Нивки». Вхід з двору. Доступ 24/7. м. Київ, вул. Салютна, 5-А, літ. «Б» (В).

Оренда офісного приміщення на вул. Салютна 2 корпус 3, приміщень - 3, поверх - 1
Оренда офісного приміщення на вул. Салютна 2 корпус 3, приміщень - 3, поверх - 1 вул. Салютна, мікрорайон Нивки, район Шевченківський, Київ, метро Нивки, вул. Салютна 2 корпус 3, приміщень - 3, поверх - 1
49 860 ₴
52 м² 1/5 п

A.8.9.5.8 Пропонується в оренду ексклюзивне приміщення вільного користування в Житловому Комплексі Файна Таун. Основні характеристики: - Площа: Загальна кімната + 2 кабінети (з дверима); - Зручності: санвузол, службове приміщення (може використовуватися як міні-кухня або комірка); - Поверх: 1-й, з окремим фасадним входом; - Реклама: Можливість розміщення рекламної вивіски та вітринних вікон; - Електропостачання: Потужність 10 кВт (генератор відсутній); - Локація: Двері та вікно виходять на центральну алею ЖК, що налічує 8000 квартир. Підходить для таких видів діяльності: - Аптека; - Офіс; - Студія; - Barber shop; - Show room; - Міні-кафе або бістро; - Магазину органічних продуктів або здорового харчування; - Коворкінгу чи міні-офісу; - Книжкового магазину або бібліотеки; - Стоматології; - Захисного кабінету або клініки; - Туристичного агента або інформаційного центру; - Маленької галереї або виставкового простору; - Студії звукозапису; - Навчального центру або курсів; - Кабінету психолога; - Творчої студії для хобі; - Міні-лабораторія чи дослідницький центр. Запрошуємо до переглядів! Не втрачайте можливість реалізувати свої ідеї у цьому чудовому приміщенні!

ЖК “Файна Таун”, 84 м2, оренда приміщення
ЖК “Файна Таун”, 84 м2, оренда приміщення Київська область, Київ, Шевченківський
1 450 $
84 м² 1/9 п

Фасадне розташування на 1 поверсі/9 поверхового будинку, два фасадних входи з обох сторін будинку, площа 84 м2. Вітринні вікна, зроблено зонування приміщення ( два зали, підсобне приміщення, с/в). Зроблено ремонт. Попередній орендар - кафе. Призначення приміщення: магазин, офіс, кафе, салон краси, різні побутові послуги, будь-що. Ціна 1450 у.е. Комісія 50%

Відкрити карту Карта