16 об'єктів

Аренда целого здания, ул. Межигорская, Подол, метро Т. Шевченко
Аренда целого здания, ул. Межигорская, Подол, метро Т. Шевченко Київська область, Київ, Подільський
13 $
3300 м²

Пропонується до оренди комерційне приміщення повністю або частково. Окремо-стояча будівля в 3-х поверхах. Адреса: Центр Київа, Поділ, вул. Межигірська 55/20 Загальна площа 3300 м2 Заведено 300 кВт 1-й поверх (1000м2 - 20$м2) 2-й поверх (1150м2 - 16$м2) 3-й поверх (1150м2 - 13$м2) Можливий поділ на приміщення 30 - 200 м2 Опис локації: - високий автомобільний та пішохідний трафік, щільна житлова забудова; - сусіди: магнітні супермаркети (АТБ, ЕКО маркет), дрогери (Аврора) Великий потенціал локації. Закінчення будівництва - 4 кв. 2025 р. Можливий поділ приміщень згідно Вашої потреби. На даному етапі враховуються побажання по плануванню, внутрішньому та зовнішньому облаштуванню прилеглої території. Тридцять паркувальних місць, два заїзду з Оболонської та з Межигірської вулиць. Ідеально підходить під торгівлю (але не продуктову групу), офіс, навчальний заклад, медичний заклад, спорткомплекс, розважальний центр, дрогери, банк. Район метро Т. Шевченко 150 метрів від станції, фасад по вулиці Межигірській. Прекрасне розташування об'єкту: зручна транспортна розв'язка і все необхідне для успішного бізнесу. Поруч історичний Поділ з різноманітною інфраструктурою. Є інші варіанти комерційних приміщень. НАБИРАЙТЕ ПО НОМЕРУ В ОГОЛОШЕННІ. Компанія THE Capital володіє найбільшою базою нерухомості по Київу і області. Наші експерти зроблять швидку підбірку варіантів згідно Вашої потреби, організують показ у зручний для Ваш час та забезпечать безбечну угоду. #A14821

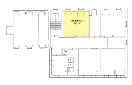
Оренда Офіс 115м2 Поділ Контрактова
Оренда Офіс 115м2 Поділ Контрактова Київська область, Київ, Подільський
1 800 $
115 м² 3/4 п

Офіс 115м2, м. Контрактова площа Loft Площа - 115 м2 Можливе встановлення інвертора з акумуляторами для автономної роботи. Офіс у лофт стилі, з висотою стель 3 метра. Адреса: вул. Межигірська 3. Метро Контрактова площа - 10 метрів. Зонування: Опенспейс 80м2 Кабінет 21м2 Кухня (меблі, стіл, стільці, холодильник) 2 санвузли 1 балкон Офіс розташований на 3-му поверсі в історичній будівлі, у центрі Києва. В офісі встановлено: лічильники на електрику та воду, кондиціювання, освітлення Led. Ремонт зроблено у сучасному європейському стилі. Колірна схема чорно-біло-сіра, з додаванням натурального дерева, таким чином ви можете внести свій брендовий колір у стиль даного офісу. Можливі способи оплати: безготівка без ПДВ, готівка, Payoneer і т. д. Без комісії

Без%! Подол, БЦ, всегда есть свет, парковка, метро Т. Шевченко-3минуты!
Без%! Подол, БЦ, всегда есть свет, парковка, метро Т. Шевченко-3минуты! Київська область, Київ, Подільський
40 000 ₴
150 м² 3/5 п

ул. Межигорская, метро Т. Шевченко-3мин., Контрактовая площадь-7минут, 144м. кв. : 7 больших кабинетов, ресепшн, переговорная, кухня, су, ремонт, коммуникации, охранная сигнализация, кондиционирование, телефон, интернет, компьютерная сеть, высокие потолки, приточно-вытяжная вентиляция. Доступ для арендаторов 24/7. Есть блок 316м. кв. Парко-места. •возможность регистрации юр. адреса •нежилой фонд -Арендная ставка - 284 грн./м², вкл НДС -сервисные услуги - 42 грн./м² -Отопление - 34 грн./м2, торг! Без кoмиссии!

Здається спеціальне приміщення на вул. Межигірська, площа 33 кв. м • ID 33677736
Здається спеціальне приміщення на вул. Межигірська, площа 33 кв. м • ID 33677736 Межигірська вулиця, мікрорайон Поділ, район Подільський, Київ, метро Тараса Шевченка, вул. Межигірська, площа 33 кв. м • ID 33677736
6 500 ₴
33 м² 3/4 п

Здається світлий і затишний кабінет на Подолі, по вул. Межигірська 82а, в 3 хв (250 метрів) від метро Тараса Шевченка, тільки після ремонту, 9 м2 Завжди є світло (зарядна станція на випадок відключень) Кабінет знаходиться в студії перманентного макіяжу, загальна площа якої 33 м2, біля студії є диванчик для очікування) Для персоналу є кава, чай та смаколики) В кабінеті є все для роботи: Професійна кушетка з регулюванням висоти, Столик, Стільчик зі спинкою, Етажерка, Килимок, Ковдра, Дзеркало, Кільцева лампа. Повністю укомплектований для роботи майстрів нарощення вій, бровістів, масажистів, косметологів і т. д. Можна поставити свої меблі Знаходиться в адмін будівлі на 3 поверсі. Зручна розвʼязка. Здається на довготривалу аренду. Вартість 6500 за 30 днів + комунальні.

Без%, 144м² приміщення в оренду. Поділ. Власник. Є генератор
Без%, 144м² приміщення в оренду. Поділ. Власник. Є генератор Київ, Шевченківський, вулиця Межигірська 87а
40 896 ₴
144 м² 3/5 п

144м2 - третій поверх вул. Межигірська 87а, метро Тараса Шевченка Сплачую комісію ріелторам -Власник -бізнес-центр «Межигірський» -Поділ, метро Тараса Шевченка, три хвилини пішки -вул. Межигірська 87а -доступ 24/7 -паркування •можливість реєстрації юр. адреси •нежитловий фонд -Орендна ставка - 284 грн./м² -Сервісні послуги - 42 грн./м² -Опалення - 34 грн./м2 Вода та електроенергія по лічильниках. На території цілодобовий пост фізичної охорони обладнано тривожною кнопкою виклику поліції та відеоспостереження 24/7. 06******77 Ігор

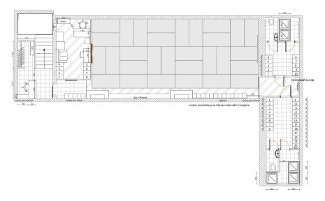
Без%, 124м2 тренувальний зал. Поділ. Є генератор.
Без%, 124м2 тренувальний зал. Поділ. Є генератор. Київ, Шевченківський, вулиця Межигірська 87А
22 000 ₴
124 м²

-вул. Межигірська 87а, метро Тараса Шевченка, три хвилини пішки. -Підвальний поверх Додзьо (тренувальний зал) : - Робоча площа (татамі) - 60м2 - висота стелі - 3 м; - 2 роздягальні - 2 душові кімнати - 2 туалети - Татамі «рисова соломка» (м'яке покриття); - Кондиціонер, вентиляція. Сплачую комісію ріелторам -Власник -бізнес-центр «Межигірський» -доступ 24/7 -паркування -нежитловий фонд 06******77 Ігор

Пряма пропозиція! Оренда 66 м2. Фасад. Метро!
Пряма пропозиція! Оренда 66 м2. Фасад. Метро! Київ, Шевченківський, вулиця Межигірська 57
80 000 ₴
66 м² 1/5 п

Пряма пропозиція! Станція метро Т. Г. Шевченка Оренда фасадного приміщення 66 м2 за адресою м. Київ, вул. Межигірська 57/17 Інтенсивний пішохідний та автомобільний трафік Розвинута інфраструктура Наявна парковка Централізовані комунікації Пропонуємо більше 100 приміщень торгової нерухомості. Магазини на першому поверсі. Супермаркети. Торгові Центри !

Аренда офиса 110 м², Межигорская ул., 13
Аренда офиса 110 м², Межигорская ул., 13 Киев, Межигорская ул., 13
38 000 ₴
110 м² 3/3 п

Контрактова пл метро, вул Межигірська 13, офіс 3 поверх, житловий фонд, 108м добрий стан, кондіционери, 4 кабінета, метро контрактова пл 2-3хв. 38000грн + комунальні. (Комісія 50%)

Без%, 38м2 приміщення в оренду. Поділ. Генератор, GPON інтернет.
Без%, 38м2 приміщення в оренду. Поділ. Генератор, GPON інтернет. Київ, Шевченківський, вулиця Межигірська 87А
20 300 ₴
38 м² 4/5 п

вул. Межигірська 87а, метро Тараса Шевченка. Вартість включає: -оренда -опалення -обслуговування -електроенергія -інтернет -водопостачання Четвертий поверх Сплачую комісію ріелторам -Власник -бізнес-центр «Межигірський» -Поділ, метро Тараса Шевченка, три хвилини пішки -вул. Межигірська 87а -доступ 24/7 -паркування -нежитловий фонд 06******77 Ігор

Аренда приміщення на Подолі біля метро Т. Шевченко
Аренда приміщення на Подолі біля метро Т. Шевченко Київська область, Київ, Подільський
14 500 ₴
28 м² 1/5 п

Здамо в аренду приміщення на Подолі вул. Межигірська 56, під будь-який вид діяльності. В приміщенні є два великих дзеркала, стійка ресепшн, мармурові сходи, спа точка Від метро Тараса Шевченко 60 метрів.

Оренда офісу 43 кв. м., Поділ, метро Тараса Шевченка Без комісії
Оренда офісу 43 кв. м., Поділ, метро Тараса Шевченка Без комісії Київська область, Київ, Подільський
15 000 ₴
45 м² 2/4 п

Без комісії! Оренда офісу 43 кв. м., нежитловий фонд, Поділ, метро Тараса Шевченка, вул. Межигірська 82, адмінбудівля, 2 поверх, дві кімнати, офісний ремонт. Перші чотири фото один варіант офісу з тамбуром та двома роздільними кімнатами, останні чотири фото інший варіант офісу із двома суміжними кімнатами. Ціна 360 грн/кв. м. включаючи ПДВ та усі експлуатаційні послуги. Додатково оплачується електроенергія, вода та тепло (своя котельня). Є офіси від 13 кв. до 55 кв. м. за ціною 360 грн./кв. м. включаючи експлуатаційні та всі комунальні послуги + ПДВ. Номер оголошення на сайті компанії: RC-213-928-LX. Шпортко Виктор Викторович, +38**************16, +38**************11.

Оренда офісу 30 кв. м., Поділ, метро Тараса Шевченка Без комісії
Оренда офісу 30 кв. м., Поділ, метро Тараса Шевченка Без комісії Київська область, Київ, Подільський
10 000 ₴
30 м² 3/4 п

Без комісії! Оренда офісу 30 кв. м., нежитловий фонд, Поділ, метро Тараса Шевченка, вул. Межигірська 82, адмінбудівля, 2 поверх, дві кімнати, офісний ремонт. Є три варіанти офісів площею приблизно 30 кв. м. Перші чотири фото один варіант офісу з двома суміжними кімнатами та кладовою, наступні три фото офісу із двома суміжними кімнатами, останні три фото варіант офісу з однією кімнатою. Ціна 360 грн/кв. м. включаючи ПДВ та усі експлуатаційні послуги. Додатково оплачується електроенергія, вода та тепло (своя котельня). Є офіси від 13 кв. до 55 кв. м. за ціною 360 грн./кв. м. включаючи експлуатаційні та всі комунальні послуги + ПДВ. Номер оголошення на сайті компанії: RC-213-930-LX. Шпортко Виктор Викторович, +38**************16, +38**************11.

Аренда офиса 250 м², Межигорская ул., 87А
Аренда офиса 250 м², Межигорская ул., 87А Киев, Межигорская ул., 87А
71 000 ₴
250 м² 3/4 п

Без комісії. Пропонується в оренду офісне приміщення 250 м. кв., вул. Межигірська 87А, Бізнес-центр "Межигірський", 3/4 поверх, нежитловий фонд, доступ 24/7, власник Юр. Особа. В приміщенні виконано капітальний ремонт, фото відповідають. Пропонується без меблів. Складається: Open space + 5 кабінетів, хол, обладнана кухня, комора, 2 санвузли. Оснащений: Кондиціонери, пожежна сигналізація, інтернет. Територія БЦ охороняється, встановлений генератор, в наявності великий паркінг. Орендна ставка 284 грн/м. кв. + 42 грн/м. кв. експлуатаційні + опалення 34 грн/м. кв. + комунальні платежі (ел. енергія, вода за лічильниками). Найближче метро Тараса Шевченка, 4 хвилини пішим кроком.

Здається в оренду нежитлове приміщення М. Тараса Шевченка
Здається в оренду нежитлове приміщення М. Тараса Шевченка Київська область, Київ, Подільський
18 000 ₴
37 м² 1/5 п

Здається в оренду нежитлове приміщення поряд М. Тараса Шевченка. Загальна площа 37кв. м., Два кабінета по 16 кв. м. та санвузол. Фактично немає невикористаних площ. У приміщенні виконаний якісний офісний ремонт. На вікнах решітки та захисні ролети.

Оренда фасадного приміщення (200 м2), Поділ, проходимість, паркінг
Оренда фасадного приміщення (200 м2), Поділ, проходимість, паркінг Київ, Подільський, Київська область
2 000 $
200 м² 1/4 п

Оренда приміщення Пропонується в оренду фасадне торгове приміщення площею 200 м2, розташоване на вулиці Межигірська, 3/7, у Подільському районі Києва. Приміщення знаходиться на цокольному поверсі. Це приміщення має якісний ремонт. Воно здається в оренду з усім, що є на фото, що дозволяє швидко розпочати діяльність. Основні переваги: - Відмінне розташування - лише 5 хвилин пішки до станції метро "Контрактова площа". - Доступ до приміщення цілодобово, що надає можливість працювати у будь-який зручний час. - Окремий вхід забезпечує зручний доступ для клієнтів і персоналу. - Наявність мокрої точки. - Паркінг. Орендна ставка становить 2500 доларів на місяць плюс комунальні платежі. Приміщення підходить для будь-якого виду діяльності, тому ви можете реалізувати тут свій бізнес-проєкт. Запрошуємо вас на перегляд.

Подол, ткабінет 14 кВ. м, цоколь, доступ 24/7
Подол, ткабінет 14 кВ. м, цоколь, доступ 24/7 Київська область, Київ, Шевченківський
4 500 ₴
14 м²

Оренда приміщення вільного призначення на Подолі вул. Межигірська 22. Доступ 24/7. Цокольний поверх, 14 кв. м, є суміжне приміщення, висота стелі 2.7 м., ремонт, доступ 24/7. Поруч відділення Нової Пошти, Банк, продуктовий магазин - дуже гарний трафік. До ст. Метро Контрактова площа 350 метрів. Зупинка транспорту теж поруч. Є місце під рекламу на фасаді. Гарне місце для Вашого бізнесу. Ціна 4 500 грн. Без плати за опалення. Без комісійних.

Відкрити карту Карта