У 20 разів більше оголошень від власників

Збираємо оголошення з найбільших порталів

За номером телефону відрізняємо ріелтора від власника

Показуємо, як змінювалася ціна

Видаляємо дублі оголошень

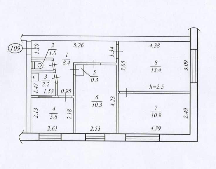
Нежитлове приміщення, 52,1 кв. м, вул. Калинова, буд. 90

Дніпропетровська область, Дніпро, Індустріальний
фото - Нежитлове приміщення, 52,1 кв. м, вул. Калинова, буд. 90
  • В повний розмір
  • Шукати схожі
фото - Нежитлове приміщення, 52,1 кв. м, вул. Калинова, буд. 90

Нежитлове приміщення № 109 (поз. 1-8), загальною площею 52,1 кв. м, в житловому будинку літ. А-5, за адресою: м. Дніпро, вул. Калинова, буд. 90 Аукціон в електронній торговій системі «Prozorro.Продажі» Посилання на аукціон: sale.uub.com.ua/auction/SPE001UA **********/?promocode=0034 Дата проведення аукціону 20.11.2025 Початкова ціна продажу лоту 590 714.77 грн Допомога в участі в аукціоні Контактна особа Віктор, відповіді на всі питання по телефону УКРАЇНСЬКА УНІВЕРСАЛЬНА БІРЖА

Місцезнаходження на карті, корисні місця і маршрути

Новобудови поруч

ЖК Янтарный
  • Акція
Додати в обране ЖК Янтарный ул. Янтарная, 75а
  • 755 950 ₴
ЖК Правильный выбор
Додати в обране ЖК Правильный выбор пер. Крушельницкой, 5б
  • 1 220 400 ₴
ЖК Городок
Додати в обране ЖК Городок ул. Королевой Гули, 12г
  • 641 200 ₴
ЖК Олимпийский
Додати в обране ЖК Олимпийский бул. Кобзаря, 3
  • 1 270 500 ₴

Об'єкти поруч

Дніпропетровська область, Дніпро, Амур-Нижньодніпровський
додати в вибране Продам помещение 62 м кв, Калиновая, под стоматологию, с оборудованием
  • 139 800 $
  • 62 м²
Дніпропетровська область, Дніпро, Амур-Нижньодніпровський
Дніпропетровська область, Дніпро, Індустріальний
додати в вибране Продам діючий салон краси. Вул. Калинова
  • 32 800 $
  • 52 м²
Дніпропетровська область, Дніпро, Індустріальний
Дніпропетровська область, Дніпро, Індустріальний
додати в вибране Продам помещения на ул. Калиновая
  • 165 000 $
  • 170 м²
Дніпропетровська область, Дніпро, Індустріальний