У 20 разів більше оголошень від власників

Збираємо оголошення з найбільших порталів

За номером телефону відрізняємо ріелтора від власника

Показуємо, як змінювалася ціна

Видаляємо дублі оголошень

Дана пропозиція більше не актуальна і буде автоматично видалена незабаром.

Продаж комерційної будівлі на Майдані Незалежності

Київська область, Київ, Печерський
фото - Продаж комерційної будівлі на Майдані Незалежності
  • В повний розмір
  • Шукати схожі
фото - Продаж комерційної будівлі на Майдані Незалежності

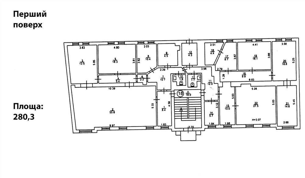
Будівля розташована в центрі Києва на Майдані Незалежності, вул Михайлівська, 12-Б. Поруч знаходиться вся необхідна інфраструктура: кав'ярні, ресторани для бізнес ланчів, банківські установи та обмінні пункти для зручних фінансових операцій. Супермаркети, аптеки та інші магазини. Парк ім. Тараса Шевченка, Володимирський пішохідний міст. Місця культурних заходів, театрів та галерей для можливостей відпочинку. Безпека: пожежна сигналізація; карткова система пропусків; охорона 24/7; укриття на цокольному поверсі з двома входами; система оповіщення під час повітряної тривоги. Локація: 2 хвилини від метро "Майдан Незалежності". Доступна ціна стане ідеальним рішенням для комфортної праці та досягнення конкретних цілей! Технічні характеристики: Підвал: 262,5 м2; Перший поверх: 280,3 м2; Другий поверх: 302,9 м2; Третій поверх: 305,8 м2; Четвертий поверх (мансарда та антресоль) : 329,9 м2; Загальна площа будівлі: 1481,4 м2. ПРОДАЖ ВІД ВЛАСНИКА!

Місцезнаходження на карті, корисні місця і маршрути

Виберіть маршрут

Новобудови поруч

ЖК Tetris Hall
  • 360o
Додати в обране ЖК Tetris Hall ул. Деловая (Димитрова) / ул. Анри Барбюса, 1/2
  • 10 358 401 ₴
МФК OLEGIVSKIY
  • Акція
Додати в обране МФК OLEGIVSKIY ул. Олеговская, 36
  • 4 579 300 ₴
ЖК LookyanSky
Додати в обране ЖК LookyanSky ул. Лукьяновская
  • 1 210 000 ₴
ЖК Diadans
Додати в обране ЖК Diadans ул. Евгения Коновальца, 19
  • 6 221 600 ₴

Об'єкти поруч

Київська область, Київ, Шевченківський
додати в вибране Продаж приміщення на першому поверсі з окремим входом в центрі.
  • 450 000 $
  • 168 м²
Київська область, Київ, Шевченківський
Київська область, Київ, Печерський
додати в вибране Продаж‼️будівля 1481 м2 Михайлівська 12-Б центр Майдан Незалежності 0%
  • 4 444 000 $
  • 1481 м²
Київська область, Київ, Печерський
Київська область, Київ, Голосіївський
додати в вибране Продаж ОСЗ офісного помещения под реконструкцию
  • 500 000 $
  • 350 м²
Київська область, Київ, Голосіївський
Київська область, Київ, Шевченківський
додати в вибране Нежитлове приміщення центр Києва, Михайлівська 24/11 площа 168,4 кв. м.
  • 449 000 $
  • 168 м²
Київська область, Київ, Шевченківський