У 20 разів більше оголошень від власників

Збираємо оголошення з найбільших порталів

За номером телефону відрізняємо ріелтора від власника

Показуємо, як змінювалася ціна

Видаляємо дублі оголошень

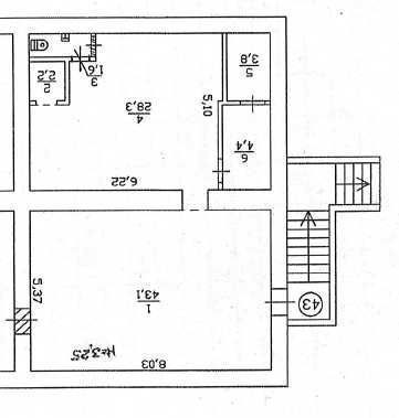
Продаж приміщення вул. Єреванська, 16- 83 кв. м під магазин, салон тощо

Київ, Солом'янський, вулиця Єреванська 16
фото - Продаж приміщення вул. Єреванська, 16- 83 кв. м під магазин, салон тощо фото - Продаж приміщення вул. Єреванська, 16- 83 кв. м під магазин, салон тощо фото - Продаж приміщення вул. Єреванська, 16- 83 кв. м під магазин, салон тощо
  • В повний розмір
  • Шукати схожі
фото - Продаж приміщення вул. Єреванська, 16- 83 кв. м під магазин, салон тощо фото - Продаж приміщення вул. Єреванська, 16- 83 кв. м під магазин, салон тощо фото - Продаж приміщення вул. Єреванська, 16- 83 кв. м під магазин, салон тощо

Продаж комерційного приміщення, м. Київ, вул. Єреванська, 16 Пропонується на продаж підвальне приміщення з окремим входом у Солом'янському районі столиці. Загальна площа - 82,3 м². На сьогодні тут розташовані: магазин дитячого одягу; магазин товарів для шиття та рукоділля. Приміщення оснащене всіма необхідними комунікаціями, має зручне планування. Ідеально підійде для різних видів бізнесу: - магазин чи шоурум - салон краси, перукарня, барбершоп - стоматологія чи інший медичний кабінет - офіс, майстерня тощо. Локація - Солом'янський район, поруч розвинена інфраструктура, зручна транспортна доступність. Перегляди можливі за попередньою домовленістю.

Місцезнаходження на карті, корисні місця і маршрути

Виберіть маршрут

Новобудови поруч

ЖК OK'LAND
Додати в обране ЖК OK'LAND просп. Воздухофлотский, 56
  • 204 200 ₴
ЖК Manhattan city
Додати в обране ЖК Manhattan city просп. Победы, ул. Борщаговская
  • 205 000 ₴
ЖК Poetica. Вторая коллекция
Додати в обране ЖК Poetica. Вторая коллекция ул. Дегтяревская, 25
  • 2 190 300 ₴
Доходный дом на Тургеневской, 17
Додати в обране Доходный дом на Тургеневской, 17 ул. Тургеневская, 17
  • 4 167 800 ₴

Об'єкти поруч

Київська область, Київ, Солом'янський
додати в вибране Продам приміщення під комерцію
  • 57 000 $
  • 46 м²
Київська область, Київ, Солом'янський