У 20 разів більше оголошень від власників

Збираємо оголошення з найбільших порталів

За номером телефону відрізняємо ріелтора від власника

Показуємо, як змінювалася ціна

Видаляємо дублі оголошень

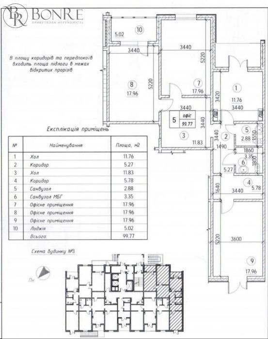
Продаж, Торгове, в ЖК Ревуцького, 100м2

Київська область, Київ, Дарницький
  • Об'єкт UA-1323658288
  • доданий:
  • оновлено:
фото - Продаж, Торгове, в ЖК Ревуцького, 100м2 фото - Продаж, Торгове, в ЖК Ревуцького, 100м2 фото - Продаж, Торгове, в ЖК Ревуцького, 100м2
  • В повний розмір
  • Шукати схожі
фото - Продаж, Торгове, в ЖК Ревуцького, 100м2 фото - Продаж, Торгове, в ЖК Ревуцького, 100м2 фото - Продаж, Торгове, в ЖК Ревуцького, 100м2

Продаж торгового приміщення. м. Київ, вул. Ревуцкого, буд. 54 Б. Позняки, Дарницький р-н. Загальна площа: 100м2х1290$=129 000$. Характеристики: приміщення в прохідному місці на 1-му поверсі з окремим фасадним входом, є "чорний" вхід з двору, потужність 15кВт. Без ремонту, стан від забудовника. ЖК Ревуцький: розрахований на 1138 квартир, відкритого типу, 3 будинки по 25 поверхів. Поруч з: Коло Маркет, Зелений Слон, Кав'ярня, ЖК Welcome Home 641квартир, ЖККрушильницкий 1150кв., метро Харківська 10хв. пішки та інші. BonRe. Номер оголошення на сайті компанії: SC-186-004-LX.

Місцезнаходження на карті

Новобудови поруч

ЖК Чаривне Мисто
  • 360o
Додати в обране ЖК Чаривне Мисто ул. Бориспольская, 18-26
  • 326 200 ₴
ЖК Метрополия-2
Додати в обране ЖК Метрополия-2 ул. Армянская, 8/127
  • 101 700 ₴
ЖК Olympic Park
  • 360o
Додати в обране ЖК Olympic Park Харьковское шоссе, 210
  • 1 496 250 ₴
ЖК O2 Residence
Додати в обране ЖК O2 Residence Бориспольское шоссе
  • 1 350 000 ₴

Об'єкти поруч

Киев, Александра Мишуги ул., 10
додати в вибране Продажа офиса 65 м², Александра Мишуги ул., 10
  • 130 000 $
  • 65 м²
Киев, Александра Мишуги ул., 10
Київська область, Київ, Дарницький
додати в вибране Продаж фасадного приміщення (салон, офіс) Осокорки, Позняки
  • 140 000 $
  • 103 м²
Київська область, Київ, Дарницький
Київська область, Київ, Дарницький
додати в вибране Продаж комерційного приміщення Зарічний Славутич Осокорки
  • 121 900 $
  • 106 м²
Київська область, Київ, Дарницький