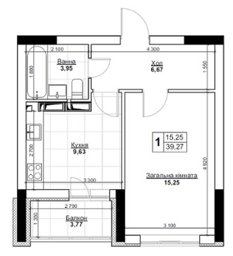
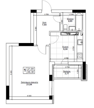
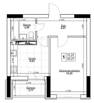
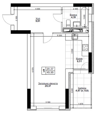
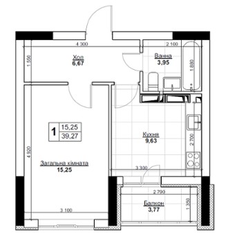
Планування 1-кімнатні квартири

від 31.02 м² до 46.38 м²

Планування 2-кімнатні квартири

від 59.28 м² до 71.17 м²

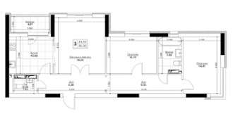
Планування 3-кімнатні квартири

від 81.3 м² до 86.63 м²

Планування 4-кімнатні квартири

від 107.41 м² до 107.41 м²