Объект UA-1347431795 не найден. Возможно, он удалён по истечению срока давности, либо находится в процессе публикации.

1к в ЗДАНОМУ будинку з комунікаціями
1к в ЗДАНОМУ будинку з комунікаціями Івано-Франківська область, Івано-Франківськ
59 000 $
1 439 $ за м²
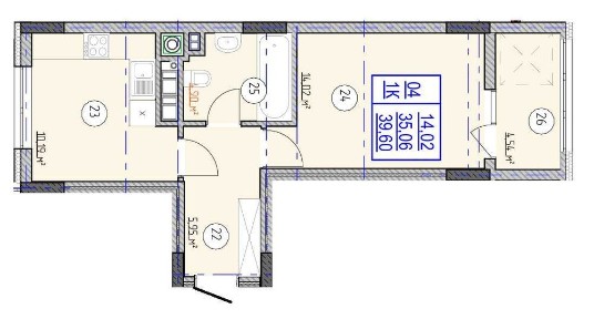
1-кімн 41 м² 3/13 п

Ціна 59000 Пропозиція ТОР 1 кімнатна квартира в ЖК Uone, будинок зданий ! Оптимальний 3поверх Загальна площа 41 м2 Якісне будівництво від провідного забудівника Blago Сучасний внутрішній двір Дуже приваблива пропозиція як для власного проживання або інвестування

Продаж квартири, Княгинен, Здана, 3кімнатна, готова до ремонту
Продаж квартири, Княгинен, Здана, 3кімнатна, готова до ремонту Івано-Франківська область, Івано-Франківськ
74 000 $
804 $ за м²
3-кімн 92 м² 12/14 п

Продам ЗДАНУ, квартиру в Центрі міста р-н Княгинен Квартира знаходиться в містечку закритого типу, поруч РАтуші, центрального Ринку, парку, Панорами Плаза. Житловий Комплекс має розвинуту інфраструктуру, а саме: - Підземний паркінг - Власний дитячий садочок - Торгові центри та магазини - Великий дитячий та відпочинковий майданчики - Закритий двір без автомобілів з відеоспостереженням Квартира повністю внутрішня, в квартирі є простора лоджія Наповнення квартири: - Штукатурка стін - Стяжка підлоги - Броньовані двері - Енергозберігаючі вікна 3 скла - Заведені всі комунікації з лічильниками на газ, воду та світло - Заведений інтернет та домофон

Продається 1-кімнатна квартира біля озера! ЖК River Stone
Продається 1-кімнатна квартира біля озера! ЖК River Stone Івано-Франківська область, Івано-Франківськ
28 000 $
848 $ за м²
1-кімн 33 м² 6/10 п

Продається 1-кімнатна квартира біля озера в житловому комплексі River Stone, м. Івано-Франківськ. Код квартири- #39522793 Площа: 33 м² Поверх: 6-й Готовий будинок - можна починати ремонт Стан: штукатурка під маяки, ідеально для ремонту під себе Панорамні вікна - багато світла та красивий вигляд Ціна нижча, ніж у забудовника Переваги: Зручна локація - поруч природа, озеро, магазини, транспорт Гарне планування Чудовий варіант для проживання або інвестиції під оренду Телефонуйте, щоб домовитися про перегляд або дізнатися більше.

Продаж готової 1к квартири Пасічна
Продаж готової 1к квартири Пасічна Івано-Франківська область, Івано-Франківськ
57 000 $
1 326 $ за м²
1-кімн 43 м² 10/10 п

Пропозиція 1к ЖК Лемківський 43/10 м2 площа Індивідуальне газове опалення Підігрів підлоги всюди де плитка 10/10 поверх (є ще технічний поверх зверху) ліфт іде до 9 Новобудова 2020 року Цегляне будівництво Район Пасічна - зручне сполучення з центром міста, поруч школи, дитячі садочки, магазини, аптеки, зупинки громадського транспорту. У дворі облаштований дитячий майданчик та паркінг, є гаражі.

1-кімнатна квартира у стильному та затишному районі міста
1-кімнатна квартира у стильному та затишному районі міста Івано-Франківська область, Івано-Франківськ
34 850 $
894 $ за м²
1-кімн 39 м² 4/9 п

1-кімнатна квартира • 39,6 м² • 4 поверх із 9 Ціна - 34 850 $ Надійний забудовник 09********35 Пропонується до продажу світла та затишна квартира у одному з найкомфортніших районів Івано-Франківська - Каскад. Локація поруч із р. Бистриця Надвірнянська та Вовчинецькими горами забезпечує чисте повітря та відчуття заміського спокою, залишаючись при цьому у межах міста. Переваги комплексу та локації: • екологічно чистий район з великою кількістю зелених зон; • мальовничі краєвиди на річку та гори; • сучасні енергозберігаючі фасади; • декоративно оформлені під'їзди; • швидкісні ліфти; • інтернет та кабельне ТБ вже заведені; • панорамні енергозберігаючі вікна; • простора кухня, зручна для сімейних обідів; • внутрішнє подвір'я з дитячим та спортивним майданчиками; • велика кількість паркомісць; • поруч школа, дитячий садок, стадіон, магазини, зупинки. Про квартиру: Квартира розташована на 4-му поверсі 9-поверхового будинку. Площа 39,6 м² дає можливість створити комфортний сучасний простір для життя або під інвестицію. Будинок від надійного забудовника, з продуманими плануваннями та високим рівнем будівництва. Додаткові можливості для покупця: • можливість розтермінування - від 30% першого внеску до 24 місяців • доступний вибір площ та поверхів; • продаж без відсотків і комісій. Телефонуйте: 09********35

2-кімнатна квартира в сучасної екологічно чистому районі
2-кімнатна квартира в сучасної екологічно чистому районі Івано-Франківська область, Івано-Франківськ
46 990 $
854 $ за м²
2-кімн 55 м² 5/9 п

2-кімнатна квартира • 55,94 м² • 5 поверх із 9 Ціна - 46 990 $ Надійний забудовник 09********35 Пропонується до продажу простора та світла 2-кімнатна квартира у одному з найкомфортніших районів Івано-Франківська - Каскад. Район вирізняється чистим повітрям, тишею та мальовничими краєвидами на річку Бистриця Надвірнянська та Вовчинецькі гори. Переваги комплексу та локації: • екологічно чистий район з великою кількістю зелених зон; • краєвиди на річку та гори; • сучасні енергозберігаючі фасади; • стильні під'їзди з декоративним оздобленням; • швидкісні ліфти; • інтернет та кабельне ТБ уже заведені; • панорамні енергозберігаючі вікна; • великий міжбудинковий простір; • внутрішній двір з дитячими та спортивними майданчиками; • зручні паркомісця; • поруч школа, садок, стадіон, магазини, зупинки. Про квартиру: Квартира розташована на 5-му поверсі 9-поверхового будинку. Площа 55,94 м² - ідеальна для сім'ї або для тих, хто цінує простір. Раціональне планування дозволяє створити максимально комфортний інтер'єр. Додаткові можливості для покупця: • можливість розтермінування - від 30% першого внеску; • доступний вибір площ та поверхів; • продаж без відсотків і комісій. Телефонуйте: 09********35

1,5-кімнатна квартира в ЖК «Манхеттен»
1,5-кімнатна квартира в ЖК «Манхеттен» Івано-Франківська область, Івано-Франківськ
84 600 $
1 880 $ за м²
1-кімн 45 м² 8/16 п

Площа 45 м² • 8 поверх із 16 Ціна - 84 600 $ Продається стильна, світла та повністю укомплектована квартира у сучасному житловому комплексі бізнес-класу ЖК «Манхеттен». Будинок зданий, заселений та має високий рівень комфорту. Переваги квартири: • 1,5-кімнатний формат - функціональне та зручне планування • повністю мебльована та оснащена технікою • якісний сучасний ремонт • квартира повністю готова як для проживання, так і для здачі в оренду Переваги комплексу та локації: • будинок бізнес-класу, територія доглянута та обжита • поруч міське озеро та зона відпочинку • до центру міста - лише 5 хвилин • розвинена інфраструктура: магазини, кафе, спортмайданчики, дитячі зони, зручний транспорт Ідеальний варіант для комфортного життя або вигідної інвестиції!

Продаж 1к квартири 44м2 у ЦентріVD
Продаж 1к квартири 44м2 у ЦентріVD Івано-Франківська область, Івано-Франківськ
63 000 $
1 432 $ за м²
2-кімн 44 м² 5/5 п

Продаж 1к квартири на 5-у поверсі 5-и поверхового будинку у самому Центрі Івано-Франківська. Квартира"обкомівка"перепланована у 2к студію. Якісні вікна та двері, двоконтурний котел, там де плитка тепла підлога. Дах будинку відновлено за допомогою державної програми. Дуже якісні меблі, техніка, сантехніка та аксесуари. Зроблено кап. ремонт та засклений балкон. У квартирі залишається все що видно на фото. Кварирі належить сухий підвал 3,2м2 та власне паркомісце.

Продається 2-кімнатна квартира на вул. Івана Павла ІІ (м-р Каскад) Y
Продається 2-кімнатна квартира на вул. Івана Павла ІІ (м-р Каскад) Y Івано-Франківська область, Івано-Франківськ
53 500 $
1 029 $ за м²
2-кімн 52 м² 5/9 п

Продається 2-кімнатна квартира на вул. Івана Павла ІІ (м-р Каскад) Комфортна та затишна квартира у відмінному районі з розвиненою інфраструктурою. Ідеальний варіант, щоб заїхати та одразу жити! Характеристики: • Ціна: 53 300 $ • Площа: 52 м² • Кухня: 9 м² • Поверх: 5 з 9 • Опалення: центральне Квартира повністю готова до проживання. Меблі, які бачите на фото - залишаються новим власникам! Локація - м-р Каскад: Поруч Епіцентр, Арсен, АТБ, зупинки громадського транспорту, школа, садочок - все для комфортного життя. Для детальної інформації та огляду - пишіть/дзвоніть!

ПРОДАЖ 1-кімнатної квартири з наповненням ЖК
ПРОДАЖ 1-кімнатної квартири з наповненням ЖК "Квартал 5" Івано-Франківська область, Івано-Франківськ
50 500 $
1 052 $ за м²
1-кімн 48 м² 6/11 п

Пропонуємо стильну 1-кімнатну квартиру площею 48,5 м² у сучасному будинку бізнес-класу. Вулиця Ленкавського - Бельведерська, поруч мальовниче озеро, тихий район у центрі міста! Код квартири - #36247703 Основні характеристики: Поверх: 6/10, ліфт. Балкон з панорамним виглядом на місто. Квартира з наповненням! Тепла підлога по всій квартирі - комфорт цілий рік! Залита стяжка по всій квартирі Вже встановлено індивідуальний газовий котел - значна економія на опаленні. Відеоогляд квартири - youtu.be/H1TlvuRiIr4 Переваги житлового комплексу: Закритий двір з контрольованим доступом - безпека для всієї родини. Підземний паркінг - авто завжди в безпеці та комфорті. Комерційні приміщення на першому поверсі - магазини, кафе, сервіси завжди поруч. Якісне будівництво, сучасне планування, зручне зонування простору. Ідеальна локація: Центр міста - все в пішій доступності. Поруч: озеро, парки, зупинки транспорту, магазини, навчальні заклади. Дзвоніть, щоб домовитись про перегляд! Ця квартира - ідеальний варіант для життя або інвестування.

Однокімнатна квартира, ЖК Каскад Ярко
Однокімнатна квартира, ЖК Каскад Ярко Івано-Франківська область, Вовчинець
41 500 $
922 $ за м²
1-кімн 45 м² 8/10 п

Продається однокімнатна квартира в ЖК Каскад Ярко. Цегляне будівництво із утепленням. Закрита територія. Паркомісця. Ландшафтний дизайн. Квартира готова до чистового ремонту. Всі комунікації запущено, лічильники опломбовано. Газове індивідуальне опалення (котел). Локація: затишний, зелений район поблизу Вовчинецьких гір - ідеальний баланс між природою та міською інфраструктурою. Поруч магазини ТРЦ Veles Mall, школи, садок, дитячі майданчики та зупинки громадського транспорту.

Центр! 2кімнатна квартира готова до ремонту
Центр! 2кімнатна квартира готова до ремонту Івано-Франківська область, Івано-Франківськ
37 000 $
841 $ за м²
2-кімн 44 м² 3/4 п

продаж квартири у центрі міста, поруч міське озеро та парк шевченка квартира на зручному 3 поверсі потребує ремонтих робіт) ) за деталями телефонуйте

Терміново 2 км сирець 858 доларів за м2
Терміново 2 км сирець 858 доларів за м2 Івано-Франківська область, Івано-Франківськ
54 000 $
857 $ за м²
2-кімн 63 м² 11/14 п

Терміновий продаж 2 км квартири від надійного забудовника Благо. ЖК Паркова Алея Поверх 11 /14 Площа 63 м2 Будинок зданий

ЖК Міленіум- міське озеро. Можна по перерахунку. Елітна нерухомість!
ЖК Міленіум- міське озеро. Можна по перерахунку. Елітна нерухомість! Івано-Франківська область, Івано-Франківськ
84 000 $
1 909 $ за м²
1-кімн 44 м² 9/10 п

вул. Приозерна, 28 • 44,5 м² • вид на місто** Шукаєте сучасну, стильну та готову для життя квартиру у топовій локації? Цей варіант - про якість, деталі та комфорт, який відчувається з порогу. Про квартиру: • Площа - 44,5 м² ідеально розподілена завдяки продуманому зонуванню • Кухня 13 м² - з преміальними фасадами, вбудованою технікою, дерев'яними акцентами та м'якою атмосферною підсвіткою • Житлова кімната 18 м² - з якісними меблями, панорамним вікном та виходом на видовий простір • Окрема гардеробна - мрія кожної сучасної квартири • Преміальні матеріали: керамограніт, фактурні стіни, натяжні стелі, якісне освітлення, дерево у теплих тонах • Функціональна ванна кімната з підсвіткою, великою стільницею, нішею та якісною сантехнікою • Система освітлення на різні сценарії - квартира завжди виглядає як з журналу Про будинок та локацію: ЖК «Міленіум» - один із найпопулярніших комплексів району: • будинок зданий та повністю обжитий • сучасні під'їзди, швидкі ліфти • тиха й комфортна вулиця Приозерна • поруч міське озеро, набережна, кав'ярні, спортзали, магазини • зручне сполучення з центром та усіма ключовими районами міста ⸻ Що маємо: •Дизайнерський ремонт під ключ •Стиль, який не потребує додаткових вкладень •Виважений інтер'єр у теплих тонах •Абсолютно нова квартира - ніхто не проживав •Видовий поверх - 9/10 •Вдале планування “1,5 кімнати” + гардеробна Ціна: 84 000 $ Ідеальний варіант для: • першого житла • інвестиції • здачі в оренду преміального класу • людей, які цінують сучасний стиль і комфорт

Ідеальний старт! 1 кім. квартира в новому ЖК Південне містечкоГ
Ідеальний старт! 1 кім. квартира в новому ЖК Південне містечкоГ Івано-Франківська область, Івано-Франківськ
26 500 $
883 $ за м²
1-кімн 30 м² 2/6 п

Продається 1-кімнатна квартира в затишному житловому комплексі «Містечко Південне» від надійного забудовника Socium! Площа: 30,8м2 Поверх: 2 з 6 Будинок цегляний. Індивідуальне газове опалення. Здача будинку: 3 квартал 2026 року. Є можливість розтермінування. Ціна: 26 500$ Переваги комплексу: -малоповерхова забудова - тиша, комфорт і простір -велика закрита територія -безшумі ліфти ОТІS -приватний дитячий садок -наземний паркінг (600 паркомісць) -сонячна підстанція для забезпечення внутрішніх потреб ЖК -закрита територія під відеоспостереження для безпеки жителів ЖК Здача будинку 2027р ІІ квартал.

Продається 2 кімнатна квартира
Продається 2 кімнатна квартира Івано-Франківська область, Івано-Франківськ
43 776 $
768 $ за м²
2-кімн 57 м² 4/16 п

Продається простора 2-кімнатна квартира 4/16 поверх Загальна площа - 57.6 м² Пропонуємо до вашої уваги комфортну та світлу 2-кімнатну квартиру з продуманим плануванням. Вона ідеально підійде як для власного проживання, так і під орендний бізнес. Переваги квартири: Просторі, непрохідні кімнати Велика кухня з можливістю облаштування зони відпочинку Правильне планування без втрати площі Високий 4 поверх - комфортний варіант для сімей з дітьми чи людей старшого віку Багатоповерховий будинок з сучасним ліфтом Світла та тепла, з хорошою шумоізоляцією Локація: Будинок розташований у зручному районі з усією необхідною інфраструктурою: озеро, для прогулянок, поруч річка, магазини, транспорт, садок, школа, аптеки та зелені зони для прогулянок. Також можливий продаж квартири під розтермінування! телефонуйте

Продаю ГОТОВУ 2 кім. квартиру в сучасному ЖК, поруч т. ц.
Продаю ГОТОВУ 2 кім. квартиру в сучасному ЖК, поруч т. ц."Veles Mall" Івано-Франківська область, Івано-Франківськ
99 500 $
1 531 $ за м²
2-кімн 65 м² 3/11 п

Продається затишна та світла 2 кім. квартира в cexfcyjve Житловому Комплексі "U One", поруч т. ц. "Veles Mall". Комфортний 3й поверх; Загальна площа - 65м2. Квартира з якісний та стильним євроремонтом (стіни декоративна штукатурна). Повністю укомплектована якісними меблями та побутовою технікою. Підігрів підлоги в мокрих зонах (ванна, коридор, кухня), кондиціонер. Функціональне, практичне планування квартири: простора кухня, стильно організована робоча та відпочинкова зони, дві окремі кімнати, окрема гардеробна, санвузол, коридор. Житловий комплекс з дитячими та спортивними майданчиками, відпочинковими зонами. Поруч велика кількість магазинів, торгових центрів, школа та садок, неподалік зелена відпочинкова зона "Вовчинецьких гір" та річка.

Продаж зданої 3кім. квартири поруч з Центром. 5 поверх! Бізнес клас.
Продаж зданої 3кім. квартири поруч з Центром. 5 поверх! Бізнес клас. Івано-Франківська область, Івано-Франківськ
73 500 $
835 $ за м²
3-кімн 88 м² 5/11 п

Продається простора 3-кімнатна квартира неподалік центру міста Особливості планування: • 3 окремі кімнати • Простора кухня-студія • 2 санвузли • 2 лоджії Загальна площа: 88,2 м² Поверх: 5 Квартира двостороння, що забезпечує гарне природне освітлення та вентиляцію. Стан будинку: • Будинок готовий до введення в експлуатацію • Підключені всі комунікації • Завершені роботи в під'їздах • Активно облаштовується двір Можна відразу приступати до ремонту! Локація: • Поруч річка та відпочинкова зона • Дитячий садок і 15 ліцей у пішій доступності • Зручна транспортна розв'язка • Близькість до центру Діє договір переуступки Це чудова можливість стати власником квартири в комфортному будинку з максимально вигідним розташуванням.

єоселя благо манхетен ап озеро парк центр
єоселя благо манхетен ап озеро парк центр Івано-Франківська область, Івано-Франківськ
1 588 577 ₴
42 935 ₴ за м²
1-кімн 37 м² 4/13 п

Житловий комплекс 'Manhattan Up'від надійного забудовника Blago -Дворівневий паркінг закритого типу -Дизайнерські холи з лаундж зоною -Басейн та зона барбекю на даху будинку -Гостьовий паркінг -Приватна школа та садок -Закрита територія -Камери відеоспостережння по цілому комплексу Чекаю вашого дзвінка!

Продаж 4-кімнатної квартири в центрі Івано-Франківська!
Продаж 4-кімнатної квартири в центрі Івано-Франківська! Івано-Франківська область, Івано-Франківськ
153 000 $
1 645 $ за м²
4-кімн 93 м² 4/9 п

Продаж 4-кімнатної квартири в центрі Івано-Франківська! вул. Сахарова, 27Б Ціна: 153 000 $ Поверх: 4 із 9 (3-й житловий) Площа: 93 м² Документи понад 3 роки Переваги квартири: Раціональне планування: дві дитячі спальні, простора вітальня та затишна спальня для батьків 2 окремих санвузли (душова кабіна та ванна) Встановлена велика посудомийна машина, вмонтована техніка 2 кондиціонери 2 зручні гардеробні (одна із них у спальні) Закритий балкон для комфорту Підігрів підлоги Камін та великий телевізор Будинок з ліфтом Ідеальний варіант для сім'ї в самому центрі міста! Квартира повністю укомплектована дорогими меблями та технікою. Поруч вся необхідна для життя інфраструктура. Зупинки громадського транспорту, продуктові магазини, кафе, ресторани, школа і дитячі садочки! Більше фото можу надіслати в особисті повідомлення!

Відкрити карту Карта